所谓空间智能化并不是指有单一终端控制下的智能单品集合,而是利用综合布线、网络通信、安全防范、自动控制、音视频等技术类别,将生活有关的设施集成,构建高效的管理系统工程,它是建立在自动化和信息化基础上的更高层级的控制方式,实现人与产品间更复杂多元化的沟通,从而提升使用的舒适度及人性化设计,面向未来,展现高科技的魅力,是可以满足私人定制、任意组合的一体化服务体系。
▲ 空间一览
该项目位于上海市陆家嘴尚悦湾广场,作为陆家嘴滨江金融城的城市规划重要板块,商场处于周边多个的金融区CBD之中。店铺面积约为108平方米,是一家智能家居体验馆,其品牌提供了高科技人性化的现代智能家居产品及智能控制策略。
▲ 智能家居形象墙
基于“智能生活”的定位与产品展陈体验的根本诉求,我们提出“模块空间”的设计理念,以“圆角模块”作为体验功能空间的基本载体,将形式统一,功能各异的空间块嵌套排列来组织线性空间,使功能排布层次明晰且科学理性。
▲ 弧角造型的功能单元模块,嵌套组合形成基本空间体系
清晰明确的参观体验使产品优势得以高效传达。柔和的弧线边缘,有序整合在一起的模块空间,再加以材质色调的统一应用,也呼应了“智能生活”所追求的“模块化”、“一体化”、“自由式”、“科技感”、“未来风”定位。
▲ 从客厅模块到厨房模块
在对空间进行功能性与人群使用习惯分析的基础上,我们模块化后的空间进行了重新组织:展示橱窗位于入口一侧,对外让出开阔的视觉界面, 对内则形成一部分相对私密空间,使得品牌形象区和会客区得以根据视线关系合理分布;陈列区展台满足产品展示需求的同时,贯彻弧度线条柔化边界,进行错位放置,一定程度上也起到限定空间、暗示空间动线的作用;对于“穿梭”的主体——体验区进行合理扩充,并且将视觉效果最佳的客厅排布在第一界面上,创造极具视觉冲击力的入口体验。
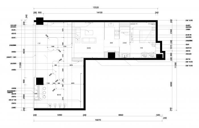
▲ 平面图
▲ 开敞的入口界面与视线通廊
由于空间面积有限且平面本身形状较为特殊,依照传统家居体验馆模拟真实家居环境的模式极易造成功能分布混乱且尺度失调。其次,考虑到体验者各自的家庭内饰风格、个性、审美特质等等均存在差异性,尝试模拟真实环境的设计反而容易适得其反,产生陌生疏离感。因此,布局上将单个家居场景与线性的体验流线相结合,按照私密性由弱到强的顺序,依次从外而内布置客厅、厨房、洗手间、卧室,使顾客得以在场景模块间“穿梭”,不同场景中的各个产品的特性、优势及使用方法也随之得到理性且明确的传达。
▲ 突出产品特性的纯粹空间模块
吧台洽谈区主要针对购买意向较强顾客,用于顾客与店员深入交流产品信息及购买意向。吧台置于平面一角,借助橱窗的遮挡,在店内创造了一处相对私密的空间。
▲ 吧台洽谈区
场景体验区地面抬高两级台阶,构建领域感与进入的仪式感。展示单元间以电控玻璃做隔断,因而店员可在客厅处通过功能总控面板向顾客演示全套产品的一体化联动效果。
▲ 空间剖面图
▲ 一体化联动展示空间
为体现空间的未来科技感,同时突出产品,在整体的材料选择上,采用混油木饰面及环氧地坪漆创造了纯粹的白色空间基调,地板与墙体连接处的弧面和天花板与墙体连接处的弧面均采用镀锌方管搭建造型骨架,地坪漆通过数码调控以达与墙面的无色差衔接,提供给参与者一种室内地面、天花和墙体一体化的高科技未来感的体验,不会喧宾夺主而是将注意力完全投注在产品上从而使得其特质得以最大化的呈现。
▲ 没有墙角的纯白基调空间
空间照明部分除传统射灯、筒灯外,大量采用圆角造型灯及灯带,形态上呼应空间内大量使用的弧线元素,一定程度上强调了空间元素造型,且削弱了家具的体量感与转折关系。大面积的白色空间基调加之点状照明与灯带间形成强烈的点线面对比,玻璃与墙面上不同程度的反射呈现出耐人寻味的动感细节之美。
▲ 灯带与筒灯的运用,空间点线面构成
▲ 圆形展台及灯光
从模块空间的界面形状到展台的边缘、信息墙的形状、灯具的造型,整体均贯彻处理成为弧线,柔化科技的距离感和冰冷感,使智能家居的呈现更加亲切自然。为强调曲线造型,在边缘交界处的墙面使用大理石贴面,石纹质感强调家居属性,为空间添加了重色,丰富了层次感,也使纯白色的空间环境不至于过度冷漠。
▲ 迈入未来的“穿梭机”
▲ 构造节点a
▲ 构造节点b
项目信息
项目名称:穿梭·智能生活体验馆
设计方:平介设计
项目设计&完成年份:2019
主创及设计团队:黄迪
项目地址:上海
建筑面积:108m2
摄影版权:姚杰奇
客户:扬子智能家居
合作方:苏州再造设计

BIM建筑网


















