▲ 树下院鸟瞰图
▲ 下庭院立面
乡村的复兴需要怎样的建筑一直是空间进化关注的话题。
“树下院”林立于一片白杨树之下,核桃树与一大片菜地之间。显著的场地特征是项目命名的起源。我们希望创造一个开朗的院子,把周围的树木、山峦以及使用者的各项活动都容纳其间。
▲ 树下院俯瞰
现存的老建筑是整个院落的核心,由于无人居住、年久失修,结构已经不太稳固,木材也遭到腐蚀,室内空间压抑灰暗,不符合当下审美和品质生活的需求。但建筑原有的风貌却颇为典型,是当地民居的记忆符号。
如何对待传统建筑一直是乡建项目的重要问题。作为曾经的农业大国,中国文化的乡愁浓缩于乡村,“原汁原味”固然延续记忆,却存在着种种问题:传统的建造材料与结构形式使房屋的开窗面积受到严重限制,降低了室内的采光舒适度;面向乡野而来的都市客们既向往传统的生活方式,又希望享受到现代化的便利,他们的体验式居住状态与村落原住民大不相同。我们不赞成“反现代”的表演,也认可共同记忆与情感的价值。于是,我们以老房子作为空间的核心,用象征性的符号来满足访客对“原生态”的向往。
▲ 用作公区的老房子
▲ 老房子改成的餐厅
▲ 新房子里看老房子
场地东西方向的高差丰富了院落空间的形态。我们根据地形,设计了上下两个部分。在平台分界处,新旧建筑用连廊相接,从室外延伸到建筑内部,模糊了庭院与室内的边界。内庭院将原有的树木保留下来,环绕它们布置了客厅与茶室。透过大面积的开窗,庭中枝桠跃入眼帘,营造出树下生活的惬意场景。
▲ 上庭院连接新老建筑的雨廊
▲ 上庭院穿过下庭院看远山
▲ 下庭院的室外餐厅
▲ 夜晚下庭院的立面
▲ 夜里的院子
▲ 白天的客厅
▲ 客厅
▲ 露台能看到北边的果园
▲ 树下的客厅与露台
▲ 客厅内庭院里的两棵树
▲ 树下的院子
室内局部
▲ 门厅里的天窗
▲ 露台的阳光映进客厅里
▲ 主卧室
▲ 阁楼亲子房间
项目图纸
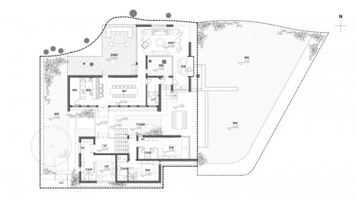
▲ 平面图
▲ 南立面图
▲ 东立面图
▲ 东西向剖面
▲ 南北向剖面
▲ 轴测图
项目信息
项目类型:独立住宅
设计方:空间进化(北京)建筑设计有限公司
面积:326.0m²
项目年份:2019
摄影师:史云峰
厂家:An Hua, JOMOO, Jingyuanxingda, Jingyulu, Nan Tree, Yuanye
主创建筑师:关天颀
设计团队:关天颀、高亢、李俊男、倪想、张凯杰
结构设计/施工方:北京全雅建筑工程有限公司
景观设计:空间进化(北京)建筑设计有限公司
委托方:北京万鸿信息服务有限公司

BIM建筑网




























