在我的城市里,时间倒流,枯木逢春,消失的气味儿、声音和光线被召回,被拆除的四合院、胡同和寺庙恢复原貌,瓦顶排浪般涌向低低的天际线,鸽哨响彻深深地蓝天,孩子们熟知四季的变化,居民们胸有方向感。
——北岛《城门开》
提到北京,大多数人的脑海里都会第一时间闪现一幅星罗棋布的图景,上面有四四方方的建筑紧密排列,如果以云朵的视角向下俯瞰,那些似毛细血管般舒张的通道,便是京城之魂——胡同。任凭钢筋水泥拔地而起,胡同始终以它悠哉的形象收录着市井百姓的琐碎日常,承载着这座城市最本源的记忆。
漫步在五道营,一家名为“那曲水月”的服装店与其它众多的店铺、咖啡馆等一同驻守在这条街的嘈杂声里。作为这条胡同里开设的第二家那曲店铺,店主咪娜请来老友——室内建筑师王大泉,再次为其服装品牌度身定制专属空间。王大泉本着对传统文化的独到见解,以四重要素交叠的形式着眼于过去和当下,最终让烙印着历史脉络的水月店铺,成为一面观察城市百态的小小窗口。
第一重
容纳枯槁
胡同作为这座城市的“旧”,建筑上的一砖一瓦是刻满了皱纹的肌肤,而房梁作为肌肤之下的筋骨,亦彰显着老建筑的灵魂。
完整保留的房梁撑起空间的精气神儿,轻微包裹的色浆为它的灵魂铺陈了朴素的底色。
水泥粗粝纹路豪放,竹帘细腻形逸潇洒。
在物与物碰撞产生的阴翳波纹和敏感之中,“先生服”的线条被衬托得格外清朗素净。
第二重
鼓动生长
店铺生在胡同长在胡同,房屋的结构已然存在,设计是在为它的内部创造更多可能。
“水月”一名,来自店中的一汪池水,饱有四水归堂的意境。如遇雨水,雨滴顺屋檐倾落,池子收集并圈住这汪生命之源,亦有生生不息的期许。
羽毛枫以孤岛的形式屹立池中,在阴柔的水色里,暗自表露毫不逞强的坚韧。
人在玻璃窗内看向它,它也在窗外向内审视,因此对于四季的变幻莫测,它也呈现着不同的表情。
各色粗陶罐里,盛放着随季节开落的植物。
木香、石榴、桂花、腊梅,在建筑的苍老之中寻求蜕变,生出活脱脱的新意。
第三重
时间涌动
天气会变光影会变,人在空间里的气息会变,每一刻的想法也会变。
人不能两次踏入同一条河流,就像此刻眼前的美景在下一秒瓦解、分崩离析,而后又构成新的色彩和画面。
既然抓不住瞬息万变,也不必执着不必抱怨,设计本就不该将自己置于无所不能的地步。
任由不圆满的事物自由产生、发酵,给变幻莫测的光影、景致留有足够的展现空间,每一次面对都会有新的感动。
第四重
内心止静
让自我潜藏雨环境之中,抚琴弄茶。事物清晰地呈现在眼前,而又隐约在光线之中。
思忖的间隙,心里偶然产生空白,不觉之中被当下的安逸笼罩着。
望着池水平齐在沿边呼之欲出,水色折射出真与善的心境。
褪去服装店的属性,空间存在的意义,不过是与人相互依存共同成长。
以传统文化当代化演绎的手法,将胡同的基因延续,从局部缩影看向整座城市的文化,是一代人对往昔和今朝最美好的致敬。
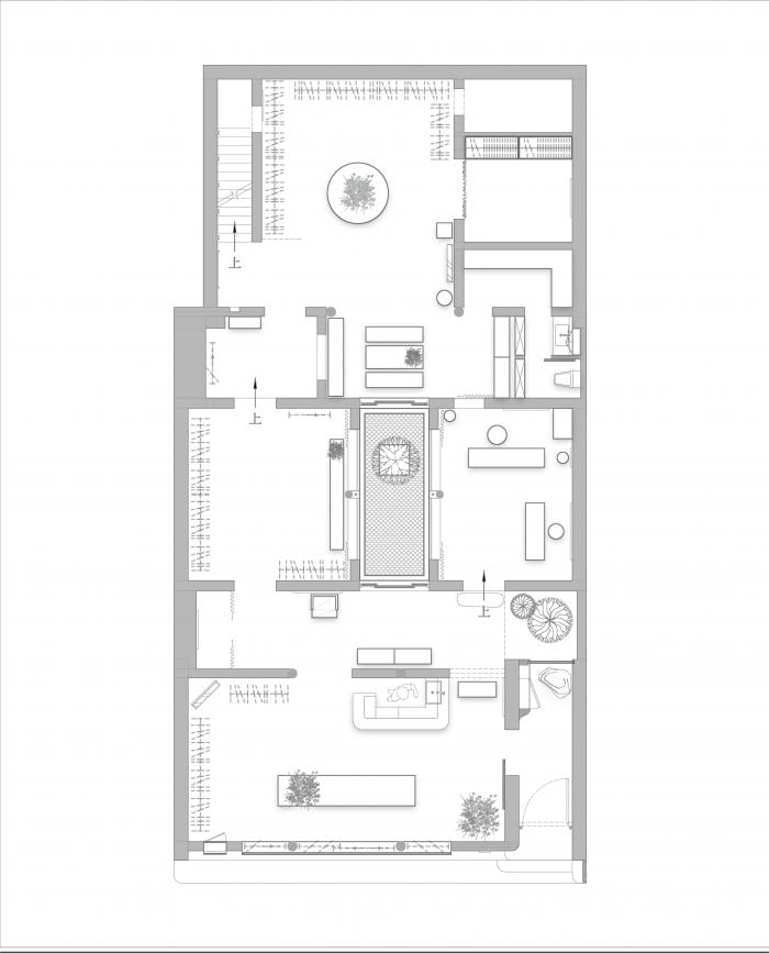
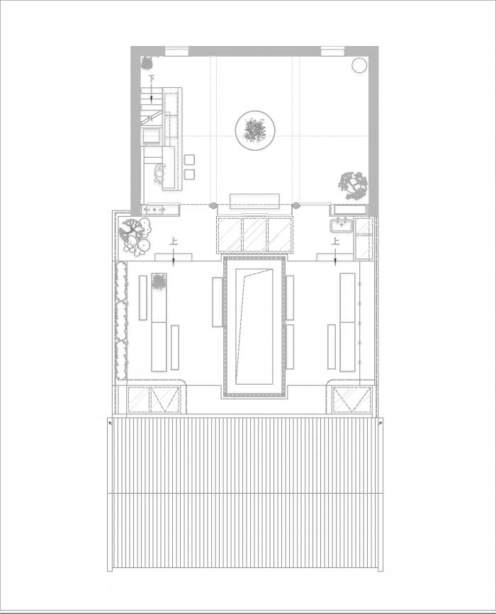
项目图纸
▲ 一层平面图
▲ 二层平面图
项目信息
项目名称:五道营胡同水月
设计公司:北京天作空间装饰设计有限责任公司
设计主创:王大泉
设计团队:白元皓
设计时间:2018年
完工时间:2019年
项目地点:北京市五道营胡同59号
项目面积:200平方米
摄影:马晓春

BIM建筑网
























