五浦市位于茨城县北部,素有渔业繁荣的美誉。日本艺术家冈仓天心迷恋这里海岸线的景色,并把这里作为度过余生的住所。这里有一些历史建筑,如天心设计的“观澜亭”六角堂和天心纪念美术馆。这栋住宅的主人是个渔民。他的祖先是在天心附近工作的水手。据说当年天心留下一句话:“渔民务请植树于山。”这个项目就从渔民希望充分利用林地来设计这栋住宅开始。
冈仓天心(又名冈仓觉三)是一名日本学者,为日本艺术的发展作出了贡献。在日本之外,他作为《茶经》一书的作者而被人们铭记。六角堂是一处可以俯瞰这个小镇的六边形木结构休养所。
由于场地南向是陡坡,对场地做出规划非常重要。建筑师制定了一个规则,不去开发土地,而是遵循现有场地条件来设计,并尽可能地保护树木。建筑师首先勘察了山坡,然后根据数据建模,生成一些平坦的曲面并将它们连接起来。点成为线,线成为面,重复这些步骤,最后建造房屋的合适地点,同时充分利用了场地环境。住宅的平面看起来像“V”字,两翼分别设计用于不同的居住环境。“V”字造型充分利用了场地。
▲ 立面图
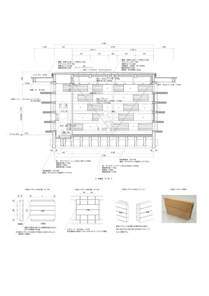
该住宅由简单的材料构成:木头和玻璃。为了使柱子和横向天窗排列整齐,在两者之间以对角的方式嵌入木块,木质框架墙起到了支撑作用。除了斜置木块以外,还安装了固定玻璃和半篷式天窗。
外部木制天窗一年四季控制着光照。不规则的光线透过树木进入室内,看向窗外,室内的人们便可以感受到四季柔和的变化。前门向内是工作间和渔民设备间。楼梯通向上层的工作空间。两个浴缸可放入不同的温度的水,得以缓缓温暖出海归来的渔民寒冷的身体。
木结构由锥形“地基”和一堆原木“柱子”支撑,与五浦海和六角堂休养所附近天然形成的“柱座”——一块垂直突出的基岩层连在一起。住宅两侧不同的空间是悬臂式的,从后面的山坡一直延伸到山谷边。在底端和悬臂的交叉点,三个3米高的锥形“地基”被纯混凝土(坍落度=8厘米)直接安置在基岩上。
这堆原木“柱子”从“地基”向外延展。直径140毫米的“柱子”底部为圆形双排,顶部为单排。直径360-800毫米的大梁连接“柱子”和山坡。这些大梁在山海之间创造了一块“楼层”,人们大部分时间呆在上面。已成型的120毫米厚的木块以斜对角方式排列,外部的木墙充当承重墙。
与当地渔民一起保护森林。富饶森林中的泉水会流向孕育生命的海洋,对海洋环境保护具有重要作用。建筑师、客户以及本地渔民种植了约60棵树,以便将土地恢复成山林。
为此,我们希望这样能给周边区域和环境带来益处,让世世代代居住于此的人们照顾好森林,把天心的规戒传给下一代。当这栋住宅以后需要装修时,他们会用那60多棵树,并种下新树,一直这样下去。
▲ 平面图
▲ 细节图
▲ 细节图
项目信息
项目类型:独立住宅
项目地点:北茨城市,日本
建筑事务所:ADX
面积:204.0m²
项目年份:2014

BIM建筑网












