肥猫中餐厅 / 香稻三秋末,平田百顷间
稻谷/泥土/耕作时落下的汗水
是田野乡间最纯粹的气息
「肥猫」中餐厅上海菊园店延续品牌理念
从本真、自然出发,融合当代审美意趣
打造精致、质朴的餐厅氛围空间
田野 / 五月虽热麦风清,檐头索索缲车鸣
「肥猫」的菜肴来源于田野乡间
拥有温暖质朴又具有纯粹的土地记忆
这一重要特质被糅合进空间情感中加以呈现
村暗桑枝合,林红柿子繁
乡间 / 水满田畴稻叶齐,日光穿树晓烟低
幽暗的过道仿佛乡间小径
带领食客们
从明媚的田野进入宁静恬淡的乡间村庄
一个空间中动人之处体现在其独特的情感记忆
黄铜/瓦楞玻璃/大理石
我们运用了大量厚重的材质
反向表现柔软温暖的质感
山上层层桃李花,云间烟火是人家
情感 / 唤起田野记忆
空间格局中
我们采取“以小见大”的设计手法
趣味性得以处处体现
无处不在的田间小景
也更易唤起食客们对乡村的温暖记忆
形制各异的弧形窗户
是设计师的小小“心机”
或一枝红柿,或层层麦浪
不经意间散发着乡野间的生活气息
「肥猫」品牌的可贵之处
在于对食材本味的坚持和敬畏
我们希望食客能在这个空间中慢下来
认真品味并享受食物带给人们最纯粹的欢愉
语燕鸣鸠白昼长,黄蜂紫蝶草花香
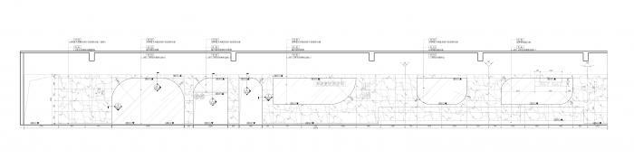
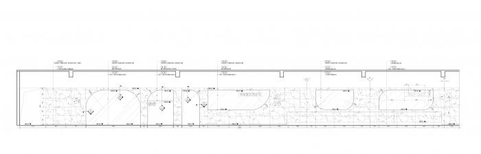
项目图纸
▲ 平面图
▲ 立面图1
▲ 立面图2
▲ 立面图3
项目信息
项目名称:肥猫中餐厅上海菊园店
地点:上海
建筑面积:462 ㎡
设计单位:杭州卧野空间设计事务所
施工单位:浙江杰筑装饰工程有限公司
主案设计:苏静
项目深化:党大勇
摄影:SU
文字图像编辑:33
微信公众号:xuebim
关注建筑行业BIM发展、研究建筑新技术,汇集建筑前沿信息!
← 微信扫一扫,关注我们+

BIM建筑网
































