▲ 院外东南角
项目背景
宗教和修行是两件事,但是两者往往是在同一个躯壳里面。单纯的个人修行其实只要有个能够遮风挡雨保温的容身之所就足够了,但是宗教就不一样了,无论哪种宗教,它都是一种高度社会化的集体行为,必须有能满足人们实用、纪念、思考和进行各种训练、仪轨的物质空间功能和精神引领特色。重要文书经典和宗教人员的言行给信众影响最大,其次就是包括建筑空间在内的宗教艺术对人的影响也至关重要。
每个时代和地域的宗教传播都有当时当地的传播语言,比如佛教从古梵文、巴利文向古汉语的转译,再向白话文的转译,从纸质书到互联网,从普通话到各地方言,经典传播在中国基本都已没有任何问题,但是建筑空间的现代转化并没有跟上语言的转化节奏。
近几十年来,中国的寺庙道观有大量新建,所造建筑几乎都是仿古。但这如同书画艺术,临摹古代名家作品其实只是“继承传统”的一种手段,不能当成目的,将临摹当成最高追求,凡是学过美术的人都知道是幼稚的。佛教(包括道教)建筑空间的建设已经陷入了一种原教旨主义窠臼。2013年,成都一位道长在请一家古建设计院设计建造了一个“古建”之后感叹现在的所谓“古建”设计就像复印机复印一般,千篇一律死气沉沉。寺庙道观建设除了仿古似乎别无他路。关于建筑空间的设计建造观念,设计师十多年来一直以设计实践的方式在给佛、道教界建议:进一步海阔天空!
构思缘起
项目的设计构思起于基地旁边村庄的名称:三界村,使设计师联想到了几个三界:
1.佛说三界:欲界、色界、无色界。这是佛法所说的修行可以达到的三种境界,但还不是最终境界,只是一种阶段;
2.现实三界:生活、宗教、文化。一个人不管是不是宗教徒,只要活在这世上都难免要处在这三界之中;
3.地理三界:邗江、仪征、江都。基地位于扬州管辖的这三个地区的交界处,在地域交界处,人们的心理多少都有些不同于腹地的人;
4.建筑三界:实用、坚固、美观。这是古罗马建筑师维特鲁威的建筑三原则,至今仍然是建筑设计的基本原则,每个建筑都离不开这三点的平衡。
▲ 区位平面
▲ 纵与横的基地特征要素
▲ 方与圆的基地特征要素
▲ 空间体块生成
▲ 手绘
▲ 手绘
空间描述
寺庙相传始建于明朝,坐落于典型的长三角阡陌纵横的平原田野和村路之间,现有建筑为二三十年前所建,已经成为了危房,需要拆除重建。
寺庙东侧和南、北侧围着两个水塘,使寺庙和周边以一种空灵的方式相连接。由于用地较小,布局紧凑也是这次设计的特点之一。中国传统寺庙历来都是院子里建房子,但是这次只能采用房子里面留院子的做法。寺庙主体做成一个建筑,建筑里空出几处作为院子,解决采光和通风问题。
▲ 整体鸟瞰
▲ 隔着水塘望东立面
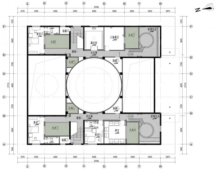
整体分为三条轴线,按照小型传统寺院的布局,天王殿也是山门。往里是一个圆形院落,举头仰望圆形天井,可以感受和思考“色即是空、空即是色”(摘自《心经》),也可以体会“仰观宇宙之大,俯察品类之盛”(摘自王羲之《兰亭集序》)。中轴线两侧各有东西两条内廊连接各个功能空间和4个天井,空间布局吸收了扬州城内传统建筑的特色。
▲ 总平面
▲ 动线平面图
寺庙四周有一条外廊,作为绕佛(佛教一种仪式,也是一种禅定的辅助方法)的路径,同时这也可以环视周边池塘、农田和不远处村庄的景色,亲水与游园的乐趣抵消了建筑一层外墙没有开窗的封闭性,增加了寺庙的亲和力,回廊的屋顶水平线呼应了周边平原的水平向延展性,同时,令人联想起传统江南园林亭台楼阁的空灵与飘逸。
▲ 建筑东南角
建筑主体主要为方正的造型,顶部的大雄宝殿和钟鼓楼的圆形阁楼式造型营造了中国传统气息,同时又具有类似于“飞碟”的一丝未来感。建成后,寺庙的钟鼓声也将唤起当地乡村已经消失的传统记忆。
▲ 建筑正立面
筑主体采用清水混凝土作为主要结构、材质和色调,局部为深咖啡色的钢结构,整体色调也呼应了扬州城内古建筑的传统色调,室内原木色调的使用则增加了温馨的氛围。
▲ 院外东南角
▲ 入口天王殿内
▲ 中轴圆院
▲ 内部大雄宝殿
▲ 内天井
建筑外形与水塘有点类似古代木船,能令佛教徒联想到佛法是出苦海渡人舟的比喻,二层外墙的拱形窗则使人联想到古代佛教石窟的立面。
▲ 由农田远眺
结语
寺庙建设并非佛法的终极目的,那是一个大话题,不是一个建筑能说清楚的。就像设计师为寺庙方案撰写的大门楹联:听闻三界梵钟,出离六道轮回。作为宗教和修行的场所,建筑只是个躯壳而已。
▲ 外观
项目图纸
▲ 一层平面图
▲ 二层平面图
▲ 南立面
▲ 北立面
▲ 东立面
▲ 西立面
▲ A-A剖面
▲ B-B剖面
项目信息
项目名称:扬州观音院建筑、室内及景观设计
坐落地点:江苏省扬州市邗江区公道镇马路村
总用地面积1350㎡(不含水塘面积),建筑占地面积853㎡。
总建筑面积:1038㎡
设计内容:建筑、室内、景观
结构形式:钢筋混凝土,局部钢结构
设计单位:上海善祥建筑设计有限公司 www.sxarchi.com
设计主持:王善祥
主要材质:清水混凝土、钢、木、玻璃、铝合金

BIM建筑网






























