伊朗的建筑公司Nextoffice提出了马什哈德建筑工程组织总部方案——一个为工程师集会交流而实施的项目。建筑雕塑般的体量(目前处于在建中)是根据空间流线生成的,一层的走廊交织穿梭于建筑中并与两边毗邻的街道相连。富有动感的路径留出空间和结构上的空白,使其向公共庭院打开,并引导着行人的流动。
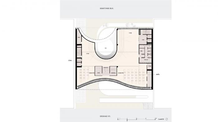
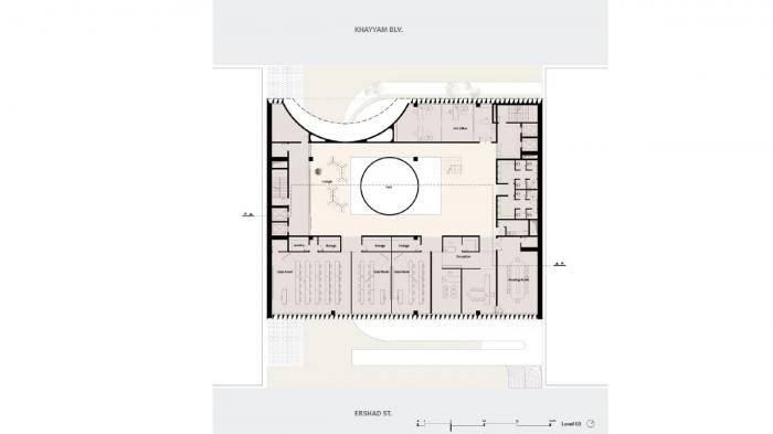
Nextoffice设计的马什哈德“建筑工程组织”总部是为了服务其位于伊朗的建筑工程组织。建筑设计团队以一种清晰有计划纲领的层次结构来规划组织这座纪念碑式的建筑,并将其分成两种公共类型。一个巨大的大厅提供了组织申请者接收证明或许可技术文件的空间,而圆形露天剧场则用于举办建筑工程主题的研讨会、会议和活动。这两个巨大空间反映了专家的类别和建筑工程的专业使命。
提出了马什哈德“建筑工程组织”总部方案,Nextoffice将项目所处的城市环境看作与街景融为一体的雕塑般的建筑实体。在两大室内空间的组织上,设计团队将公共集会空间、圆形露天剧场和证件许可大厅置于朝向建筑底层的位置,可从街上直接进入。地下室、一层和二层空间从雕塑般的空间中可直接达到,该空间定义了建筑标志般的体量,并表达了其受伊朗传统建筑形态和结构的影响。
项目信息
项目名称:马什哈德建筑工程组织总部
建筑设计:Nextoffice
项目地点:马什哈德,伊朗
面积:14,200m2
项目状态:在建
业主:Khorasan Razavi Engineering Organization
团队:Alireza Taghaboni with Homa Asadi, Mohamad Motamedinia (+Project Manager), Majid Jahangiri, Sepideh Sarrafzadeh, Mohamadreza Gholami, Hoodad Zoroufchiyan, Roja Azizzadeh, Elnaz Kharghani, Ali Maleki, Asal Karami, Mohamadamin Zargar, Sarvenaz Rezaei, Mahafarid Kazemi

BIM建筑网
















