Tain l'Hermitage山上的梯田自罗马时代就开始种植,并因生产罗讷河谷最好的葡萄酒而闻名。尽管城市环境下的葡萄酒行业面临诸多挑战,但德拉斯兄弟决定投资过去,修复位于市中心的历史房产。
新的酒窖和商店采用坚实的石材结构,围绕花园而建。石材与场地有关,具有热惰性的多孔墙壁为葡萄酒创造了理想的条件。葡萄园内的坡道给游客提供了一个高效的室内环境,来探索葡萄酒酿造工艺。从屋顶露台到庄园下的酒窖,都能欣赏到山丘的景致。阳光通过连续的天窗进入画廊,由于直接光线对葡萄酒储藏有害,起伏的墙面是储罐和桶厅的反射器。
商店形成了相对的花园墙,其阴影背后是有着交错的石柱的线性空间。一棵现存的栗子树在墙上留下了痕迹,在树下面可以看到商店的阴影和玻璃入口。
现有的豪宅将自己定义为花园的中心元素,并被改造成了一个与酒庄相连的宾馆。它设有一间餐厅,一间品鉴室,一个可以俯瞰花园的卧室以及一个收藏历史性酒瓶的酒窖。
这座酒庄是为被触摸而建。结构立面由承重的50厘米厚的Estaillade石砌成。柔软且相对较轻的砂岩非常适合于大型石材建筑,既可行又适用于厚实的结构块。起伏的主墙长80米,高7米,具有几何稳定的结构形式。墙壁是由机器人单独雕刻的砖块制成,这些砖块被张拉到地基上,用不锈钢电缆水平连接。智能加工减少了浪费,而由此产生的砾石可重新用于铺设花园。尽管这堵墙采用了独特的技术,但传统上是由一对父子的石匠团队安装而成的。
项目图纸
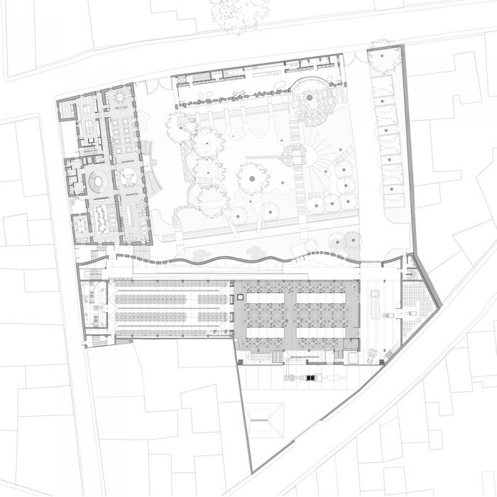
▲ 总平面图
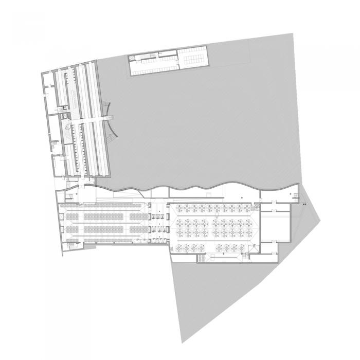
▲地下一层平面图
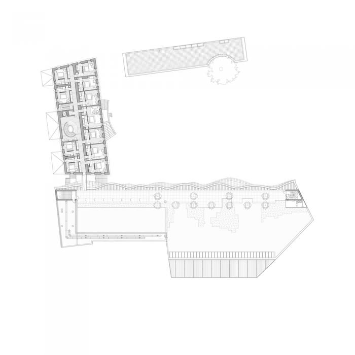
▲一层平面图
▲二层平面图
▲南北剖面
▲东西剖面
▲节点图
▲草图
项目信息
项目类型:酒庄
项目地点:TAIN-L'HERMITAGE,法国
建筑设计:Carl Fredrik Svenstedt Architecte
面积:5000.0m²
项目年份:2019
摄影师:Dan Glasser,Sergio Grazia,Carl Fredrik Svenstedt
厂家:Schuco, Bega
设计团队:Carl Fredrik Svenstedt, Boris Lefevre, Pauline Seguin, Thomas Dauphant, Marion Autuori, Benoit- Joseph Grange
客户:Champagne Deutz, Delas Frères
结构工程:Becamel Mallard
石墙建造:Atelier Graindorge and Stono
热工设计:MAYA
景观设计:Mélanie Drevet, Christophe Ponceau

BIM建筑网































