前言
建筑实践在大部分语境下绝不仅仅是建筑师的价值solo,而更多地表达为多维度深刻融合激烈碰撞的设计沙龙。它高度凝聚了工程建设各专业的集体智慧,集艺术和技术于一身。
城市名片
君到新林江口泊、吟诗应赏谢玄晖。
徽创君泊项目位于合肥市西北部,东临董铺水库湿地保护区,南望大蜀山森林公园,地理位置十分优越。山水是大自然的馈赠,是城市的宝贵资源,我们致力于生态友好型高品质居住社区建设,打造城市水岸生活新名片。
▲ 区位分析
“泊”是许多人对回家的定义。因此我们将水意向化引入基地,结合建筑形成社区入口半公共的庭院空间,作为自然景观与居住空间的转折,也作为城市维度与建筑维度的耦合点。水院的设计不流形式,但求性格。我们解构了传统居住空间院落的进与路,把传统空间的秩序抽象为空间的层级。
如果我们定义建筑实体围合的水院作为一级空间,那么片墙、格栅等构筑物所限定出的不同尺度和开放度的庭院则可以叫做二级空间。一级空间与二级空间相互包容、相互递进,其复杂性体现了居住行为的广泛性和社区场所的多元性。
▲ 庭院入口实景
▲ 庭院实景
独立品格
满眼生机转化钧,天工人巧日争新。
原创性是我们团队一贯追求的核心价值。建筑作为统领整个社区入口空间实体,其造型必须能够与场地形成丰富的对话。因此我们摒弃了市场上常见的风格化产品,另辟蹊径,希望建筑与庭院空间可以讲述一个能够引起读者的记忆和共鸣的故事。
▲ 东立面日景
▲ 东立面夜景
我们用硬挺的铝板线条勾勒出建筑主体框架,7.5m通高镜面玻璃模糊了实体与空间的界限,作为填充框架的皮肉存在,创造出建筑与环境融合对话的和谐感。首层混凝土质感的敦实体量托起悬空之姿的晶莹玻璃体,强烈的虚实对比引起赋予建筑趣味,展现了富有动感又不失现代特性的形体张力。
▲ 形体概念草图
▲ 形体实景(日景)
▲ 形体实景(夜景)
▲ 形体实景(大悬挑)
完美的长方体体量在某些界面深挖大洞,形成阳台和入口,营造出建筑界面的戏剧性变化。洞口分别朝向董铺水库和大蜀山的方向,表达建筑对于自然空间的敬意;而洞口的斜面则引导人们产生探索建筑内部空间的兴趣。这些富有寓意的设定暗示着建筑与外界环境深切的沟通欲,进而加强了建筑的内外互动,让建筑、室内和景观从空间情感上联系为一个整体。
▲ 阳台实景
▲ 主入口实景
除了玻璃体量上的洞口,我们在一层对应室内的洽谈空间特别设置了高透超白玻幕墙,加强室内与室外的交流互动。夜间,室内灯光照亮悉心陈列的家具摆设,通过玻璃渗透给城市界面一份37°C的邀请;而昼间明朗的阳光把外界的景观输进室内,给室内空间足够的照度和赏心悦目的窗景。
▲ 建筑内透实景
▲ 建筑室内透过高透玻璃看外部景观实景
室内空间延续了建筑的设计语汇,利用几何形体和材料质感创作处比例和谐的构成特质。在光线手法上,空间上部广线朦胧,下部通透而实现开场,设计师通过这种空间规划,将观览者的注意力集中在需要表达的事物之上,引导参观者的视觉和触觉体验按照既定路径行进。
▲ 室内实景
▲ 室内空间实景
精益求精
混元神巧本无形,匠出西湖作画屏。
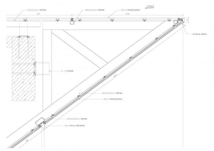
建筑的矛盾性与复杂性不仅仅是一种空间理论,更在实践中时时刻刻影响着建筑呈现的品质。对于建筑效果的追求最终必须通过精细化设计落到建造的各个环节当中,每个细节都值得反复推敲。建筑表皮7.5米通高镜面玻璃是形成建筑形象最重要的构图元素。玻璃的安装方式为上下固定模式,与建筑主体脱开形成空透轻盈效果。日间,镜面玻璃对天空、云朵、树木的反射营造“云深不知处,只在此城中”的错觉;在夜晚,空腔内上下结构外包裹的斜面铝板,被暗藏式灯光照射打亮,更显精致细腻。
▲ 幕墙细部
▲ 空间剖面
▲ 高反玻璃节点
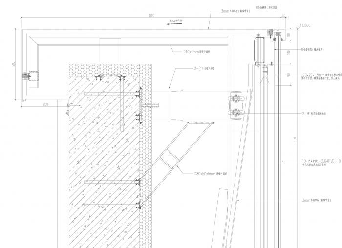
大面的观感往往取决于细节的把控。常规做法中隐框玻璃幕墙拼接处的胶缝往往凹凸不平,即便工厂定制的平整度堪比iPhone屏幕的镜面玻璃也会被丑陋的胶缝毁于一旦。因此我们特别在隐框玻璃拼接处使用定制铝扣板遮蔽胶缝。位于东侧二层阳台外的铝板面积较大,普通铝板容易变形坑洼,因此我们设计采用蜂窝铝板,配合同色定制“宽缝”,增加了立面的挺括度和精细度。
▲ 镜面玻璃近景
▲ 蜂窝铝板节点
结语
当下,建筑师有更多的实践机会来重新思索现代居所的建筑外表以及艺术生活的文化内核。在君泊项目,我们为合肥打造了一个全新的居住空间和创意示范区,并试图通过这次建筑实践,来探索城市、建筑、人三者之间的关系。这次实践绝非结束,而仅仅是开始。
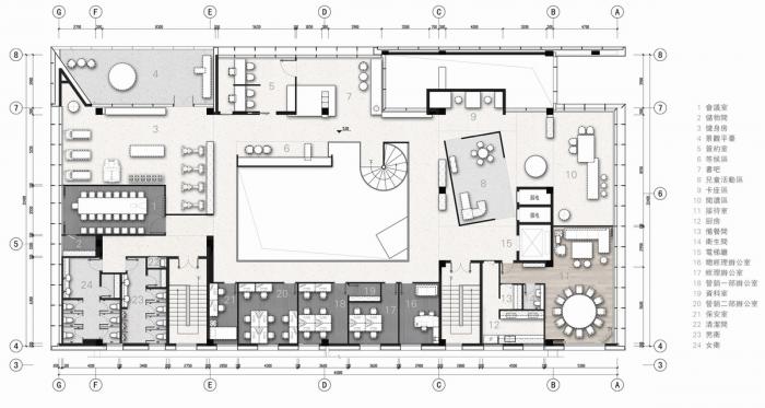
▲ 首层平面图
▲ 二层平面图
▲ 东西立面图
▲ 南北立面图
▲ 墙身大样
项目信息
项目名称:合肥徽创君泊
建筑面积: 1518㎡
项目地址 :合肥市蜀山区宝月路和振兴路路口
完成年份:2019
建筑公司:上海天华建筑设计有限公司
公司网站:http://www.thape.com/
设计团队:粟憬维 高俊宁 刘依然
景观设计: 深圳奥雅设计股份有限公司
室内设计: 广州五加二装饰设计有限公司
施工图设计:安徽省建筑设计研究院
项目摄影师:曾江河
文案撰写者:王璞 刘依然

BIM建筑网


































