“去向那无疆之域,去自然的魅丽多彩中发现”—— Le Corbusier
项目背景 l 泾渭之间
西安阳光城文澜府位于西咸新区泾河新城片区,距离西安市中心区域约30公里,北侧毗邻泾河蜿蜒而过,再北便是巍峨雄浑、传承千载的中国第一高砖塔——崇文塔,俯瞰八百里秦川。
西安阳光城文澜府是一个高层加洋房附带商业的复合型社区,共由12栋建筑组成,未来将在泾河新城核心区提供571个居住单元。目前示范区——“文澜书院”已建成并投入使用,建筑的功能初期为整个项目的接待中心,后期改造后作为社区配套使用,项目整体预计将于2021年建成。
场所精神 l 宁静致远
随着“大西安”时代的到来,西安城市规模正在经历着前所未有的扩张,而西安作为历朝古都,历史文化底蕴深厚。作为建筑师,在创作时,我们首先考虑的是与文化地标崇文塔的呼应关系,如何延续该地区的文化属性和保证文脉连续性的同时,融合新生,赋予建筑与城市当代文化新价值,是我们设计的出发点也是必须思考的问题。
崇文塔展现了古代精湛的建造技艺,同时表达了“建塔兴文”的思想,设计以“书院”为出发点,以现代建筑空间延续中国传统书院精神,以沉浸式的文化氛围,内向、自省的空间气质,来契合当下都市人群对传统精神的追求与回归。
设计理念 l 文澜书院
我们将建筑体量切分成三个大小不同的盒子,三个盒子彼此扭转形成缝隙,另外建筑高度从东到西逐渐降低,在呼应城市转角空间的同时,可以形成露台远眺崇文塔。考虑到基地周边仍处在待开发阶段,我们通过围墙围合来遮蔽不可控的外部环境,这样建筑和围墙之间便形成大小不一的内部院落空间,然后通过不同的院落空间组织引导人流,达到移步异景,循序渐进的效果。
▲ 方案草图
▲ 体块生成
▲ 屋顶鸟瞰(正在施工中)
▲ 沿街透视
动线展示 l 移步异景,循序渐进
1. 第一进院落
入口处理简洁低调,由一座拱桥引入到石墙与建筑形成的“缝隙”中,而入口则置于一侧,通过含蓄、隐晦的入口空间处理,将外界的喧嚣隔绝于建筑之外。
▲ 入口空间水景
2. 第二进院落
书院空间序列和园林墙院的理念贯穿于项目的始终。“墙”与“院”的结合,意在追求一种朴素简洁的外观气质。
3. 第三进院落
多重入口与庭院的设置显著提升建筑的归家礼仪,延长后的参观动线让区域内部有足够空间实现环境的蜕变。在设计中,借鉴传统园林的手法,把墙作为界定院落的要素,将空间限定为多个尺度各异的院落。
材料表达
建筑立面材料主要采用白色大理石与灰色镀膜玻璃,将传统的砌筑手法抽象提取到立面当中。整个立面形似书架,错落有致,镂空处配以灯光,形成丰富的光影变化。
▲ 白沙米黄石材围墙
▲ 灰色镀膜玻璃幕墙
结语故事
西安阳光城文澜府是以建筑回应城市新旧交融对话的一次探索,传统与现代再此碰撞。当它在西安这座千年古都完美呈现的时候,与整个城市和所在环境是融合的,它是一座有温度的售楼处,一个归家的入口,一个以紧凑的空间创造极具社区归属感的场所。
技术图纸
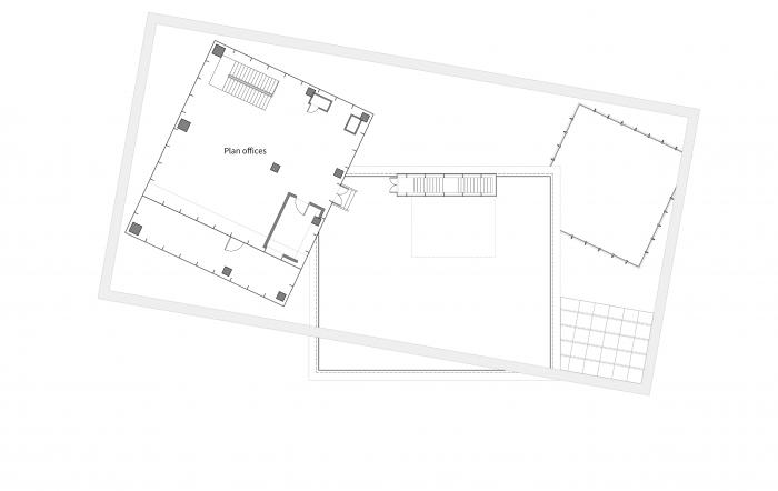
▲ 一层平面图
▲ 二层平面图
▲ 三层平面图
▲ 南立面图
▲ 剖面图
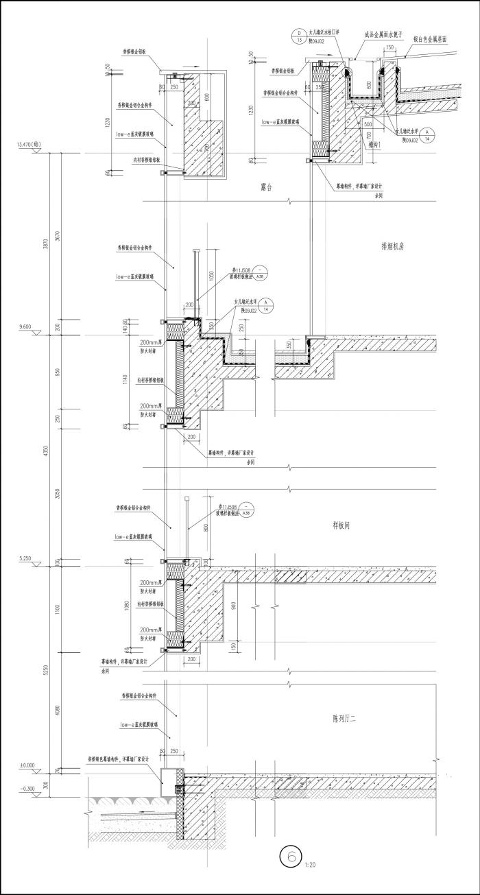
▲ 墙身节点大样
项目信息
项目名称:西安阳光城文澜府
业主单位:陕西旭之光置业有限公司
项目位置:中国·西安
建筑方案、施工图设计:上海天华建筑设计有限公司、西安天华建筑设计有限公司
设计总负责:荆哲璐胡润芝
设计团队(方案):王志新 伍嘉依 郭正豪 张文华 温志 刘奉洲朱瑾秋翟明秀刘敏
设计团队(施工图):王晓东 王飞斌 鲍保卫 马国文 康学飞 许宁宁 肖洋 刘浩 辛建敏 王修森 李凯 刘贞珍 俱超志 杨帆 侯鑫 张炎司 凌燕
商务合作电话:13818956965
甲方设计团队总负责:任瑞
甲方设计团队:赵慧梅李娟娟 杨挺 石玥
用地面积:28162㎡
建筑面积:1400㎡
建筑材料:白沙米黄石材灰色镀膜玻璃 银灰色铝板
景观设计:上海罗朗景观工程设计有限公司
室内设计:上海羽果装饰设计有限公司(软装)、上海柯翊建筑设计有限公司(硬装)
幕墙设计:北京凯顺腾工程咨询有限公司
设计时间:2019.04-2019.12
建筑摄影:无舍建筑摄影

BIM建筑网






























