▲ 入口
这是一个住宅项目,房主是一位艺术家,希望通过建筑的改建,可以使自己有一个可居住的工作室。同时也希望艺术创作和家庭生活可以互不干扰。
原始的建筑主体,仍然作为日常起居生活的空间,利用原有院子的地下部分,改造成为更宽敞、更独立且更灵活的艺术创作空间。同时地上部分仍然作为院子提供给生活空间的景观和户外活动。
▲ 设计分析
整栋住宅被分为地上和地下两套空间系统。两者各自拥有完全不同的空间氛围。沿着垂直方向互相之间保持一种内在的联系,构建出两个不同的、重叠在一起的平行世界。
▲ 模型效果
地上的庭院是家庭日常起居的场所,将地下工作室的屋顶作为家庭的景观。这里植物尽可能的丰富,让生活在此的家人可以感受到轻松和自在。在美丽的环境中,让孩子可以体验和了解自然,让自然与生活息息相关。
▲ 地上院子
▲ 一层的钢楼梯
地下空间作为主人艺术创作的地方。虽然在地坪以下,但是这里空间的两端设计了两个尽可能大的地下庭院。为地下工作室提供必要的自然采光和通风条件,同时创造了两个安静且独立的精神世界。这里与室内相连,室内外是一个不可分割的空间统一体。自然光由明至暗,再由暗至明。这里的景观除水和竹子外几乎没有任何多余之物,由此使得整个空间的氛围像是凝固的空气,安静而深沉,为创作者提供了一个可以独立思考的场所。
▲ 下沉庭院
▲ 坡道
▲ 下沉庭院与一层的连接
▲ 下沉庭院
▲ 画室
▲ 画室玻璃天窗
在这片地上和地下的两个平行的世界里构成了家的新的定义:地上庭院由温和的实木和半透明的穿孔铝板所包裹,半室外的露台结合丰富的绿植,营造出一片舒适的氛围;地下的空间由清水混凝土浇筑而成,坚硬、冷静的外表,透露出坚定而深刻的独立性,不受外界的影响,从而获得心灵的自由。
▲ 下沉庭院
项目图纸
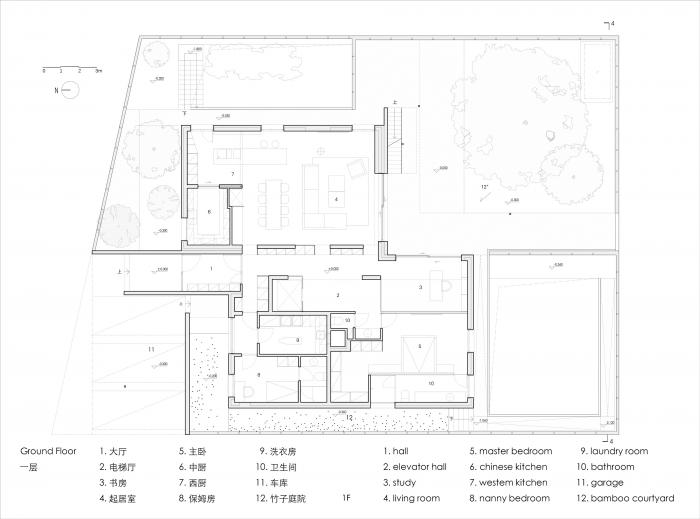
▲ 一层平面图
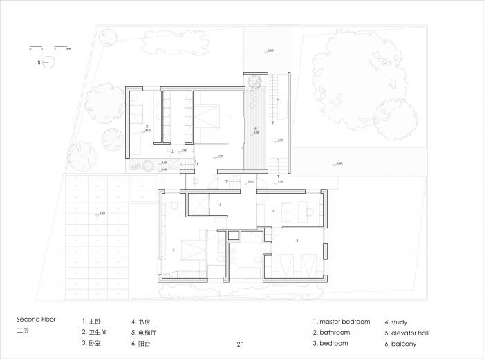
▲ 二层平面图
▲ 地下一层平面图
▲ 屋顶平面图
▲ 东立面图
▲ 西立面图
▲ 南立面图
▲ 北立面图
▲ 剖面图2-2
▲ 剖面图4-4
项目信息
项目名称:两重院
项目地址:北京,中国
完成年份:2018
建筑事务所:TAOA陶磊建筑
公司网站:http://www.i-taoa.com/
邮箱:[email protected]
主创建筑师:陶磊
设计团队:陶磊,陈真,康伯州,李京,张婧泓
结构:李仡团队
景观:TAOA陶磊建筑
室内:TAOA陶磊建筑
施工:盛长维团队
建筑摄影:陶磊

BIM建筑网





























