城市的更新是一个不断延续文化记忆的过程,而存在的建筑则是一种媒介,使人们去感受文化的存在。承载历史,融合新生——南京锦麟融誉,将城市精神和历史文脉融于一地,徜徉于此,时空穿梭折叠,现代与古朴在这里相互碰撞而后又相得益彰。
▲ 示范区实景照片
新生 l 与历史私语
晋人张勃记诸葛亮出使孙吴,以“钟山龙播,石头虎踞,此乃帝王之宅也!”赞叹秣陵山川,正是此地理优势吸引东吴建都,自此延续六朝。面对如此厚重的历史文化底蕴,如何承载历史,融合新生,赋予项目于城市当代文化新价值,是我们设计的出发点,也是必须思考的问题。
▲ 南京古城墙
“现代”和“沧桑”是南京城的两张面孔,建立在对南京城的深刻理解上,我们希望整个设计中能体现出一种新与旧的对话与碰撞,在场所与空间的徜徉之中能让人感受到一种时空折叠之伟力。
南京传统建筑整体呈现出前厅堂后院落的空间序列,并体现出前礼序后自然的空间特性。法古治今,前场我们通过空间上的层层递进与形式上的对称,来体现礼序感。后场则通过现代景观造园的手法体现自然和谐的空间特质。这恰恰是我们想要赋予传统空间呈现方式以新的使用体验。
▲ 场地生成动画
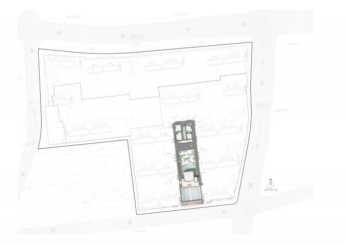
▲ 示范区总平面
载体 l 砖之美学馆
在时空长河中,当下即是历史,过去也是未来,艺术与审美推演的最终都是从过去中寻找答案,越是经历过历史长河冲刷而长存的符号就越是有生命力。而作为文化的受体,建筑需要文化符号的载体方能体现出在地性的和谐。
我们从南京浩如烟海的文化资源中抽丝剥茧,取南京最重要的历史文化遗存——古城墙,寻出砖这一符号,打造“砖之美学”的示范区概念。“砖”这一元素,正是历史的载体,以一种沉稳感、包容性、承载力,体现并塑造着我们对场所的想象力。
▲ 示范区效果图
南京自古以来便是天下文枢所在,于是我们便提取出 “书卷”这一符号,来对南立面形象进行塑造。通过玻璃与实墙面的虚实划分使南面整体形象像是一本翻开的书,打开的画卷。
前场则通过方与圆嵌套的景观浅水池来打造 “天圆地方”之概念,寓意“卷展乾坤”,我们希望用这些古元素去打造全新的文化体验。
▲ 立面生成动画
吴冠中的书画作品《双燕》中,跳脱的元素打破均衡的构图,同时也为画面增添了活力。以《双燕》的构图为载体,我们借鉴南京古城墙特有的“龙吐水”现象,所引入的玻璃水幕为南面坚实沉稳的形象增添了生机与灵动。左侧屋顶四个构筑物则是仿照中国传统水墨画消隐的笔法,在打破相对均衡的构图的同时也释放出一种趣味与活力。
▲ 吴冠中《双燕》
▲ 示范区实景照片
在“新”与“旧”的理解上,我们不仅只是通过传统的空间组织方式、古老的文化符号与现代的设计手法来体现,还通过材料本身所传达的时代感作为载体来呈现这种对比。
如果说传统的符号是一种历史的载体,那么工业化现代化的今天,玻璃正是浓缩了二百年现代化进程的时光载体。光洁通透的玻璃幕恰到好处的与粘土青砖的粗砺坚实呈现对比,更使现代与古朴更加相得益彰。
对民族古老的记忆中的 “砖”的理解和运用,我们并没有停留在它所呈现的封闭的墙体上,而是去探寻一种新方式去创造文化新价值。在青砖的砖面中,我们又通过渐变、凹凸、镂空等砖砌法的变化,为立面增加更深一层级的虚实对比,并对其比例与位置反复进行推敲,最终确定最合适的分布比例。
▲ 砖法变化推敲动画
砖法变幻在扩展实墙面细节的同时,也随白昼之时间行进而产生丰富的光影变化,在前场的恬然静谧之中,青砖、红铜、橘光、水瀑,随四节更迭而隽永深刻,随朝晖夕阴而气象万千。
▲ 示范区实景照片
作为中国较为传统建筑材料,古法粘土青砖的烧制工艺已渐渐消失在历史当中,为了最大限度的体现古砖的古朴质感,我们走访了许多地方,最终寻找到一种合适的砖材。
▲ 示范区实景照片
同时,作为青砖的对比补充,我们又挑选在中国文化中象征尊贵气息的红铜色作为砖材料的延伸与拓展,它既提升了立面的精致度,又符合南京六朝古都的气质。
力场 l 空间力量
彰显空间对人施加的感受是建筑设计特定的环节,而恰好,空间本身就是一种力场。我们一直希望用空间最根本的力场去对人产生作用力,用一个空间去导向下一个空间。
▲ 示范区实景照片
前场庭院,水景步道与分立两列的娜塔莉树形成一道视觉通廊,通廊的力场便是吸引人经由通过。穿过步道,禅意静谧的空间让人心绪渐渐趋于平和宁静。
步道的尽头便是一道”一线天”似的狭长且开放的空间,这种空间作用力使人产生一种强烈的好奇心与探索神秘的欲望,而入口又恰好巧妙地隐藏于这个空间之中。转场之间,入口悄然映现。
▲ 示范区效果图
▲ 示范区实景照片
推开铜门,空间骤然放大,视觉充盈光亮,新旧完成转场。一门之隔,仿若时空穿梭,古朴与现代被时空的力场折叠于此地。
▲ 示范区室内实景照片
通过旋转楼梯下至负一层,空间豁然开朗,人的感知被空间的作用力放大且延伸。天光充盈于中,感知微妙且敏感,视线所及,斗拱悬吊顶,沙盘气恢宏,天光映云影,曲径绕婆娑,这一些都为参观者打造出一种时空变换的体验。
▲ 示范区室内实景照
站于沙盘之前远远望去,气势恢宏的玻璃幕在云雾变幻中边界渐渐模糊,仿若玻璃体不再包裹室内,而是室外,世界仿若沙盒,乾坤尽收眼前。
移步下沉庭院,重峦叠嶂之中,通幽曲径,辗转之中,青草、芳花、浅溪、涌泉、虬松、拱桥、水帘、洞天,一幅幅画面交织成一片秘境森林。空间用最原始的力场,让人产生出涉猎探奇之欲望。曲径掩于深处,沉醉不知归路,回首之中,晶莹剔透便隐匿于葱翠之间。繁忙的现代生活也可解忧散愁于此时此刻。
兜转掩映之间,回望售楼处,光洁的玻璃面上,天光云影,灯火扶疏。
在此刻,远离城市的喧嚣,在此地,我们已然塑造一种新的居住方式。
结语 l 融合
“一片封闭的墙体并不是仅仅是防御性的,它是入侵性的,表现着占有者在城市中居住的强烈意愿。同时,它提供了一个私密生活在内部得以展开的场所”
——安藤忠雄
未来的场所将是人、建筑、城市的多尺度融合。一片封闭的墙体也不再仅仅有着防御和入侵的特性,其更是包容在场所中的一部分,且会重新塑造占有者在城市中的居住方式。于场所,锦麟融誉将创造出新的人居生活体验;于建筑形式,锦麟融誉赋予建筑与城市当代文化新价值;于城市,锦麟融誉将成为刷新南京颜值想象的新名片。
项目信息
▲ 总平面图
▲ 一层平面图
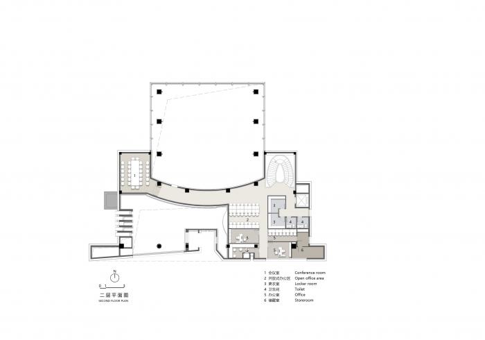
▲ 二层平面图
▲ 地下一层平面图
▲ 立面图
▲ 剖透视图
▲ 爆炸轴测图
项目信息
项目名称:锦麟融誉
项目地点:南京市栖霞区合班村
建筑面积:地上 735.44㎡ 地下 1860.80㎡
业主单位:新希望地产 融创中国水利地产
甲方主案:李勇
建筑设计:上海帝奥设计集团
设计团队:
示范区:设计八所张志晓 黄跃杰 邰雪东
大区:设计八所 张志晓 唐伟 王立威 吴旱 陈尔东 马盼盼 ZN DESIGN STUDIO(郑章愚 边际 樊思远 谷林)
室内设计:香港鄭中設計事務所(CCD)、深圳矩阵室内装饰设计有限公司
景观设计:贝尔高林(香港)有限公司
施工图合作单位:南京兴华建筑设计研究院股份有限公司
幕墙设计:邦历(上海)建筑工程有限公司、上海旭密林幕墙有限公司
泛光设计:RDI瑞国际照明设计
工程施工:邦历(上海)建筑工程有限公司
设计时间:2019.04设计 2019.12完工
摄影:曾江河 汤凌霄蒋衍青

BIM建筑网



































