▲ 庭院
这是一个旧房改建的项目,原建筑是一个地上两层、地下一层的别墅,房屋附属的空地分布在建筑的四周。这个建筑与周围的别墅相比,唯一不同的是东侧的空地是一个70cm落差的缓坡,在这个普通的别墅区里,成为一个有趣的特质。
▲分析图
▲入口
▲主入口面向内院
在设计之初,便以抽象的方式来定义这座建筑,希望做一个拥有无形生活边界的场所。让建筑中每个单元统一在新的空间场所中。生活的范围可以延伸至建筑所占有的全部角落。由清水混凝土浇筑的围墙与平台合为一体,漂浮于地面之上,定义了新的空间。东侧的微坡与新空间之间形成了一条缝隙。就是这缝隙使院子的整个空间像是飘浮在空气之中,脱离了原有的环境,形成了全新境界。
▲外立面
在其中植入不同树木和岩石,只有清澈的玻璃划分出室内与室外,脱离于地面的新空间,恍惚置身于社区之外。新空间中设置了两个下沉的庭院,这不光是给地下室提供了自然和视觉的通透性,还为地上新的空间体提供了垂直方向空间的层次和变化,并形成了地上空间区域的界定,在地上这个扁平的新空间中,增加了空间的力量与厚重。这浮于地表的新空间25米边长的混凝土边墙全部浮在空中,在混凝土的物理重量之下,形成了空间特有的张力。院中地表向外部空间得到了延伸,与外界相连,使院子无限深远。生活其中,久坐或行走,总能获得一种空灵与力量叠加所带来的安宁与惬意,营造出特有的生活的诗意。
▲通往屋面的坡道
▲漂浮的院子
▲半室外平台
▲庭院
▲下沉庭院
▲下沉庭院
这是一个充满自由的新空间,半户外与露天庭院相互交织,创造了一个丰富的内部环境,光线时刻不停地变化。与城市空间恰恰相反,这里感受轻松,躲避城市的嘈杂,一种新的半户外景观在居家环境中被营造出来。它是为生活定制的新空间,通过丰富的层次感营造出一种新的生活方式。
▲庭院
▲主入口
▲混凝土连廊
▲茶室
▲顶层画室
▲通往画室的楼梯
▲通往画室的楼梯
▲模型照片
项目图纸
▲总平面图
▲一层平面图
▲二层平面图
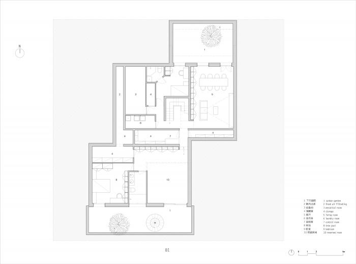
▲地下一层平面图
▲屋顶平面图
▲剖面图1-1
▲剖面图2-2
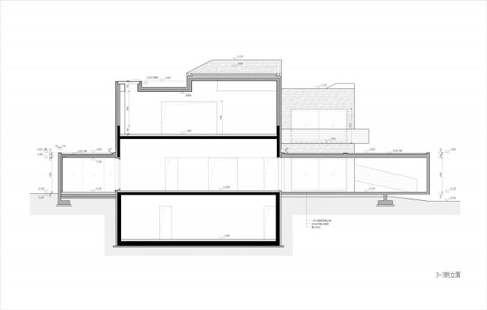
▲剖面图3-3
▲剖面图4-4
项目信息
项目名称:浮院
建筑设计:TAOA陶磊建筑
公司网站:http://www.i-taoa.com/
联系邮箱:[email protected]
公司地址:北京
完成年份:2018
项目地点:北京,中国
主创建筑师:陶磊
摄影版权:陶磊
设计团队:陶磊,陈真,康伯州,李京,张婧泓
结构:李仡团队
景观:TAOA陶磊建筑
室内:TAOA陶磊建筑
施工:盛长维团队

BIM建筑网






























