项目背景
反正餐厅及取舍行旅酒店整体改造项目位于深圳这座城市现代繁华和陈旧没落的交汇处,一个叫做玉田的城中村。街区的新和旧呈现着这座城市的变迁和关联,带来了关于城市更新的命题。
△ 门头
整体概况
项目共七层,包含负一层和一层的反正餐厅,二层到六层的16间取舍行旅客房。反正建筑事务所依照原建筑的梁柱框架,在秩序界限中实现功能交织,构建具有新鲜活力的都市体验。
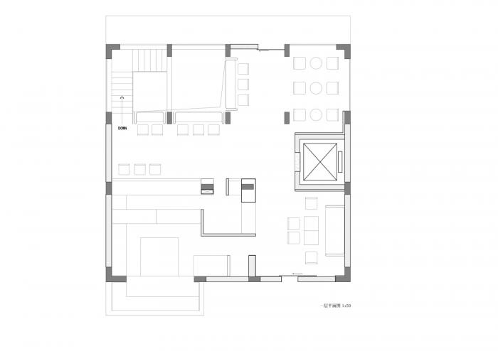
△ 一层平面图
△ 负一层平面图
亮点描述
1.关于采光
建筑开放的楼面和落地玻璃给人亲切而开阔的舒适感,适当的采光保证了项目的基础体验的质量,同时在部分空间我们也希望能保留一定城中村的感受(幽暗深邃),呈现建筑特质,与周遭环境和谐互融。
△ 门头
一至六层,明亮而通透的窗外景观和光影游曳的曼妙毫无保留地装进这个空间中。负一层,当点状的灯光氤氲出慵懒的气氛。利用光源营造出两层不同的氛围,满足不同情绪下的场景更换。
△ 一层餐厅
△ 负一层餐厅
2.关于空间结构
在有限的空间内,减少公共区域的流线,最大化客房内面积。强化原建筑的梁柱结构,并以此来叙述空间秩序与功能的划分。
△ 城景客房
3.关于功能区划分
打破住宿固有功能区的分划,将客房内功能分散,以实现将空间最大化利用和体验的优化。客房浴室的淋浴、马桶与洗手台实现了完全独立的“三分离”状态,多人入住时,使用会更加方便,也保证了浴室空间的干爽和整洁。
△ 城景客房
△ 商务客房
△ 浴缸客房
4.关于空间层次
增加纵向高差层次;过道和转角设施拉长动线,通过这样的设计来弱化面积过小的弊端同时在有限面积中空间和体验的层次。
△ 城景客房
5.关于材质
裸露的水泥墙面质朴而略带粗犷,搭配上温润的木材尽显温馨。从建筑本身的取材,搭配以合适的材料辅助呈现出舒适自然的状态,去除形式化装饰,让材料本身就成为一种美化,这样却让整个空间有了张力和辨识度。
△ 商务客房
△ 浴缸客房
尼采说:“在建筑中,人的高傲感、人对万有引力的成功和寻求权利的意志都显现出看得见的外形。”我们躬身入局,不关乎产业升级,在意的是人的连接、社区的复苏。我们希望这个项目不仅仅是一个物理的空间,而是一个平易近人的场域,可以成为匆匆而过的路径中人们愿意停留的所在。
△ 走廊星空
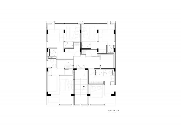
△ 标准层平面图
项目信息
名称:反正餐厅及取舍行旅酒店整体改造项目
位置:深圳市福田区南园路49号
类型:商业空间
设计:反正建筑事务所
面积:900㎡
状态:完工
时间:2019年
微博:@反正return
公众号:反正return
微信号:suyu7898123

BIM建筑网


































