这座精致的住宅专为某蓝筹地产开发商家庭而设计,风格兼具成熟和未来主义色彩。业主表现出难得的开明态度,决定将本项目降落在审美相对保守的环境里,成为社区里一个跳脱的、具有雕塑感且不落俗套的组成部分。业主夫妇在特拉维夫相识,双方都对由逃离纳粹掌控的包豪斯建筑师所设计的白城抱有持久的热爱。
该设计以喷薄而出的雕塑感为这座总面积600平方米的独立住宅营造出奢华的氛围。项目巧妙地保留了基地内的所有树木,充分利用原有植物所形成的"丛林"来保护业主隐私,与流行于开普敦大西洋沿岸一带暴发户般的焦土政策完全划清界线。
该住宅在社区里一枝独秀,基于700平方米的街角地块将房屋两边的街道用作围挡,创造出一座可以同时眺望海景和北向风光的私家花园。住宅立面得体地反映出业主的性格:呈现给公众的部分坚实而保守,仅私人可见的部分则安装了巨大的推拉式玻璃窗,显得灵活而外向。
大型环绕式烧烤阳台、游泳池和草坪为底部入口层增添了丰富的功能,从这层可以轻松到达起居、餐饮和厨房区域。踏着具有丛林特色的夸张楼梯迈向上层,一座连通全部四个卧室的宏伟观景台使这个成长中的家庭得以随时共享开普敦的大西洋海湾风光。
屋顶菜园(通过室外螺旋楼梯进入)是业主夫妇的私人空间,利用钥匙和锁就可以把孩子们隔离在危险范围之外。即使没有镀金水龙头或者贴满动物毛皮的楼梯扶手,这栋精巧的房子依然显得夸张而大胆(同时低调又务实)——毕竟更多的乐趣来自于充满雕塑感的结构形式,采光和空间设计。
设计图纸
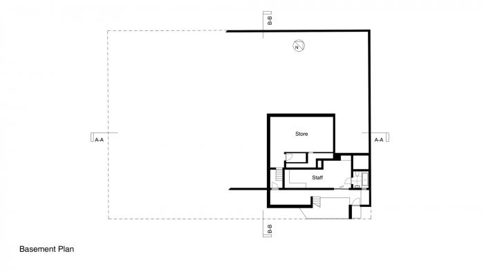
△ 地下室平面图
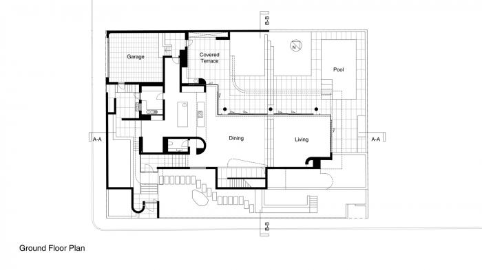
△ 一层平面图
△ 二层平面图
△ 屋顶平面图
△ 东南立面图
△ 西南立面图
△ 东北立面图
△ 西北立面图
△ 剖面图AA
△ 剖面图BB
项目信息
项目类型:独立住宅,别墅室内
项目地点:开普敦,南非
建筑事务所:Robert Silke & Partners
面积:600m²
项目年份:2020
摄影师:Adam Letch
厂家:AutoDesk,Blanco,Bticino Chile,Geberit,HEWI,Meir,Mentis,OGGIE,Rauch,Samsung,Smeg,Trimble Navigation,Villeroy & Boch,Zennio
主创建筑师:Robert Silke & Partners
设计团队:Alexander Geh, Robert McGiven, Nuhaa Soeker, Robert Silke
结构工程:S&T Consulting Engineers
Mep工程:SolutionStation
施工方:Blackland Construction
景观:Robert Silke & Partners
估算师:Khats & Sparks
城镇规划:D&S Planning Studio
古迹保护:Ashley Lillie
装饰:Lankham House Interiors

BIM建筑网


























