△ 大禹纪念馆泛光灯图
大禹,中国第一王朝——夏朝的开创者,远古洪荒时期呕心沥血一十三年率众抗洪的治水领袖。他为世代华夏子孙开创了地平天成、天地人和的和谐境界,奠定了以民为本、以人为先的民本精神。
△ 大禹纪念馆泛光灯图
大禹纪念馆,位于大禹陵景区,建筑面积地上4800平方米,地下22000平方米,是这位开国圣君的纪念重地;是大禹精神在当代传续的空间载体。我们试图从更加广阔的场所中,通过外物的参照寻求建筑内在的线索,轴线的意义,既串联起了历史与文脉,也限定了建筑的朝向与布局。
△ 项目总平面图
△ 手绘总图
而回归到建筑的形式追求,无论是现代建筑发展以来的“功能决定形式”还是突破性的“形式引起功能”的理论,形式都是建筑精神表达最重要的载体。我们也曾尝试通过大禹的经历和元素,比如九鼎或是治水器皿,具象化的与建筑形式发生关联。 但最终呈现给大家的,强调的是更加内敛与抽象的精神隐喻,从外部到内部,用更加建筑化,更高级的语汇演绎大禹从人到神的精神升华。
△ 入口
△ 创作手绘图
建筑之器,承载民族集体记忆与精神信仰,当其无时,计白当黑。大小院落,揽山水盛景,载四季时光;冥想空间,摈弃具象的物质,以共享平等的精神空间,激扬人文情怀,唤起“天、地、人”和谐共存的民族之魂。
△ 水景
我们优先尊重自然的秩序,在场地原有的基础上劈山理水,并通过地景的设计,重塑建筑与自然的关系,寻求建筑体量与自然风貌的和谐平衡。
△ 整体鸟瞰图
△ 创作手绘图
建筑同样遵循场地内人文历史的脉络秩序,通过方形这一完整形制呼应圆形的祭坛与九龙坛,并统领群体关系,体现了大禹的王者气质。
△ 单体透视图
△ 创作手绘图
中心冥想厅,抛弃了具体和象形的膜拜,保留了缅怀和共鸣的感受;
共生院落场所,淡化了致敬和仰望的传统,赋予了王权和民权的融合;
共享空间体验,跨越了阶级和政治的壁垒,反映了平等和民本的精神;
我们认为这是对大禹精神比较恰当的诠释。
△ 单体鸟瞰
△ 创作手绘图
建筑设计的院落空间不仅承载着华夏民族对始祖大禹的精神祭奠,更是我们籍以感受悟道、体悟妙蕴、吸纳华夏精神体系的场所。
△ 入口
△ 创作手绘图
△ 创作手绘图
场地设计的院落空间不仅彰显着中华传统对轴线秩序的形制遵循,更是我们籍以组织空间,汇聚节点,对景自然山水体系的“院儿”。
△ 园路
与周围礼教场所融聚,与周边自然环境融聚;通过跨越时空的光影演绎,获得平等和谐的共生智慧,恰恰是大禹纪念馆的设计灵魂。
△ 室内
△ 中庭
△ 大禹纪念馆泛光灯图
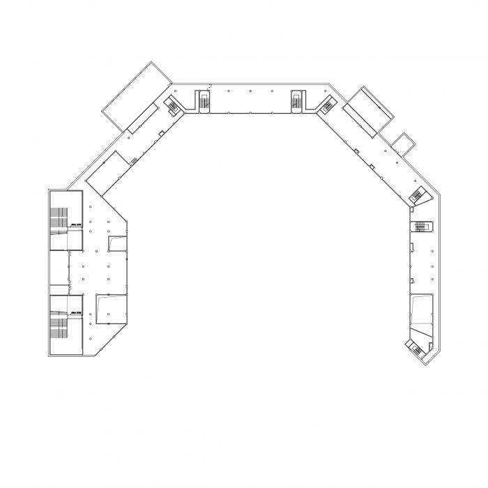
平面图纸
△ 负一层
△ 一层
△ 夹层
△ 二层
△ 屋顶层
项目信息
项目名称:大禹纪念馆
设计公司:浙江大学建筑设计研究院有限公司(http://www.zuadr.com/)、华南理工大学建筑设计研究院有限公司(http://www.scutad.com.cn/)
设计指导:何镜堂、吴中平
建筑设计:董丹申、胡慧峰、蒋兰兰、黄巍巍、黄迪奇、韩立帆、张宇俊
结构设计:肖志斌、张杰、丁子文、沈泽平、何立宏、陈旭、吕君锋
暖通设计:杨毅、王亚林、潘大红、丁德
电气设计:李平、吴旭辉、俞良
水设计:易家松、张振宇
弱电设计:林华、叶敏捷、杨国忠、李向群
室内设计:张毅、赵怡洁、许晓佳、余志斌、罗凯铭、牛栋
景观设计:吴维凌、王洁涛、徐聪花、吴敌、姚海燕、何颖、顾静娴、徐非同、刘晴、章驰、林腾、黄静宜
幕墙设计:白启安、余平、曹东秋、张默然、胡粮泽
照明设计:王小冬、宋洛颖、梁潇月
基坑设计:徐铨彪、曾凯、陈刚、廖克武、陈圣贤
经济:褚铅波、孙文通
地址:中国绍兴
预计完工时间:2020年10月
建筑总面积:27913.01m2
业主:绍兴会稽山度假区大禹开发投资有限公司

BIM建筑网



























