0914旗舰店是韩国高端皮革手袋公司Simone的多功能商业空间。Simone是一家奢侈手袋的原制造公司,他们已经为Burberry、MichaelKors和Coach等高端品牌服务了30年。Simone以享誉世界的制造质量为基础,推出了他们的第一个奢侈品牌“0914”,并在首尔高端时尚商业区的中心建立了0914旗舰店。该旗舰店位于DosanPark街区附近,那里挤满了国际豪华时装店和高级餐厅。
该旗舰店是一家集商店、咖啡馆、餐厅和艺术画廊为一体的综合空间。在这座建筑里,0914希望能够介绍其在悠久历史中积累的皮革工艺,并颂扬品牌价值,体现手袋的精髓品质。
作为设计竞赛的获胜者,TRU建筑事务所+Eho曾为店面概念和建筑设计工作。对于一个拥有悠久制造历史的奢侈品牌,我们提出了“村庄”这一概念,其中容纳了品牌新产品、工匠和艺术家。该村庄创造了协同创作的平台,老皮革工匠正在与新兴设计师们一起工作。“合作村”的概念反映了Simone的商业文化,Simone在手袋设计方面一直与年轻艺术家合作。
△ 草图
△ 轴测图
△ 模型
△ 剖面模型
建筑的形状是根据村庄的形象形成的,整体就像小堆房子堆砌在盒子里。纯白盒子和砖房在形式、色彩和纹理上形成对比,增强了雕刻的效果。雕刻的村庄在室内空间里完全颠倒过来,形成了供商店和艺术家工作室使用的小型山墙房屋。
建筑的地下一层引入了多层广场的概念,让工匠和设计师可以与顾客和游客呆在一起。通往广场的砖砌楼梯计划用于时装表演。建筑的屋顶像是通往0914村的旅程的顶峰,被设计成了一座位于隐蔽花园水上的别墅。两层的屋顶区域充满了浅水和银色的草。0914旗舰店希望成为一个中心空间,将积累的制造能力与年轻的设计能量相结合。
设计图纸
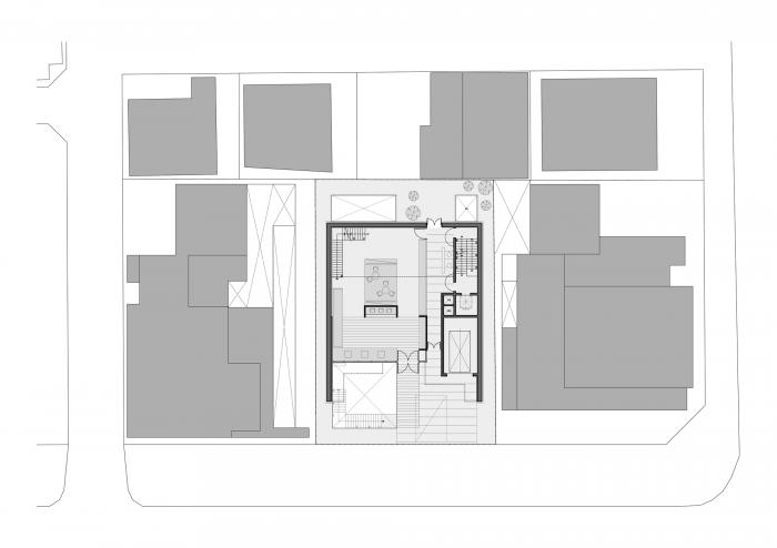
△ 总平面图
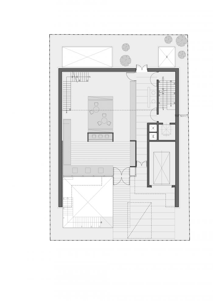
△ 一层平面图
△ 二层平面图
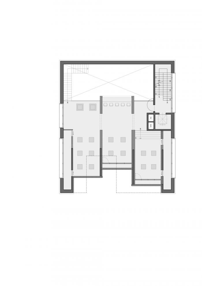
△ 三层平面图
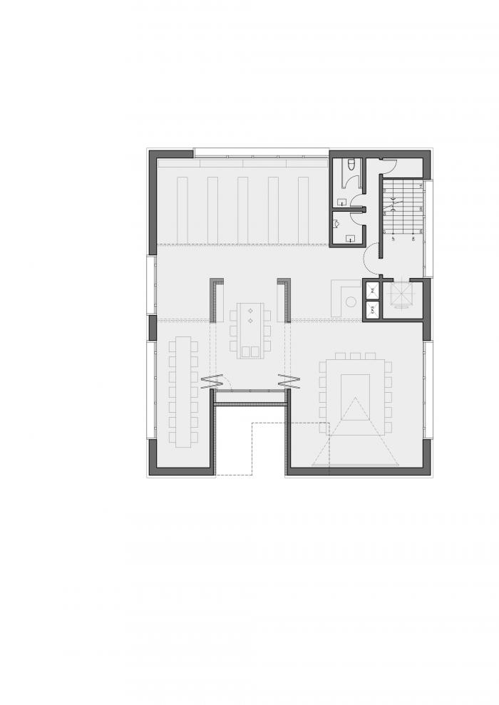
△ 四层平面图
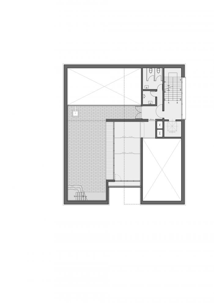
△ 地下一层平面图
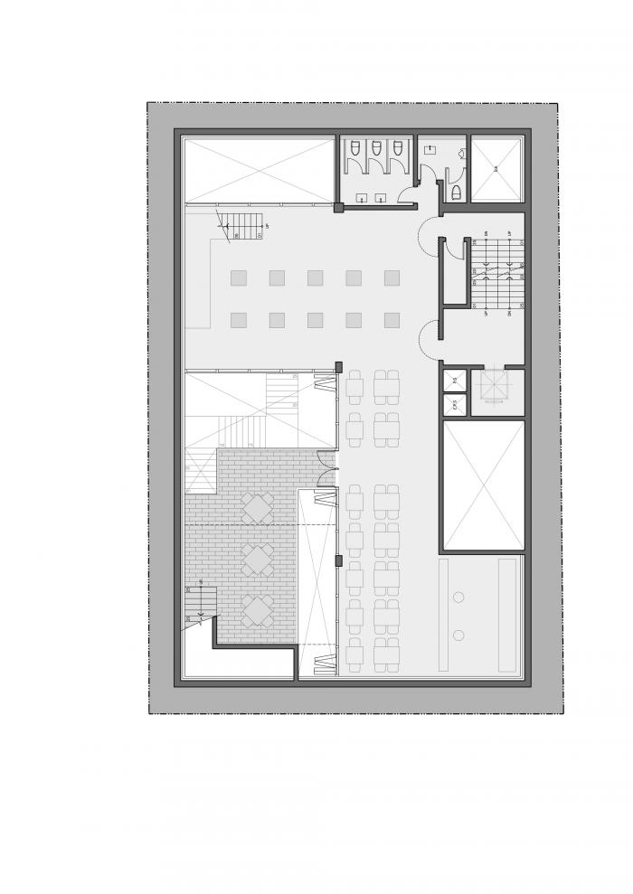
△ 地下二层平面图
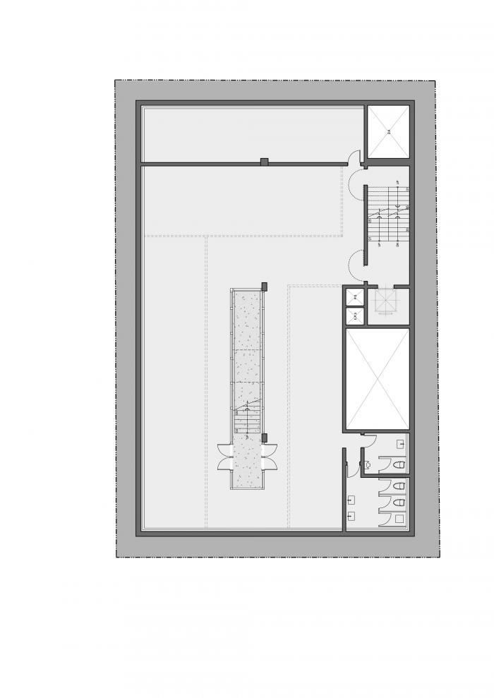
△ 地下三层平面图
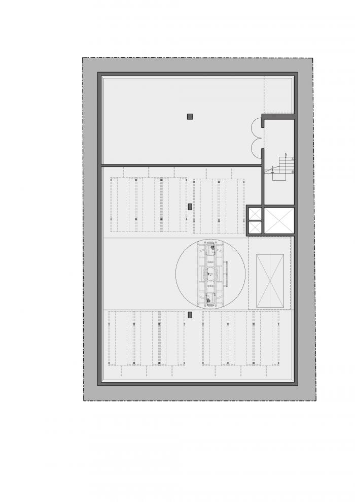
△ 地下四层平面图
△ 屋顶平面图
△ 草图
△ 草图
项目信息
项目类型:商店
项目地点:江南区,韩国
建筑师:TRU Architects
设计者:Eho
面积:2377m²
项目年份:2017
摄影师:Youngchae Park
厂家:AutoDesk,Ilshinstone,Trimble Navigation,Wienerberger
主持建筑师:TRU Architects, Eho
设计团队:Sungik Cho, Eho, Jeil Choi, Junho Park, Kyungok Yoon, Jaeyoung Joo, Kiwon Oh, Jungyoon Kim
室内设计:Archigroup MA
施工草图:UAD Architects Group Company Limited
结构工程:Opus pearl
机械工程:Kunil Engineering
电气工程:Kunil Engineering
施工:Kiro Construction
客户:Simone Limited

BIM建筑网


































