改革开放后出生的人开始逐步成为社会的中坚力量。他们享受发展红利,生活品质不断提高,有的开始成家立业,为自己的理想生活而努力。
2019年,清筑建筑受邀为一对新婚夫妻的婚房进行更新改造,房子位于北京后海附近的胡同里,是典型大杂院中的一个开间,建筑面积仅19平方米,基于现状条件,清筑建筑希望在进行设计改造的同时,能探索胡同里的年轻人如何去改善自己的生活环境。
△ 改造前庭院
△ 改造前室内
这是一次时间与空间的探索,新婚代表着家庭成员随着时间会不断增加,通过空间留白塑造未来可能性,在技术上,多点预留功能接口,以减少再改造。
△ 改造后院墙
家庭新添成员将会对居住环境有较高的要求,在材料使用上,尽量减少现场油漆作业,利用清筑建筑积累的产业化研究经验,楼梯等需要喷涂的定制部件均在工厂生产。结合开窗及新风系统,保障室内通风及空气洁净。
△ 门厅鞋柜
△ 门厅鞋柜
△ 厨房
△ 从厨房看卫生间隔断
△ 卫生间门细部
△ 浴室柜
△ 浴室柜细部
△ 卫生间
△ 淋浴间
传统营造强调材料的再利用,被拆除后的墙体材料保留并利用在新砌墙体上,改造房屋未跳出原有胡同风貌。
为更好地展现实际居住状态,在这对新婚夫妻入住8个月后,清筑建筑对房屋进行了拍摄。
△ 走道
△ 楼梯储物柜
△ 楼梯储物柜
△ 楼梯细部
△ 客厅
△ 配电箱装饰
△ 挑空
△ 梁架结构
△ 二层卧室
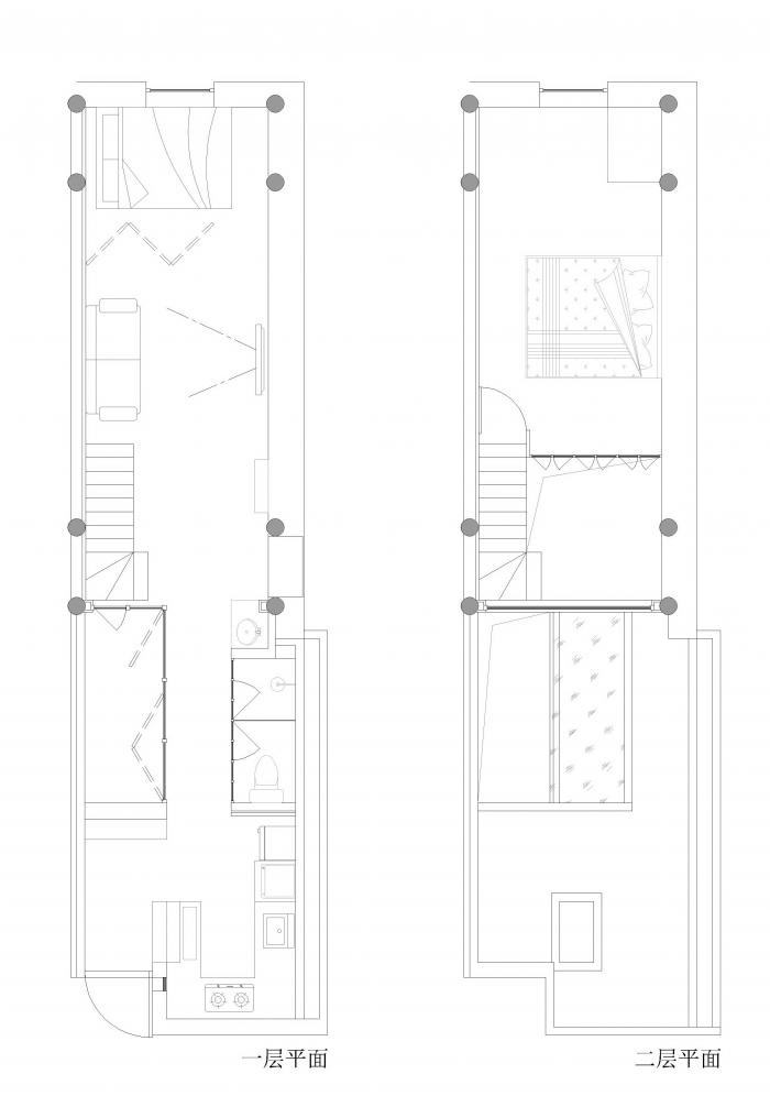
△ 平面图
项目信息
项目名称:后海婚房
项目地址:北京后海
项目类型:居住
项目面积:19㎡
设计时间:2019.03-05
完成时间:2020.01
建筑师:刘军、段常续
建筑设计:北京清筑建筑设计有限公司
材料:混凝土、玻璃、瓷砖
摄影:刘军
微信公众号:xuebim
关注建筑行业BIM发展、研究建筑新技术,汇集建筑前沿信息!
← 微信扫一扫,关注我们+

BIM建筑网






























