姜庄位于中国河南省与山东省交界的黄河岸边,有400多年的建村历史。村中99%的村民姓“姜”,并完好保存了一部记录了自周代姜子牙至今96代姜氏宗族的家谱。因黄河经常泛滥,自上世纪六十年代开始,村民陆续搬迁至黄河大堤以西的新村,老村因此被废弃。2017年,中国扶贫基金会“百美村宿”公益项目在当地政府的支持下将姜庄作为乡村旅游扶贫的重要试点进行整体改造。
△ 项目区位
该项目由十余个废弃民居改造的院落酒店、三座公共文化建筑和两个林中树屋组成的小型乡村酒店群落。改造还包括整个村庄的基础设施改造、村落整体风貌保护及有机更新。改造规划强调村落与黄河、大堤、树林和农田的亲密关系,尊重乡村的原始结构、肌理和原风景。
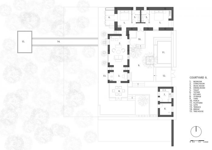
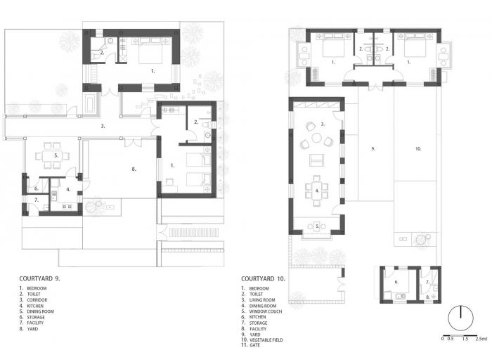
改造建筑延续了当地民居L形和U形的院落格局,保持了生土、砖、青石的外墙材料特色,交错的砖檐口、黄泥屋面以及微微起拱的木屋架形式,并对废弃民居进行结构加固,加做内保温,增加卫生间,提高室内空间高度以利于自然通风和采光,也令室内外环境融为一体。
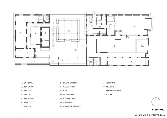
村民文化中心改造自村中的羊圈和猪圈,功能包括图书室、乡村酒吧、展示馆和餐厅等,形成三个串联在一起的公共院落。林中树屋微拱形的屋顶和民居相统一,是风景的收纳器,同时成为风景的一部分。
作为一个依靠慈善捐赠资金支持建设的“乡村扶贫”项目,姜庄以村民自愿入股“合作社”的新型方式,使村民获得经营的“分红”,成为主要受益人,从而脱贫。工程施工均由当地村民完成,再现和延续了传统的乡土建造方式和地方文化习俗,强化了乡村社区的认同感和凝聚力。建筑师希望通过对姜庄进行整体改造,建立一种新型的乡村社会生态环境,改善村民的公共生活品质,提升村民的自我价值意识和社会公共意识,从而实现传统乡村向现代乡村的有机转变。
姜庄改造也让建筑师学到了深刻的一课:唯有回到“原点”,重新建立人与土地的亲密情感和人与自然的共生关系,通过“在地设计”与“在地建造”,让建筑自然地从土地中“生长”出来,方可实现对“故乡”的心灵回归。
设计图纸
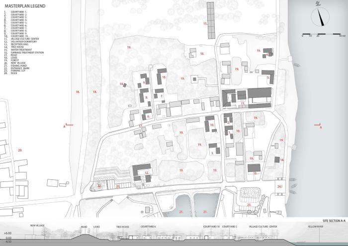
△ 总平面图
△ 庭院1平面图
△ 庭院1立面图
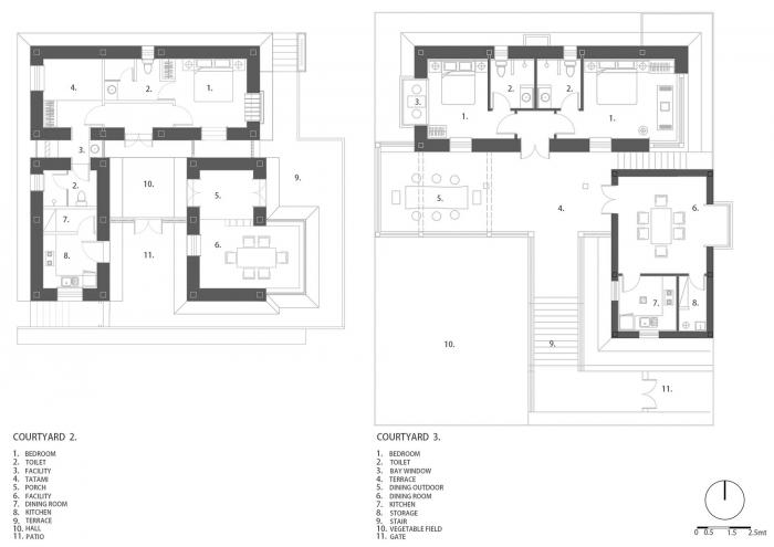
△ 庭院2、3平面图
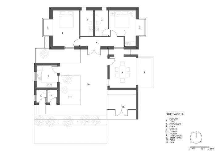
△ 庭院4平面图
△ 庭院5平面图
△ 庭院5立面图
△ 庭院5立面图
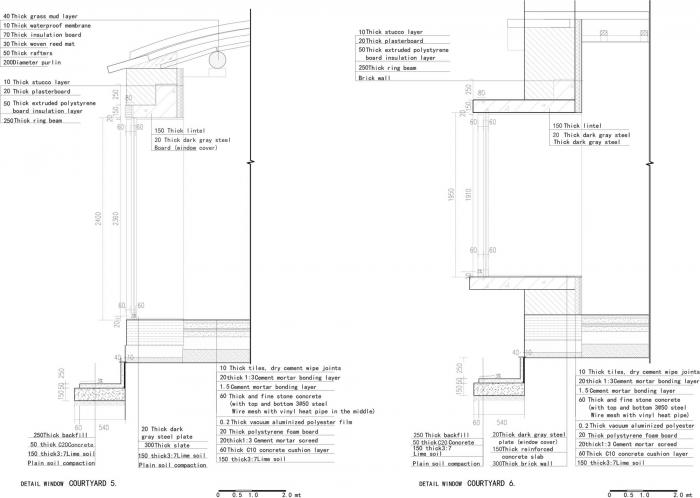
△ 庭院5、6窗户节点详图
△ 庭院6、7平面图
△ 庭院8平面图
△ 庭院8轴测图
△ 庭院8立面图
△ 庭院8立面图
△ 树屋立面图
△ 树屋轴测图
△ 庭院9、10平面图
△ 志愿者宿舍平面图
△ 志愿者宿舍立面图
△ 志愿者宿舍立面图
△ 志愿者宿舍剖面图
△ 文化中心平面图
△ 文化中心轴测图
△ 文化中心立面图
△ 文化中心剖面图
项目信息
项目类型:独立住宅,更新项目
项目地点:濮阳县,中国
建筑师:袁野建筑工作室
面积:2065m²
项目年份:2019
主创建筑师:袁野
结构及景观设计:袁野建筑工作室
委托方:中国扶贫基金会

BIM建筑网











































