FCC建筑事务所对波尔图的一所原有独户住宅进行了更新和扩建,为符合项目的预期计划,为其增加了裸露的混凝土体量。以保护和加强原有建筑及周边花园为主要目标,这家葡萄牙的建筑工作室提出一种方案,即促进新旧元素之间的对话。最终的结果是当代与传统建筑元素的混合,这在“GC之家”的外部与内部空间皆有体现。
FCC建筑事务所拆除了原有建筑位于远处东北侧的一部分建筑体量,而保留了位于波尔图的帕德雷·路易斯·卡拉布尔大街一侧的体量。“我们寻求一种保护和强化原建筑身份特征的解决方案,促进新旧元素之间的对话,并承认二者之间的差异。”该事务所解释道。由此产生的住宅在当代与传统之间的平衡,适应了周围的环境,并提高了场所的空间质量。
房屋的新增部分是一个裸露混凝土打造的悬挑体量,其通过玻璃板连接了室内空间与周围的花园,原建筑适应了具有特殊要求的当代建筑,二者通过玻璃廊桥连接。“其目的是在不破坏的情况下进行更新,在不借助模仿的情况下尊重原建筑,并促进丰富与同时代的干预相符的特征”,FCC建筑事务所补充到。
考虑到帕德雷·路易斯·卡拉布尔大街目前的界定很差,建筑师决定加强该项目的正面。位于建筑末端的原建筑的附属体量被保留下来,其沿着大街向原建筑延伸。扩建完成了这条街的城市正面,同时增强了后院,后院包括一个带有游泳池的花园以及一处户外休闲空间。
设计图纸
△ 总平面图
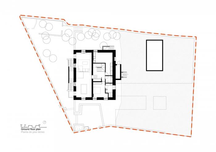
△一层平面图
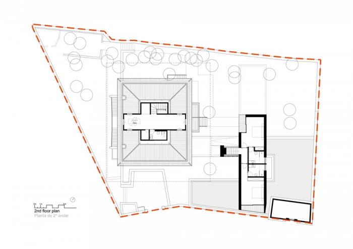
△二层平面图
△三层平面图
△屋顶平面图
△剖面图A
△剖面图B
△剖面图C
△立面图A
△立面图B
△立面图C
△立面图D
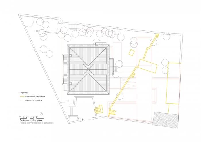
△更新前后平面图
项目信息
项目名称:GC之家
建筑事务所:FCC arquitectura
主创建筑师:fernando coelho, ana loureiro
设计团队:fernando coelho, ana loureiro, sérgio silva, luís vieira, diana teixeira
总建筑面积:828,90 m²
着床面积:431,80 m²
场地面积:963,90 m²
项目地点:波尔图,葡萄牙
业主:gonçalo vale and clara cunha
结构工程师:engiwords – consultores de engenharia
施工方:NVE – engenharia e construção

BIM建筑网





































