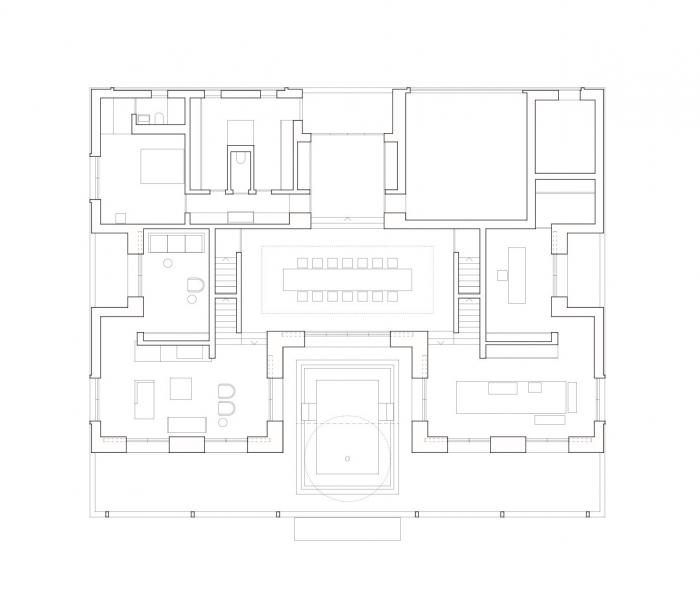
一大片草地形成了葡萄园上部的边界,而这座独立的小屋就落地其中。入口,门厅和庭院组成了一连有序的空间。葡萄园和湖面的方向奠定了建筑的主轴,同时也是该建筑对称布局的起点处。新屋子占地24×20米,体块的每面都各去除了一部分与周围四边相呼应。
体块最大的那面缺口朝着葡萄园和苏黎世湖。一座三米深的游廊延至建筑的中心,营造出一间半开放式的庭院。院内栽着一棵树,由下沉式的户外休息区围着框了起来。庭院空间的规划使会客室也得以对称布置,人们一迈入便能观赏房子的整体进深。
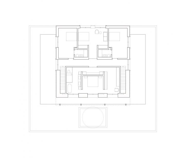
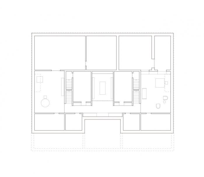
高层高的大厅是房子的核心,也是对于全家人来说最重要的生活区。从这里,两条环形动线分别引向了二楼和负一层,能够通往大部分主要房间的同时也可以让人在这座房子里无限循环漫步。
墙面上抹着朴实的灰泥,以几乎自然地方式呈现了物质本身,由精细的玻纤钢筋水泥土构件组成的框架连接。建筑表面的不同节段安装了统一的窗户模组;两段式的滑动窗采用了最薄的玻璃轮廓装配设计,这样一来在屋子有顶的部分,玻璃窗便能完全藏入墙的空腔中。
设计图纸
△ 平面图
△ 平面图
△ 平面图
△ 平面图
△ 平面图
△ 剖面图
△ 剖面图
△ 剖面图
项目信息
项目类型:独立住宅
项目地点:ZÜRICH,瑞士
建筑师:Think Architecture
面积:3000m²
项目年份:2019
摄影师:Simone Bossi
厂家:Antonini AG,Atelier Zurich,BURGER,Elementwerk Istighofen,Enea,Gaggenau,Graphisoft,Kolly Schweizer,PSLab,Sky-Frame,Vola,Wood Rangers
微信公众号:xuebim
关注建筑行业BIM发展、研究建筑新技术,汇集建筑前沿信息!
← 微信扫一扫,关注我们+

BIM建筑网


































