最近,生物技术公司Genmab的新办公楼在乌得勒支科技园建成。 这一公司在哥本哈根与新泽西州普林斯顿都设有分支机构,新楼内部与内饰都是一体化设计。新建筑的设计基于开放的工作文化和与外界的密切互动,具有很高的可持续性与充足的采光,为员工与访客提供了舒适、健康、鼓舞人心的工作环境。
Genmab是一家国际化的生物技术公司,致力于开发治疗癌症的抗体。在过去的几年中,公司有了长足的发展,因此需要新的办公场所。它的斯堪的纳维亚血统使得设计成为关注点。此外,新建筑还抓住机会使公司具有更大的知名度,增加了员工之间的互动,并与外部伙伴更有效地协作。由cepezed和cepezedinterior负责设计,该建筑还意图成为吸引顶尖研究人员的名片。
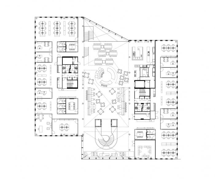
全新的Genmab是一栋引人注目、风格简约、精致的建筑,位于乌得勒支(Utrecht)科技园的主干道上。项目包括办公室、实验室与广大的附属空间,例如会议中心、礼堂、科技咖啡馆与餐厅。该建筑物为开放式结构,具有大空间与极佳视野。在地面上,它由两个彼此对正的五层建筑组成,中间有中庭。地下有一个占据整个空间的停车库。
建筑非常紧凑,两个体量的对齐有助于与场地契合。建筑中有会议中心、礼堂与咖啡厅,以及健身房、自行车停车场、储藏区与废物室,它们主要位于一楼。中庭平台位于二楼,具有一些广场的特征。周围还有其他辅助功能,如咖啡吧与带烹饪功能的开放式厨房。在办公室区域,会议区位于中庭沿线,而固定工作区则主要靠近立面。最上面三层楼容纳办公室与实验室,它们的总高度较高,因此这里的活动可以更为灵活:办公室可以变成实验室,反之亦然。
立面是垂直铰接的,此处玻璃组件的框架隐藏在封闭的铝制外饰后面。中庭的立面完全透明,因此从外部可以看到宽敞的开放空间,为建筑物的外观呈现做出重大贡献。中庭的特殊亮点是直径超过八米的大岛,这些岛呈阶梯状放置,如同在空间中自由漂浮。岛屿上有可供会议、讨论与灵活工作的场所。其中一间用作董事会会议室,配有热弯曲玻璃墙,带发光公司徽标的大桌以及包含所有环境控制设施与最现代化展示设备的定制化家具。
内饰轻巧、整洁并且时尚,使用大量木材与其他天然材料。通过使地板面融合进透明的办公空间,走廊在视觉上被拓宽。在可持续性方面,新Genmab办公楼获得了BREEAM优秀证书。
设计图纸
△ 平面图
△ 平面图
△ 剖面图
项目信息
项目类型:办公设施,可持续性
项目地点:乌特勒支,尼德兰
建筑师:Cepezed
面积:11178m²
项目年份:2018
厂家:AutoDesk,EeStairs,Espero,Finesse,Inteco,Interior Glassolutions,MAARS,VELUX Commercial,Velux
主创建筑师:Cepezed
室内设计:Cepezedinterieur
客户:Genmab, Utrecht
施工方:Dura Vermeer Vastgoed & Dura Vermeer Bouw midden west
结构顾问:Pieters Bouwtechniek, Haarlem
机电顾问:dwa, Ede
可持续顾问:dwa, Ede & dwa, Zoetermeer
防火顾问:Peutz, Zoetermeer
主施工方:Dura Vermeer Bouw midden west, Cruquius
钢铁施工方:Bentstaal, IJsselstein
电气施工方:Van den Pol, Amersfoort
机电施工方:Klimaatservice, Hardinxveld-Giessendam
立面施工方:De Groot & Visser, Gorinchem
绘图:architectenbureau cepezed

BIM建筑网






















