一栋建于上世纪的维多利亚风格建筑见证了上海巨鹿路历史的变迁,时光给予它年岁的增长,也带去不同于周围建筑的沧桑感。而在历经140多年历史的丹麦家具品牌Fritz Hansen的加持下,百年老宅得以延续生命,并且与人们日常生活的“饮食和休闲娱乐”相结合,用“烟火气”焕发空间活力。
延续百年风格内涵
△ 爆炸图
饮食、休闲娱乐与家具品牌的结合可谓是一次具有前瞻性的突破尝试,这在上海是独一无二的存在。项目与Fritz Hansen形成了不同时空不同领域下的精神互通,而如何平衡Fritz Hansen品牌风格与空间风格是设计师需要考量的。
Fritz Hansen汇集了全世界卓越的设计师们,于漫长的发展中沉淀出简洁、艺术与高品质的产品。红山设计(HONG Designworks)将这种经典风格应用于二三层空间设计中,空间整体呈现简洁与现代艺术,同时植入Fritz Hansen家具营造不同的场景氛围,由此让每一处细节都精雕细琢,每个空间风格都清晰可辨。
以风格各异的Fritz Hansen家具匹配不同包厢的风格,简洁艺术的场景氛围让进入者享受高品质的美食之旅。
老宅中经典的建筑结构成为可见性的价值参考。设计师选择还原之前已被破坏的木制结构,重现老宅特色,同时填补空间中岁月遗留下来的痕迹,而在不同的行径路线中将木制结构向外突显。
室内屋顶在解决木制结构还原的同时,通过设计保证了节能保温的功能使用和外部美观。室内的“灰空间”则用来过渡不同功能区域,增加空间层次感,并且完美地解决了室内机电外露的问题。
老宅保留下来的财富——铁艺雕饰,经过修缮还原成为楼梯防护,与灯光显现梦幻光影,让人忘却烦忧。
定义生活新方式
△ 分区示意图
打造沉浸式一体化购物新体验,设计师希望顾客能在真实的场景下体验家具,并且通过不同的场景营造为顾客提供多种选择,给予差异化感受。
△ 雪茄吧
细节中探见维多利亚风格元素。硬木地板铺设地面,叠加风格各异的大地毯,烘托不同区域氛围。装饰美与自然美完美融合,随处可见绿植、可供售卖的艺术品和艺术陈设。
邀请三两好友于茶室可以共同品茶,放松身心;在雪茄吧和俱乐部可以体验西式休闲娱乐的魅力。
△ 茶室
这个空间让进入的人们重温百年老宅的历史岁月,感受与丹麦Fritz Hansen百年品牌的相辅相成,享受一切的美好。
Fritz Hansen不仅仅是一个品牌,更代表着一种以深入人心的生活习惯来定义的生活方式。而在这个老宅中饮食、休闲娱乐与家具带来的多重体验也将重新定义新的生活方式,让热爱生活,追求生活品质和喜欢体验新事物的人们找到归处。
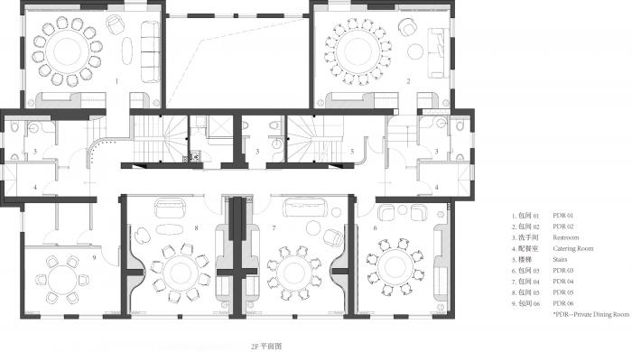
△ 2F平面图
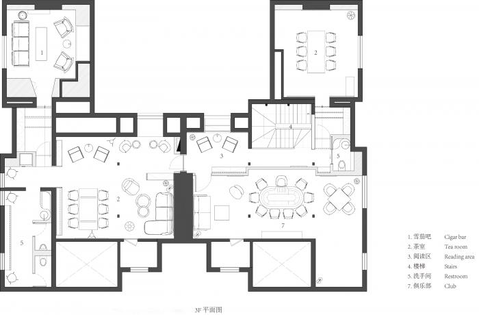
△ 3F平面图
项目信息
项目名称:上海复合体验馆
项目地点:上海市巨鹿路
设计公司:红山设计/ HONG Designworks
主案设计:党明 / Dang Ming
参与设计:解旭、奥秦歌、王青、闫振、王海川、胡一帆、时王倩
软装设计:李丹笛 / Li Dandi
实施团队:深装总建设集团股份有限公司
完成时间:2019年5月
项目面积:1270平方米
摄影团队:谭啸 / 十摄影工作室
视频团队:花生工作室
音乐名称:Far-Daniel Rosenfeld

BIM建筑网































