△ 门洞拼贴图
【绘本 】
是童话世界的入口,也是孩子人生的入口。
△视频
△标志演变
三月绘本,就是孩子与童话世界初次接触的地方。壹所提出“你好,童话”的概念。
△ 图形标志
△ 文字标志
打造一个童话世界的入口,一大一小的门洞,形同大人和孩子的关系,三月绘本希望通过亲子阅读,让绘本拉近与孩子们的关系。
△入口
三月绘本阅读空间,致力于幼儿阅读和英语相结合的双启蒙,提倡用认真的态度、愉悦的心情和有趣的方式去阅读,为孩子提供英文绘本阅读的最佳路径,将阅读行为变成习惯,并自然习得第二语言。
△ 公共阅读区拼贴图
在阅读空间中,5米的层高使得可以营造出一个高挑宽敞空间感,用大小不一的拱形对墙体做减法,形成奇特有趣的外观令路过的人不自觉就触发了进入室内一探究竟的好奇心,并在内部世界中探索自己;阅读为孩子提供了一种了解世界的方式,它可以是不被现实拘束的。
△ 公共阅读区
△ 分析图
我们应该使用哪种方法进行干预以及空间的考虑?
“形式跟随情感而不是功能”。
△ 公共阅读区
阅读为孩子提供了一种了解世界的方式,它可以是不被现实拘束的。
△阅读区
柏拉图认为,除了我们所感知的现实和客观世界之外,还有一个观念世界。孩子们的心态本身就是一个向往世界的冒险家,单纯,混乱的,精神的,充满哲学性的。
△ 趣味动图
△ 教室拼贴图
用堆积木的方式,将过道的柜体和教室墙体相互交错,与阅读区弧形墙面分离形成通往仓库的通道,形成独特又新颖的视觉感,模糊了空间边界。
△一号教室
教室走廊的一侧,是室内最佳的光源地,阳光洒下,光影漫长,是充满童趣的花田。
△ 趣味动图
△ 二号、三号教室走廊
△ 标识特写
△ 二号教室、三号教室圆形窗户特写
△趣味动图
为了使项目固有的L形布局空间效率最大化,采用了几种方法来丰富各通道,如对墙体运用简单几何体掏洞,进一步发展不同尺度区域,角落内的空间都加以利用,鼓励人们通过有趣的元素进行探索。
△通往洗手间和仓库的走廊
通过斜长的走道,隐藏在二三号教室后的正是设计师为小朋友量身定做的迷你卫生间和储藏室,其大小洞口与主阅读空间的大小洞口相呼应,一高一低,无处不在强调着小孩与大人之间的亲密关系。
△空间总览
重新考虑游戏与教育之间的关系,鼓励下一代富有创造力的思想家。
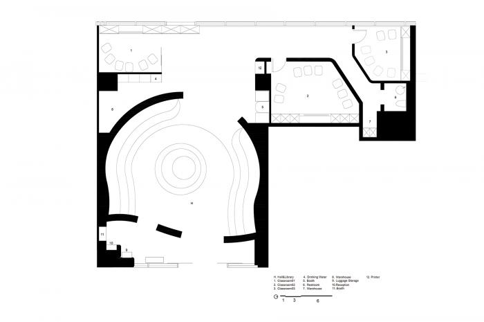
△ 平面图
项目信息
设计单位:壹所设计工作室
项目地点:中国 ,深圳
项目类别:教育服务
设计师:范君健、周炫焯
设计团队:邬乐晴、郝星云
项目面积:150平方米
项目时间:2020年
摄影:张超

BIM建筑网




























