BIM问答|CAD打印的时候,怎么调整AutoCAD图纸绘图方向?
我们把做好的图纸打开,打印的时候选择“窗口”
将一切设置好后,就点击“预览打印”,看下预览效果
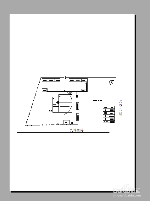
发现图纸在中间横向布置。这是它自己默认的打印方式
关闭预览,回到刚刚的打印界面,选择如图所示,右下方的拓展小符号
5将右边界面中的“图形方向”选择“横向”
我们再次点击“打印预览”预览下图纸,图纸A4变成了横向
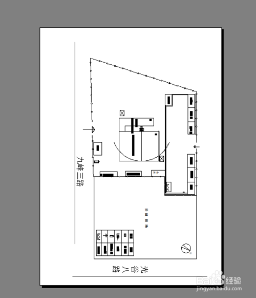
当然了,我们也可以利用cad自身的旋转功能把图纸旋转成竖向
旋转好后,再次选择打印,打印预览时,直接就可以看到已经布满图纸了,A4纸是竖向的,但是也布满图纸了
微信公众号:xuebim
关注建筑行业BIM发展、研究建筑新技术,汇集建筑前沿信息!
← 微信扫一扫,关注我们+

BIM建筑网













