作者:天津二十冶建设有限公司解莎莎,金鹏飞,王立超
引言
随着国家工程信息化的快速发展,建筑企业信息化建设不断提高,促进了建筑技术的进步与管理水平的日益提升,国家也将在“十二五”期间,基本实现建筑企业信息系统的普及与应用,加快建筑信息模型技术(BIM技术)、基于网络的协同等新技术在工程中的应用,推动信息化建设。对于我国的基础设施行业来说,尽管增长迅速,但随着工程不断从高速建设期进入运营维护期,行业和业主越来越关注基础设施资产的运营与维护,三维协同设计、信息移动化和云计算等技术已经成为了这些问题的解决方案。
随着工程设计行业被市场倒逼,转型到三维协同设计已经无法满足未来的需求,并要在建造过程中融入更多的数据,为后期的运营维护提供数据支持与保障。作为施工企业,接递来自设计阶段的设计数据,通过在建造阶段加以三维化的转化与优化,将数据最终完整、直观的传递到业主运维阶段;并在这个过程中,数据信息为施工企业所运用,大大降低了施工企业的建造成本,对现场施工起到了指导性的价值与意义。基于对BIM技术的推广与应用,本文以辽宁某600m2烧结机工程为例,在该项目中积极探索基于ProjectWise平台在三维建模工作流程与施工管理上的应用。
1 工程概况
1.1项目背景
众所周知,我国是钢铁大国,从下表数据可以看出中国在世界钢铁产量的比重越来越大,已连续数年位居世界第一。本项目意在建设冶炼铁矿的新工艺,该项目的建立对中国钢铁行业、乃至世界钢铁行业的影响至关重要。该烧结厂采用废气净化新技术,烟尘排放浓度低于30mg/m3;可除去废气中的有害成分;严格封闭的工艺设施,循环利用废气以降低烧结能耗;热废气循环余热回收,实现了余热发电;余热回收利用技术,降低产品工序能耗。因此,无论从当下或长远来看,本项目的建造对整个社会的资源优化配置、烧结生产领域的技术创新以及社会的可持续性发展,意义重大。

表1 我国近10年钢产量占世界钢产量及比率
1.2 项目介绍
该工程位于辽宁省某市,为原料配套600m2烧结机,为全国最大烧结工程,建设规模为1台600m2烧结机,生产能力为1 430t/h,采用双侧风箱的新型结构。台车宽度为5.5m,机尾采用单棍破碎机,头尾链轮中心距123.35m。烧结运行速度为1.3~3.9m/min,总质量为3 195t,其中台车共173个,总质量达2 048t,其有效烧结面积为600m2。图1为600m2烧结工程三维模型。

图1 600m2烧结工程三维模型
2项目实施流程
项目针对建筑企业施工专业性强,流动性大,工作地点分散特点,专业设计上包括了建筑、结构、设备安装、电气、水暖、市政总图等6大专业。各专业依托ProjectWise协同平台实现了独立建模,区域总装、专业总装、工程总装、成果交付的完整工作流。
人员组织机构,按专业、人员进行分工统计,由公司总部技术中心统筹管理,下设工程项目经理、项目技术负责人,BIM项目经理,BIM技术总监;现场BIM技术应用人员以及现场施工人员;专业BIM组长,专业设计人员,专业协同管理员,如图2所示。

图2 项目人员组织机构
2.1配置工作空间以及模型划分
立项之初,根据项目的具体实际需求,由施工人员根据项目特点提出需求分析,由设计人员将这些需求“定制”到工作空间(Workspace)中,并将其件夹托管到ProjectWise协同平台上;具体包括AECOsim标准,Bentley Raceway and Cable Management标准,OpenPlant标准以及文档标准。通过编制并托管这些标准,统一管控该项目所有设计人员基于统一的设计要求与规范。

图3 项目PW协同平台架构
根据项目建设需求或工艺流程,进行分部、分项或检验批进行模型的划分;该工程根据工艺流程划分为烟囱、主抽风机室、主电除尘器、烧结主厂房、环冷机、机尾电除尘、混合室、布袋除尘器、配料室、成品筛分室、转运站、成品矿槽室、附属设施及其综合管网等区域。

图4 项目模型划分
2.3三维标准化
经过之前几次项目的经验总结,认识到统一的协调管理,标准化概念的重要性。统一的标准化可避免模型组装时兼容性的问题,提高三维设计进度和质量,从而提高工作效率。在ProjectWise协调平台建立项目文件夹和模型文件,统一配置企业级和项目级的标准化文件,设计人员的所有操作均在ProjectWise协调平台上,保证模型的适时更新。通过制定三维协同设计标准,对具有的建模工作进行企业级标准化操作控制。
2.4 ProjectWise协同平台
面对异地信息管理的挑战,通过网络技术采用集成服务器、缓存服务器与ProjectWise平台相结合的方式,将ProjectWise平台内所有数据快速有效在公司总部、设计部门、项目施工现场等管理者之间共享,保证了数据的实时性和传输速度。对于无法满足上述两种硬件要求的施工现场,项目采用ProjectWise平台的浏览器客户端,为施工人员提供了查看和下载项目文档的功能。远端施工人员可通过网页查看文件,实现了公司本部、设计部门、施工现场即时提取、采集、上传、发布相关工程信息的功能。

图5 PW协同平台网络分布
ProjectWise协同平台具备“一个统一,五个实现”的特点,即构建ProjectWise协同平台,实现了工作环境(Workspace)统一托管;“五个实现”:
1)实现了工程设计、校核、审批、交付、服务等全寿命周期内使用者权限动态划分。
2)实现文件夹创建、文件参考、检入及检出,保证文件受控、唯一性;
3)实现各级专业独立设计,多层次、多专业相互参考无缝对接的协同设计;
4)实现模型、工程图纸、报表及文本、视图、材质等多专业软件、多层次设计成果交付分类归档,查阅目录树管理;
5)实现业主、设计、监理、设备制作、施工等不同工程参与方一体化工作。

图6 项目模型总装渲染效果图
3项目应用
3.1图纸自审、会审
利用模型碰撞检测实现专业内及专业间的图纸自审、会审,施工前技术人员借助BIM模型对设备、管线空间位置进行校验,从而排除施工中的漏、碰、缺等传统施工顽疾的发生,大大减少了施工环节的返工率,赢得了时间节约了成本。
三维建模实现计算机检查,不仅可以解决“硬碰撞”检查,还能进行大量的“软碰撞”,如安装空间、检修控件、人员通道、管道间距和设备间距等检查,按规范和经验进行人工检查。在传统设计中,这类“软碰撞”不便于发现,在三维环境下,通过三维模型的直观可视优势,设计人员可以方便地检查方案是否合理、是否最优,进行优化设计。通过校审发现:错误-235处,洽商-67份。

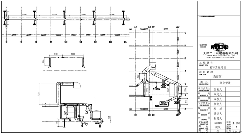
图7 主厂房除尘管道与结构发生碰撞
3.2 工程量统计
通过BIM设计完成的3D模型,直接得到建筑、结构、设备、电气等各专业材料的精确统计,材料统计报表自动化,为物资采购、工程预算、成本控制提供高效、便捷的服务依据。

表 2

表3 电缆桥架及其弯通等电气设备材料统计报表
3.4 出施工图
通过模型切图,直接切图得到平面图、立面图、剖面图和大样详图。

图8 主厂房模型动态切图
通过BIM信息化模型,提取各专业施工图纸及节点详图,根据需要在任意位置进行立体的视图剖切,克服了传统二维图纸中难以发现的设计缺陷和空间盲点。完成建筑、结构、设备、电气等不同专业,不同格式的图纸需求,包括平面、立面、轴测图、阶梯剖,实现施工图纸无纸化。

图9 OpenPlant出的ISO图

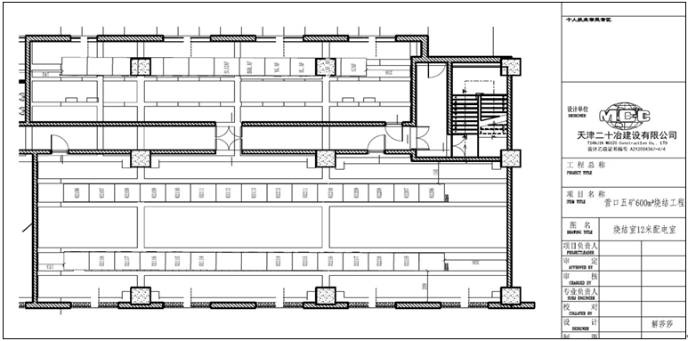
图10 电气室设备布置图
3.5 工程应用
3.5.1 可视化技术交底
对复杂的混凝土柱、梁板支模、浇筑进行三维技术交底;对二次结构中的砌体组砌、拉结筋留置、构造柱施工工艺进行三维技术交底。图11为在现场向施工人员进行的剪力墙结构模板三维技术交底,形象直观,提高交底质量。

图11 剪力墙结构模板三维技术交底
3.5.2模拟施工
大型设备的运输和吊装,通过在三维模型中采用动态的碰撞检测,可以优化设备安装方案,发现设备布置的不合理的地方。也可以通过让运营管理单位对三维模型进行审查,提早发现使用上不合理的布置。
本工程烧结机头轮重54.9吨,尾轮重34.9吨,属超重超大型设备,施工前进行了吊装施工模拟,为构件运输、施工机具选型决策提供依据。如图所示为烧结机头轮吊装模拟。

图12 主厂房头轮吊装模拟
本工程主抽风机室混凝土烟囱高120m,施工采用滑模施工工艺。主要方法:烟囱内部设提升井架,提升系统包括32台液压千斤顶及液压同步控制系统一套、辐射环梁一套。滑模控制在400mm一段,逐段滑模提升。

图13 滑膜施工模拟
3.5.3 施工进度模拟
通过BIM信息化模型,实现工程进度的4D控制,全方位、全过程展示工程进度。
3.5.4 手持设备应用现场指导施工
BIM信息模型实现在iPad手持设备上的浏览、审核、红线批注,实现技术人员在施工现场进行模型与建筑实体的比对,指导和检测施工作业质量。实现图纸电子化分发,实现无纸化绿色施工,节约了资源。

图14 施工现场移动设备应用指导施工
4 项目意义
提升项目协同、提高工程效率
ProjectWise平台可快速、灵活设定组织架构,所有流程具有可继承性及可追溯性,互提资料和资料发布流程灵活受控,施工图设计及其校审流程及时迅速,多种文件与信息可在各管理部门之间实时共享,具有移动信息应用技术。
减少设计错误、提升质量管理
减少了施工错误,提高前方作业人员队图纸技术的理解能力,模型+虚拟施工的三维可视化技术交底降低了工程质量风险,施工进度模拟,合理有效利用各种资源,降低施工组织管理风险,利用三维模型进行的工程量统计,合理控制了材料的采购价格与供用时间,降低了采购管理的风险。
降低项目成本、减少运营成本
三维设计比传统二维设计较大减少了设计成本、管理成本,三维模拟施工减少了机械台班数,大大节约了机械费,由三维模型提取的材料统计,合理控制了材料的供需时间及采购价格,一定程度上节省了工程材料费用。
降低资源消耗,减少环境污染
通过无纸化节约超过100万张纸,约重4t;减少树木砍伐量5526.88kg,节约煤2036kg,节约水141.2t;减少CO2排放量14112.4kg,SO2排放量83472kg,固体废弃物909.12kg。

表4 生产每吨纸消耗的资源及产生的浪费
5 结语
利用BIM信息化管理实现了由二维设计向三维设计的跨跃;架起设计、设备制造、施工、监理之间信息“孤岛”的桥梁;实现施工前完成工程三维碰撞校验和施工吊装模拟动态检测,最大程度减少了设计损失;实现了材料、设备工程量由施工人员伏案统计,向三维模型自动提取的转变,实现了关键施工节点的三维技术交底,借助数字总图地模实现施工临时设施立体化布置。BIM技术为提升现代施工企业管理水平提供了强大动力,是施工管理技术手段的一次革命。
参考文献:
[ 1 ] 钟登华,宋洋。 大型水利工程三维可视化仿真方法研究[J].计算机辅助设计与图形学报,2004,16(1):121-127.
[ 2 ] 李波。 基于ProjectWise的变电站三维协同设计[J]. 中国建设信息,2013(16):36-39.
[ 3 ] 董宇, 白歌乐,曹晓宇。 三维电缆敷设软件的开发与应用[J]. 内蒙古电力技术,2008(2):39-42.
[ 4 ] 赵顺耐。 三维协同设计工作环境定义初探[J].中南水利发电,2013:29-36.
[ 5 ] 唐稳,田斌。 水电工程施工的三维可视化仿真技术研究[J]. 湖北水力发电,2008(4):23-25.
[ 6 ] 张正峰。 复杂建筑群施工过程三维可视化仿真与优化研究[D].天津:天津大学,2006.
[ 7 ] 魏莹。 水利工程三维可视化仿真系统真实感实现[D]. 天津:天津大学,2012.

BIM建筑网


