由香港跨媒介设计工作室Design Systems设计的港丰发展总部,着意在人工环境中映照自然,透过对幽微细节和多样物料的关注和应用,以简约呈现精致,体现了一份以人为本的新办公空间精神。
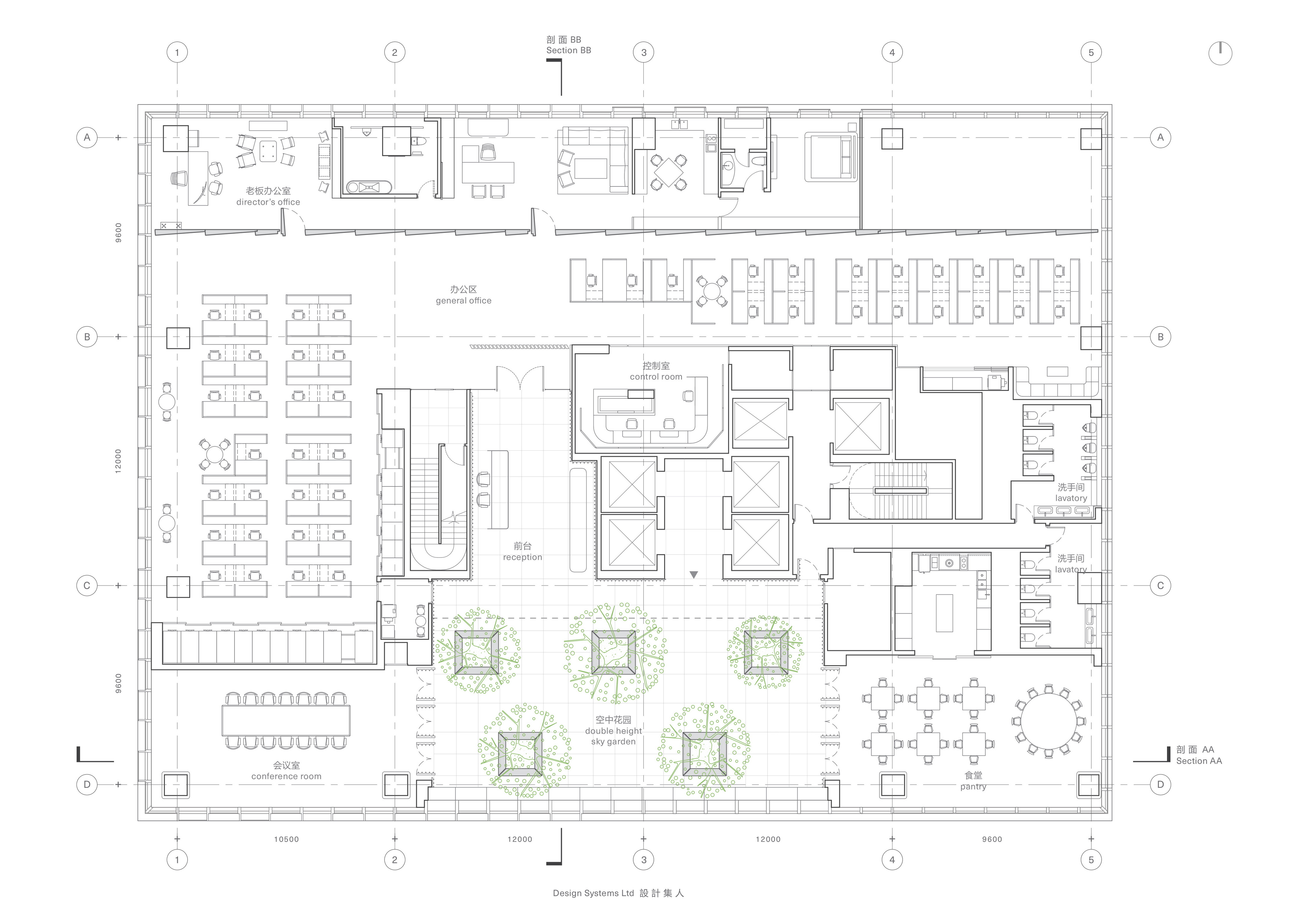
1,500平方米的空间分为两个部分:40%为开放区,60%为办公空间,供50人的团队和管理层日常工作。这种低密度的开放性安排,在以寸金尺土闻名的香港,无疑是一种难得的奢侈。
「人是公司最重要的财产。设计过程中,我们想象人如何与每个设计元素互动,并将员工的感受和体验放在首位。」Design Systems如此解释设计背后的理念。
开放空间:光影之画
由空中花园、会议室和休息区组成的开放空间,成为整个办公空间设计的主轴,以创新的空间手法,引导用家在其中交流、休息,与同事互动。
光和纹理,是这个空间背后的两大设计元素。
设计团队仔细考虑时间转移对光线特质的影响,以日间充沛的自然光、黄昏的暖光和人造光,营造出空间在不同时段的独特氛围。
大理石、GRC、木材和铝合金等个性独特的物料,与不同温度的光线交织,成为这场光影之舞的背景画布。
天顶的结构和树叶的影子,经阳光为载体,白天洒落在大理石地面,黄昏则斜倚在条子墙上,形成一道道独特的图案,丰富了空间的视觉语言。
设计团队将物料视之为纹理,重视如何透过排列、组合等手法,形成一个个立体的图案,而非单纯强调其形式造型。大理石和木材等自然物料的特殊材质,在平面、弧面和立体等多重设计手法下,个性形态尽现。U型挤压铝和橡木面板材制成的条子墙,和由GRC制成的波浪型天花,则突显了人造物料与阳光之间的互动。多层次的物料运用,让阳光洒落不同纹理表面时形成暗影,增加空间的视觉张力。
办公空间:天空、蔚蓝和细节交错
设计时,我们没有盲目采用时下流行的开放式办公室设计,因为对于客户的工作性质而言,真正需要独立工作间的隐私来集中精神工作,提升效率。
但我们亦透过不同的设计手法,改善传统工作间相对局促的问题。利用回收牛仔布料制成的深蓝办公桌吸音屏风,与一面面耸立的浅蓝云纹石墙相互映照,成为办公空间一道舒畅的风景,引发人对窗外天空的无限联想。
这种设计亦考虑到员工的精神需要。「当工作累了,最好当然是到开放空间伸展筋骨;但同时大家只需要从工作桌抬头,便可以实时得到一份眺望天空远景的舒爽,享受一段与自己对话的时光。
我们特别设计订造了一个以挤压铝制成的拉网天花结构,令灯光的照射与灯具的安装,均能够取得最大效能。向上、向下及反射光的交替运用,形成自然柔和的光线,以稳定而亲和的光源,支持同事们的工作表现。
对细节的重视,是这个项目背后的灵魂所在——从升降机显示灯、大门把手、灯具开关,以至各式天花灯具、墙身饰面、家具、玻璃砖和洗手盆,均是由设计团队度身打造。从设计概想、落实,以至是维修保养,设计师和客户均尽心尽力照顾好办公室内的一切。
隐藏在洗手间厕格背后的订制云石衣勾,可说是最能突显我们对于设计细节的执意表现——即使是隐身于公众目光背后的细微末节,我们仍然坚持照顾周到。而这正正是Design Systems对于打造办公空间的精神所在——以人为本的布局透露客户品牌精神,从细节低调地述说坚持和创新价值,打造一段独一无二的空间体验。
△ 平面图
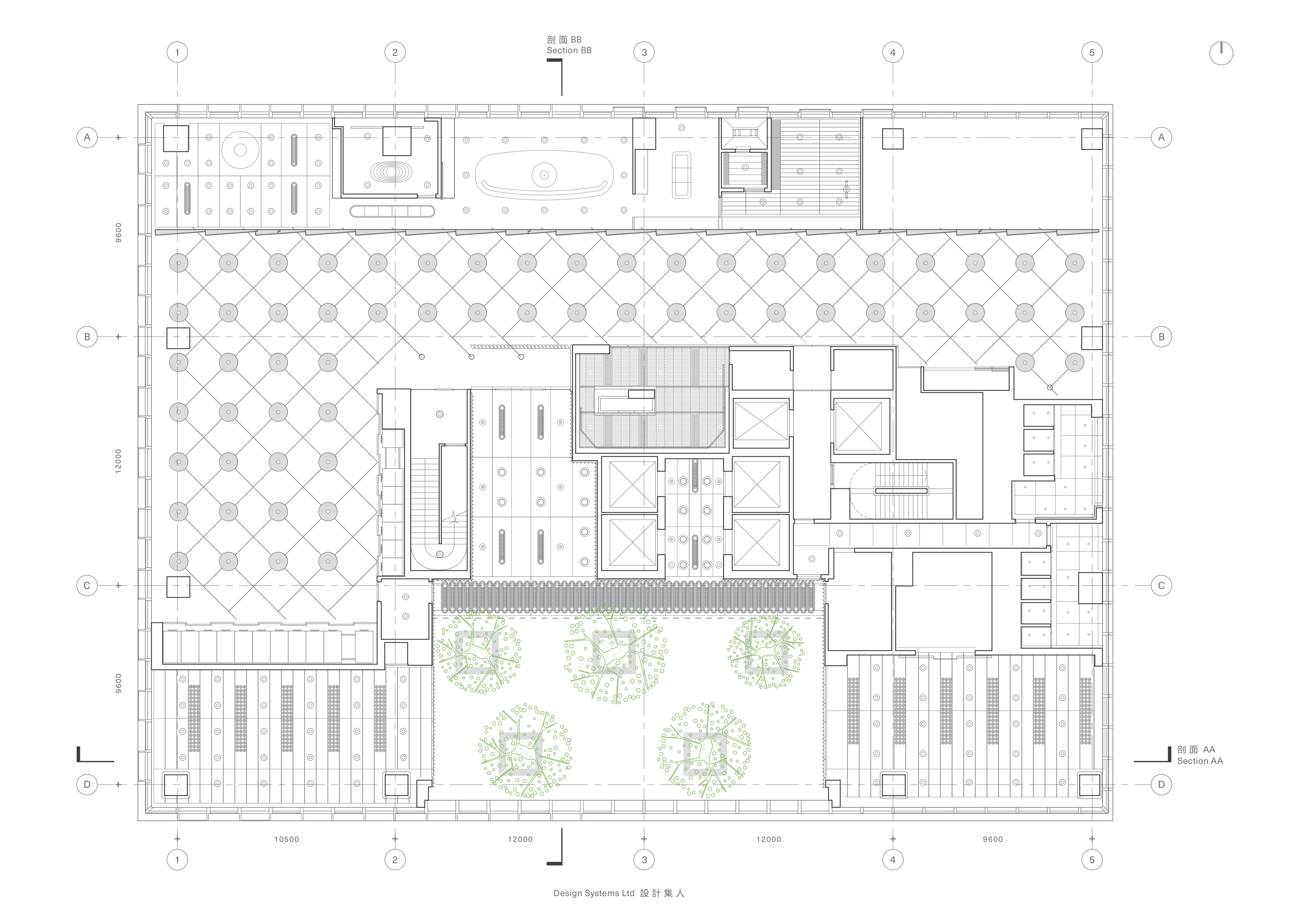
△ 天花图
△ 剖面图
△ 点击视频,了解更多
项目信息
项目名称:光影之画——港丰发展总部
设计公司:设计集人Design Systems Ltd.
公司网站:https://designsystems.com.hk/
联络邮箱:[email protected]
公司所在地:香港九龙青山道654-656号浪淘大厦5楼
项目完成年份:2019
建筑面积:1524m2
项目地址:香港九龙湾常悦道18号
主创建筑师:林伟明
主创建筑师邮箱:[email protected]
Facebook:http://facebook.com/designsystemsltd
Instagram:http://instagram.com/designsystems_hk
设计团队:林偉明 葉俊文 王永健 鐘建龍 區翠 鐘小燕 高嘉嘉 張星 鄭靜鷺 王基 盧楚曼
委托方:港丰发展有限公司(HKPI)
建筑设计:创智建筑师有限公司AGC Design Ltd
结构设计:阿特金斯顾问有限公司ATKINS
景观设计:设计集人Design Systems Ltd.
标志设计:Codesign Ltd
施工方:城市装饰工程有限公司City Decoration Works Co. Ltd.
金属施工:永迪工程有限公司Wing Dik Co. Ltd.
GRC施工:新预制工程(香港)有限公司APG (HK) Ltd.
摄影师:设计集人Design Systems Ltd.

BIM建筑网






























