我们力所能及的:在表现主义盛行的当下贴近极简。
混合类型
在中国,裙楼的建筑容积率往往无法应对城市人口密度增幅造成的压力,于是就导致了城市建筑过度依赖塔楼来达到市政规定的容积率标准。因此针对当下的城市环境,混合型建筑可谓是一个行之有效的解决方案。
一座塔楼从裙楼中拔地而起,这样的组合类型优势多多:裙楼能够激活城市街道边缘,并且实现良好的采光和通风,用户甚至还能享有一座“公私用随意”的内庭院;塔楼则可以在不逾越容积率标准的前提下,最大化利用建筑占地面积。
友好邻里
该项目被要求样式造型不能妨碍邻近建筑的日照。裙楼对此不会造成太大影响,但塔楼就难说了。我们最终通过夏季太阳直射点的位置、日照计算,敲定塔楼立面为东西朝向。
金属百叶
建筑的所有立面都应用了垂直屏障来隔热。高雅的薄板延伸出窗口并形成水平面,上布垂直穿孔金属遮光板,这些遮光板既可以合拢起来阻隔日晒,也可敞开方便观景。总的来说,这些遮光板如金属花瓣般覆盖在立面上显得统一而规整。
户外甲板为每层楼打造了额外的外部空间,同时将遮光板分隔开来,从而减轻大量金属遮光板带来的视觉压迫感。
极简为主,表现为辅
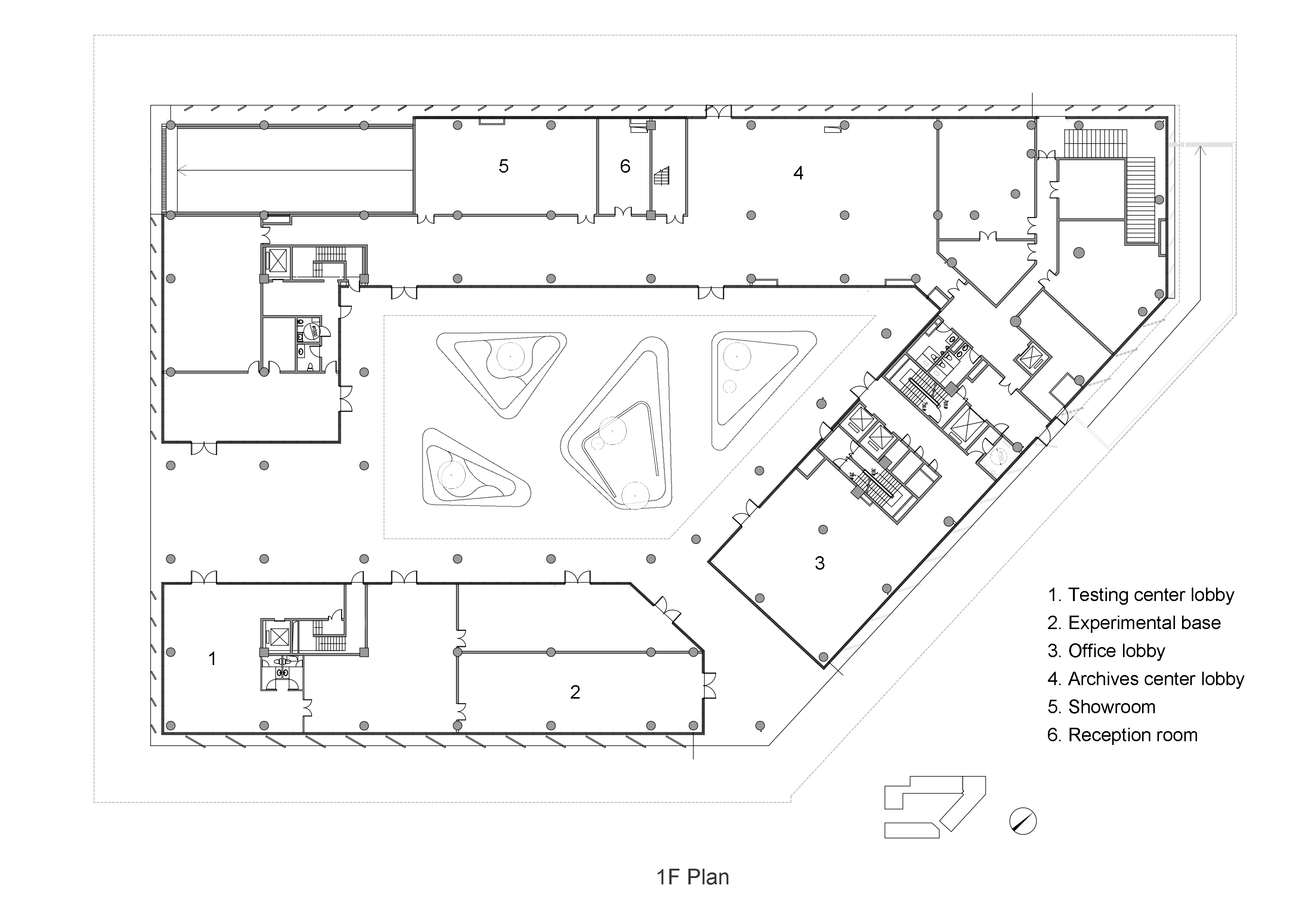
该政府办公大楼功能多样,它可以是档案馆、检测中心、员工食堂、商业街前咖啡馆,以及各种封闭或开放的办公空间。这样的设计不仅表现了建筑能够连接各类功能区间,也呼应了该混合型建筑由裙楼与塔楼连接而成。
然而,相比探索功能连接等表面性问题的解决方案,我们更需思考:不同功能之间如何划分区隔?裙房和塔楼的结合相较于二者独立能产生多少差异?我们又如何花最小的力气来适应差异?为此,我们有两个主要的设计措施:一、统一规划幕墙,使其满足每一个不同区域的日照需求和遮阳性能标准;二、所有入口都通入中央庭院。
半公共庭院
集中动线的策略不仅创造了一个半公共的户外空间,还方便了不同部门间的合作交流。午餐时分,围合的庭院还能提供活跃的就餐环境。
庭院还将通往南大门的公共人行道连通至步行桥的拟建位点再至庭院东北侧,这样的对角线路径也强调了庭院的“半公共性”。
异置的屋顶景观
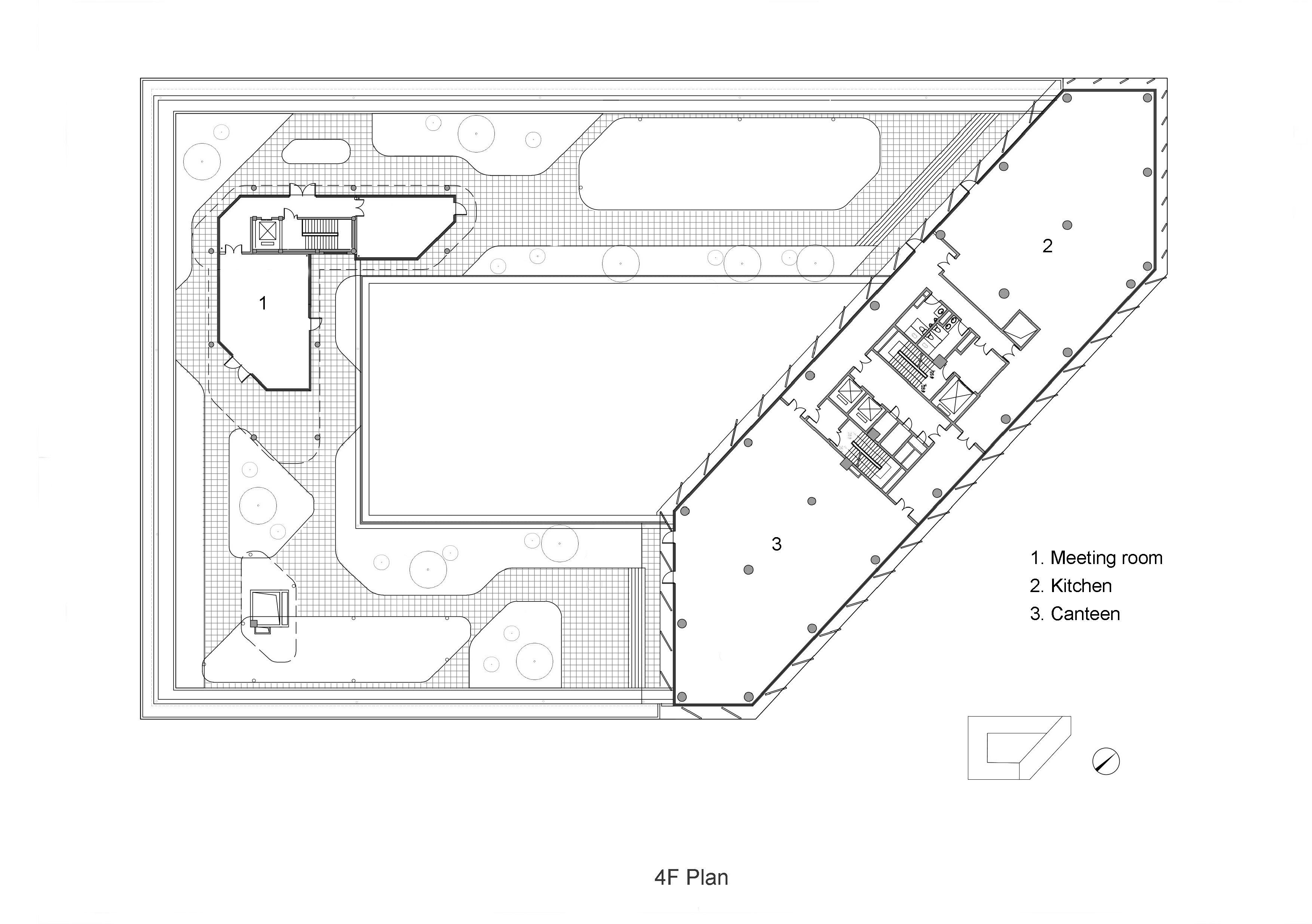
为了引导员工走出大楼享受一番户外景色,我们将一层室内的地砖一路铺至庭院,并延伸到河边。这样的设计也为未来一楼开发更多公共/商业用途奠定稳健的基础。
在塔楼可俯瞰裙楼屋顶。该顶层有一座花园小亭,仿佛一座被“错置”的景观;员工食堂的门就开向此处,员工午餐,甚至是非正式会议,都可以在小亭子里进行。另外,还有一间机电房也被装扮成一座小亭。因而,整个顶层为租户提供了户外私人空间。
比我们想象的更令人瞩目
在商业和零售环境中,每一栋建筑都追求标新立异,在以广告及标牌为主的街景中,建筑已成为企业理念和营销活动的 “延续战场”–然而,或许一座简约优雅且沉静的公共建筑比我们想象的更令人瞩目。
设计图纸
△ 分析图
△ 分析图
△ 总平面图
△ 一层平面图
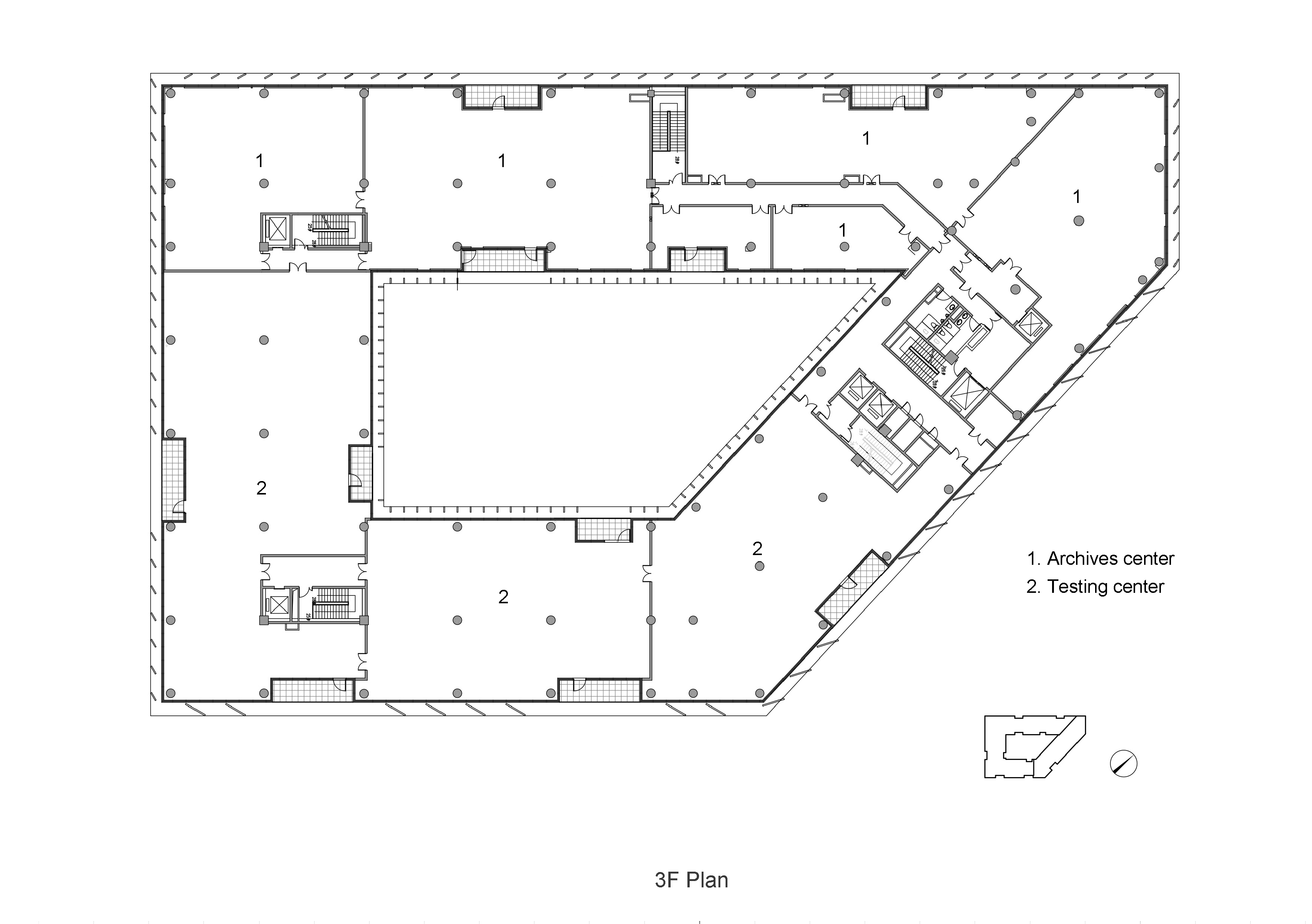
△ 三层平面图
△ 四层平面图
△ 六层平面图
△ 北-东立面图
△ 南-东立面图
△ 南-西立面图
△ 北-西立面图
△ 5-5剖面图
项目信息:
项目名称:杭州桐庐办公大楼
项目情况:2019年竣工
地点:浙江省,杭州,桐庐
客户:桐庐城市发展经营有限公司
类型:办公建筑
功能项目:档案馆,检测中心及办公楼
年份:2016—2019
建筑面积:26,684.01平方米
建设投资:人民币1.36亿
BAU项目组成员:James Brearley、Jens Eberhardt、陈志勇、罗怀利、Steve Whitford、高卫国、 陈箭
施工单位:杭州港湾建设有限公司
合作设计院:中国联合工程公司
摄影:夏至

BIM建筑网





























