△ 无界生活之无界社区 ©郑庆龄
2012年秋天,一群艺术家朋友邀我们来到沙湾水道旁的紫泥堂厂,打算将其改造成一个艺术创意区。这个建于50年代的大型工业区,曾接受过邓小平的视察,但如今芳草萋萋,美人迟暮。曾经踏平山水田园的工业文明已逐渐被互联网取代,未来又会是怎样的?基于此我们提出了“工业山水”的规划方案。
△ 紫坭糖厂
2015年秋,一位互联网社区联合办公品牌创始人随我们到访这个园区,爱得不能移步,立即向园区租下了一个紧挨小山丘的旧电房。她说想把这个134平方米的空间做成周一至周五是可以网约的Co-working Space,周末是自己家人度假用。我们便提出了Co-living Space的概念:可以工作,可以开会,可以展销,可以Airbnb,可以做饭聚会……方案完成了,一个开放厨房加一条大长桌成为空间的主角,上面吊的树屋既可以做榻榻米房又可以放电影。特制的床随时可以翻起变展板,屋顶甚至可以变剧场……如此具有互联网共享精神的空间,却有一个很传统的名字——紫泥山房,共享是空间的精神内核,自然是永恒不变的向往。
△ 山房原状 ©扉建筑
△ 长桌的N种使用 ©扉建筑
△ 床板变画板 ©扉建筑
△ 屋顶变剧场 ©扉建筑
然而,互联网的泡沫把这星星之火浇灭了。好在我们立即找到了另外一位业主,租下了更大的纤维板车间。这次,我们把Co-living空间发展为无界社区,为互联网文明中诞生的创意人提供一种新的生活方式,新的工作社群空间。
△ 纤维板车间室内©扉建筑
△ 纤维板车间改造前与改造后 ©郑庆龄
△ 纤维板车间改造后 ©郑庆龄
互联网催生了这样一群“斜杠青年”,他们可能早上是奶爸,下午是网络写手或者画画创作,晚上是美食直播博主或沙龙主人。他们的这种无界生活方式把工作、生活、度假、娱乐融为一体。传统的建筑设计则分门别类,泾渭分明。我们在这里为他们的无界生活设计的“无界空间”完全打破常规的定义,你可以在客厅做画展,在花园办公,在浴室开会……客厅就是直播间,书房就是周末的Airbnb,每一套独立房子的客厅、餐厅都可以对“街道”开放,形成更大的共享空间。周末可以形成集市,这边是奶爸办的画展,那边是网红博主的烘焙工作坊厨房……创意就是跨界重组,就是重新定义。打破边界、打破定义的空间组成无界社区,让使用者沉浸在脑洞大开的空间体验中,激发想象力与创造力。
△ 创建邻里关系的立面 ©扉建筑
△ 激活交流的加厚立面 ©郑庆龄
△ 楼房里的巷道空间 ©郑庆龄
△ 握手楼 ©郑庆龄
△ 点击视频,了解更多
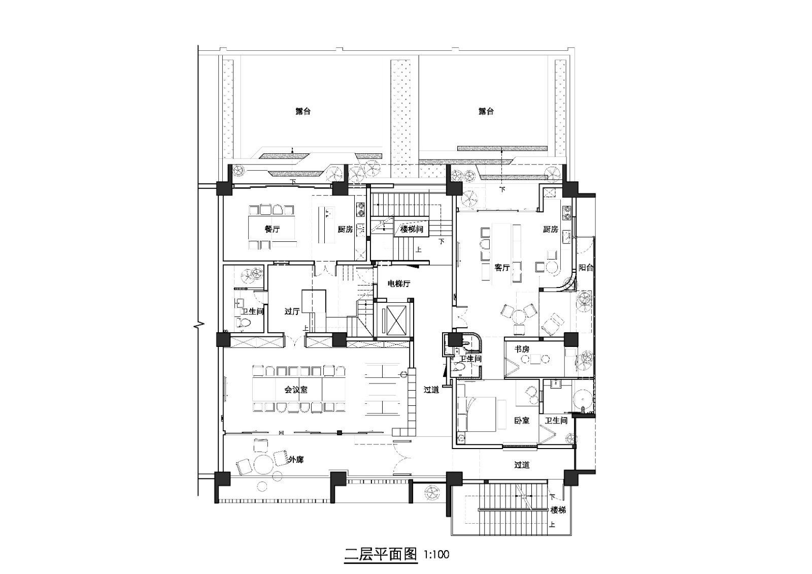
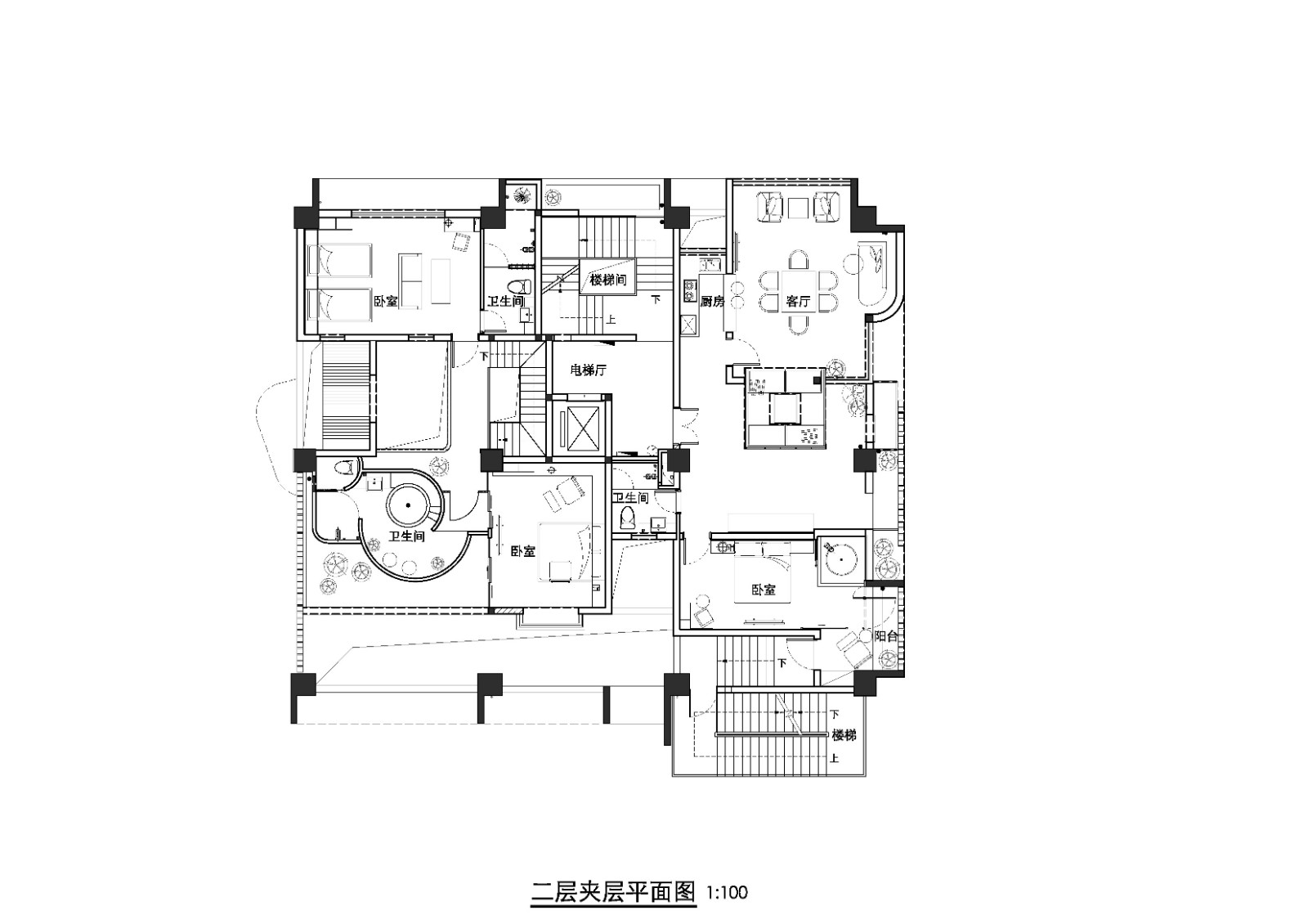
两层6.9米高的厂房空间里搭建了7套格局不一的房子。这些房子,有的从广东民居中采来天井以及半露天的浴室;有的用半封闭的缓坡联系楼层,穿行上下之间,柳暗花明;有的门窗是移动的画框,改变框中风景的同时也改变了使用空间;有的浴室在花树下沐浴夕阳……
△ 7套大小、高低不同的房子 ©扉建筑
△ 设备吊裝孔成了家里的內天井 ©郑庆龄
△ 家里有树,还有山坡 ©郑庆龄
△ 一边是沙龙客厅,一边是朝向楼內巷道的展览空间 ©郑庆龄
△ 门窗是移动的画框©扉建筑
△ 花树下沐浴夕阳 ©郑庆龄
很多人看着外立面感到很疑惑,“这栋房子用来做什么的?”我们一直想的是怎样把浴室建在花园里,厨房能看到远山,在望见一线天的天窗下看书……把每套房子想要的这些地方搭建完成,立面就成了“违章建筑”的模样。我们要的是空间,不是一张皮。于是我们把表皮加厚变成使用空间。
△ 浴室里雨打芭蕉©扉建筑
△ 原设备口改造的望天浴室 ©郑庆龄
△ 空间生成©扉建筑
△ 垂直社区 ©郑庆龄
△ 加厚的立面 ©扉建筑
△ 主入口©扉建筑
△ 塔楼二层平面图
△ 塔楼二层夹层平面图
△ 三层平面图
△ 三层夹层平面图、小阁楼平面图
房子盖好了,缺个前奏。恰好楼前有一幅旧墻,不如再次用加厚的方法,把实变空,等待着被重新定义。作为边界的墻,被人的活动“侵蚀“,扩展变成多个露天展厅,成为无界社区的门户,是对“无界”最好的诠释。
△ 围墻改造前与改造后 ©郑庆龄
△ 围墻改造前与改造后 ©郑庆龄
△ 无界社区门户 ©郑庆龄
最终业主决定,这个建筑不是分租给数十个“斜杠青年”,而是让更多人来体验做一天“斜杠青年”,来一日脑洞大开。因此我们配合空间,为这个“无界社区”原创了许多艺术品,发起各种参与式活动,赋予空间不同定义,让使用者持续发掘更多的可能性。
△ 板材机器 ©扉建筑
△ 机器变酒吧 ©扉建筑
△ 原创艺术品-声波 ©扉建筑
△ 原创艺术品 – In Art We Trust ©扉建筑
△ 原创艺术品-WOO ©扉建筑
△ 围墙上的「注意来车」倒影出加厚的墙空间 ©扉建筑
△ 艺术营造 ©扉建筑
一栋房子就是一个社区,一个美术馆,一个剧场……
△ 社区 – 剧场 – 美术馆 ©扉建筑
△ 无界社区 ©扉建筑
设计图纸
△ 总平面图
△ 剖面图1-1
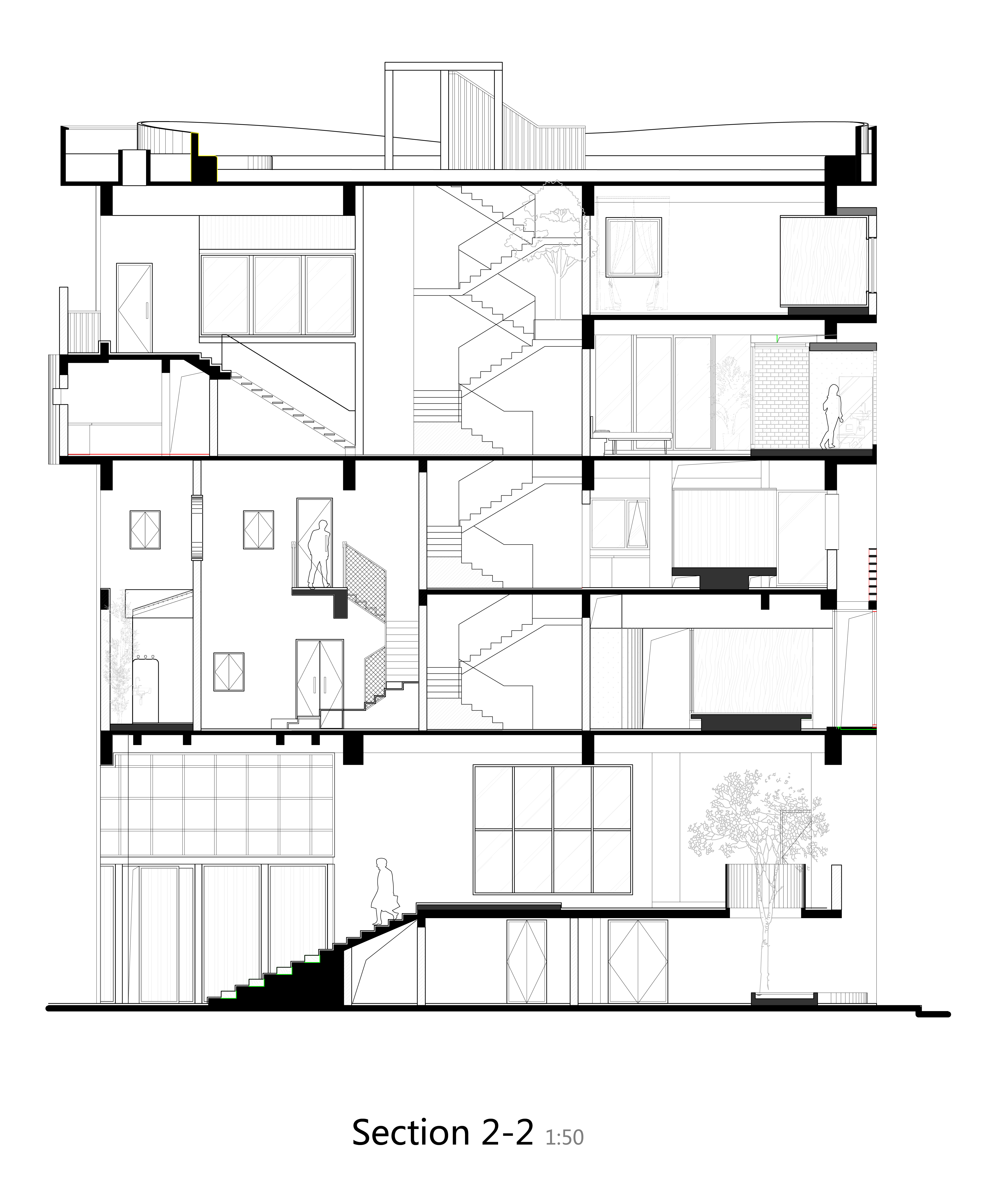
△ 剖面图2-2
△ 剖面图
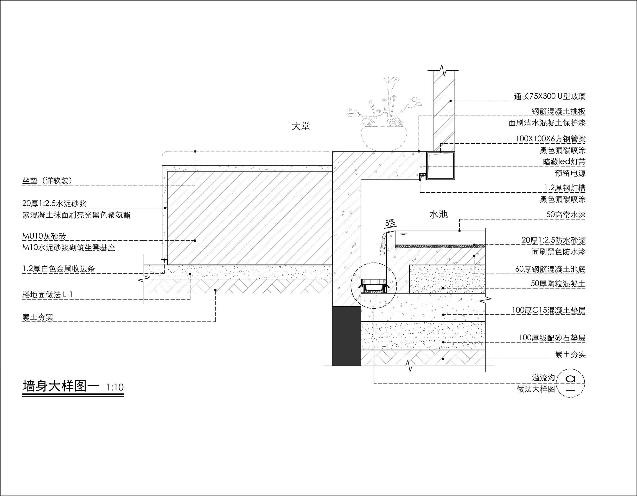
△ 墙身大样
△ 东立面
△ 南立面
项目信息
业主:广州汇彬物业管理有限公司
建设状态:建成
设计时间:2016.1-2018.1
建设时间:2016.10-2018.9
建筑面积:5231㎡
项目类型 :改造项目
项目地点:广州市番禺区紫泥堂创意园D1D2
设计单位:扉建筑
室内、景观、艺术品设计:扉建筑
事务所网站:www.feiartecture.com
主创建筑师:米笑
设计团队:岳靓、刁家俊、曹锦添、许思琪、黄宇城、毕晓璇、程结成、杨国安
施工:北京世纪汉邦装饰工程有限公司

BIM建筑网


















































