建筑设计的核心是提高居住者的生活品质,其自身的坦率可以让人看到其主体构成。项目致力于通过适宜的气候条件管理,尽可能地获得最大效益。
项目位于瓜达拉哈拉大都会区南部郊区的住宅开发区,主要由两个具有双重功能,即私人功能和服务功能的堆叠体量组成。一方面,两体量之间的开放空间利用了气候特点和低密度住宅区的光照优势,可满足通风、采光和视觉需要。另一方面,住户的隐私保护成为优先被考虑的因素,因此减少了服务空间的外露。
总的来说,该项目是基于业主的需求表达而生的一座完全实在、坦率的住宅。它建立在对自然和城市环境的平衡的基础上,通过形体来表达其自身的特点。
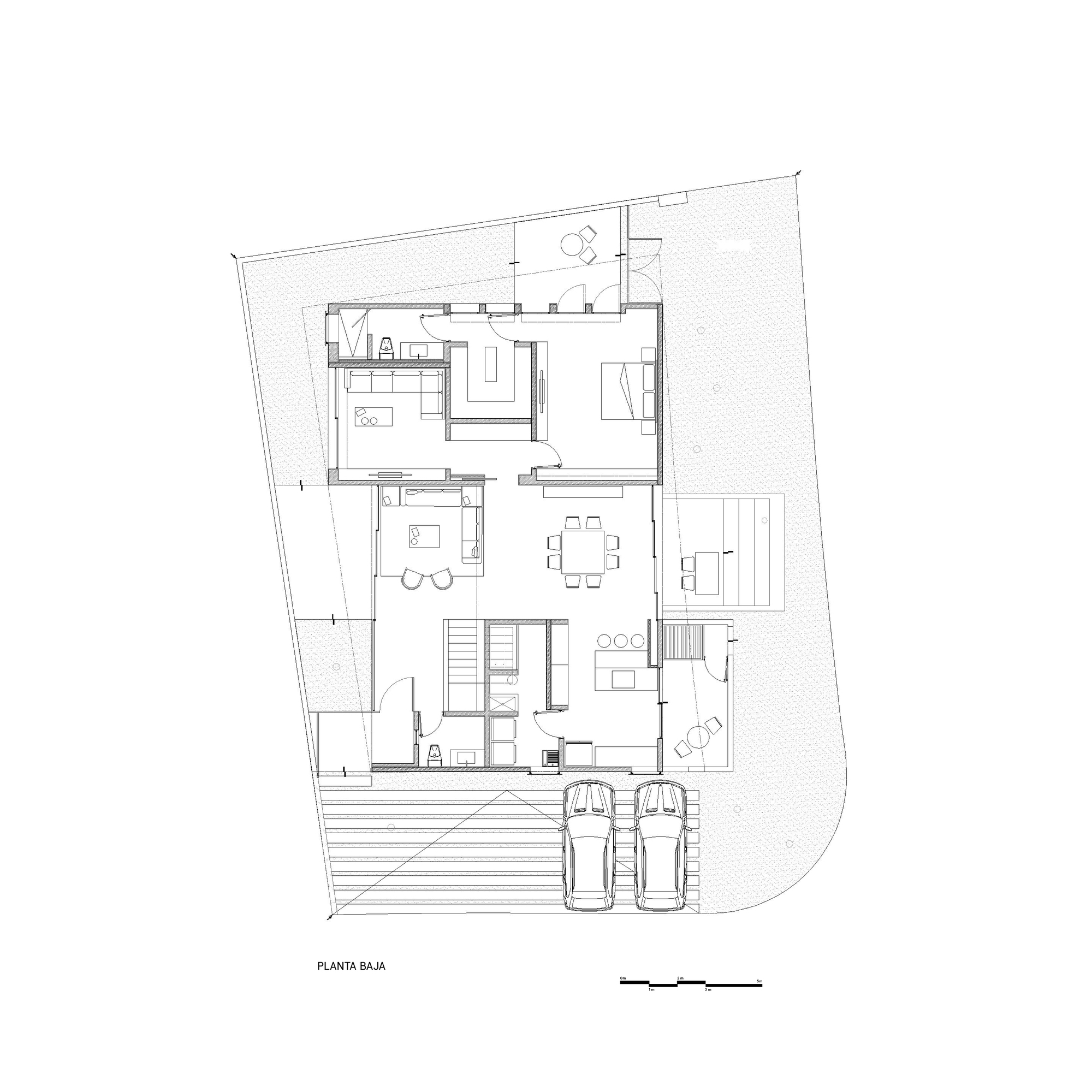
△ 一层平面图
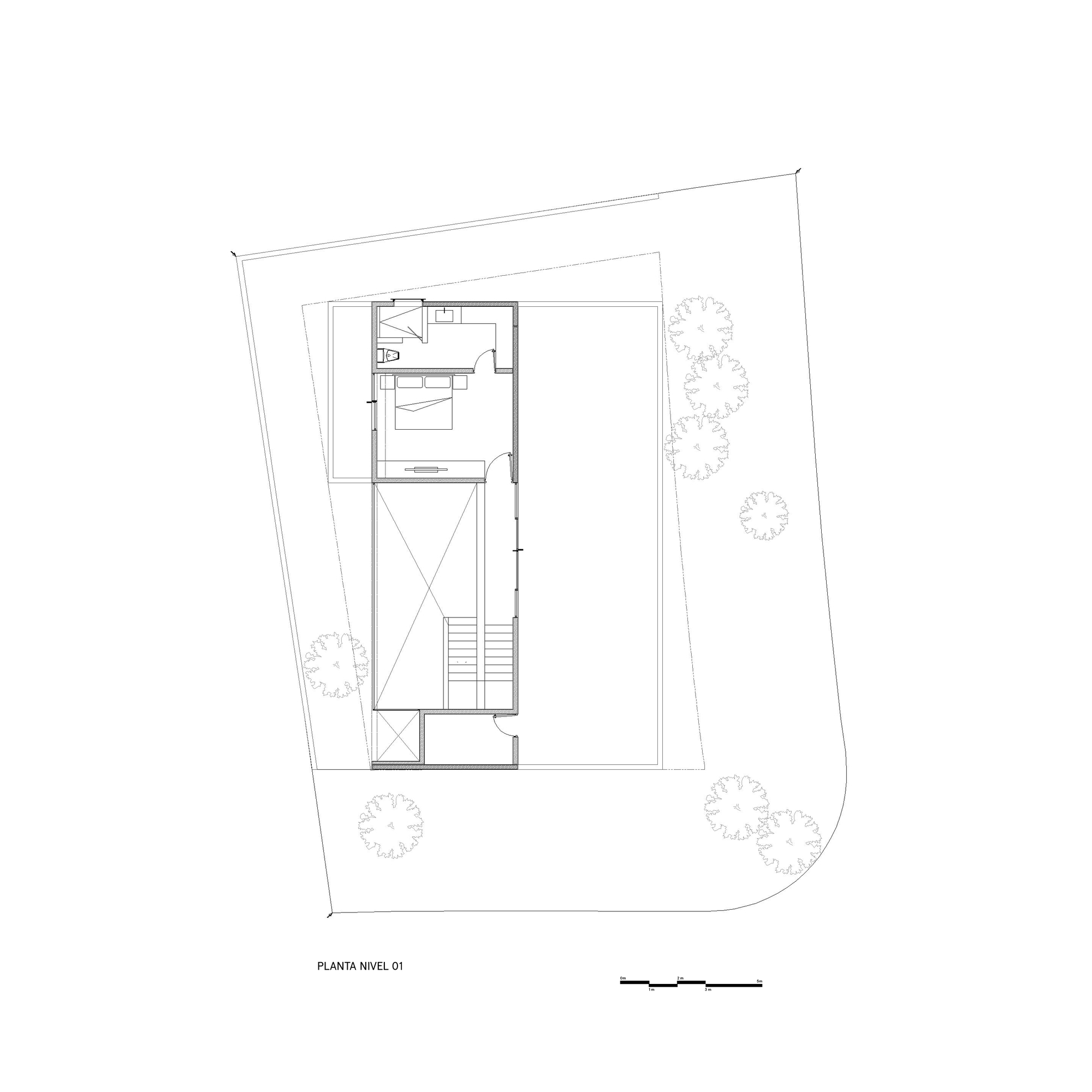
△ 二层平面图
△ 屋顶平面图
△ 立面图
△ 剖面图
△ 分析图
△ 节点图
项目信息
项目类型:独立住宅
项目地点:LOS GAVILANES,墨西哥
建筑设计:LR Arquitectura
面积:2540ft²
完成年份:2020
摄影师:Horacio Virissimo
制造商:AutoDesk,Chaos Group,Adobe Systems Incorporated,Electrica Variedades,Modul Studio,Soluciones Java,Trimble Navigation
主创建筑师:Carlos Teodoro Rodriguez-Laura, Eduardo Lassala Orozco
设计团队:Marisol Favela, Miriam Ortiz
结构设计:TADE
微信公众号:xuebim
关注建筑行业BIM发展、研究建筑新技术,汇集建筑前沿信息!
← 微信扫一扫,关注我们+

BIM建筑网





















