Dorfler住宅坐落于拉各斯的美亚海滩,在一处90年代的传统房屋共管区,建筑以其大胆、优雅的造型跳脱出周围的环境。富有动感的曲线形体仿佛朝向大海的望远镜,成为城市环境中的一道壮丽的风景线。
建筑最大程度优化了面向美亚普拉亚海湾的观景体验,同时融入城市环境,与周边建筑之间保持平衡。向上流动的姿态使建筑体量之间建立了共栖关系,同时创造出室内外之间的隐私防线。该房屋尊重场地环境、土地形态和城市环境,充分利用了所有特色以突出其造型,并通过对建筑构件的自然探索将其植入到土地中。建筑的两个望远镜头表达了对海景的致敬,也成为了其最壮观的特征。
对公共空间和私密空间之间的流动性考虑始终优先于景观视野,这种选择是该建筑对传统的倒置——从而决定了整个公共空间位于上层,而私密空间位于下层。这种倒置使在空间内部能看到建筑整体的特征——而室内外空间关系并不矛盾,从而实现空间之间更紧密的共存。
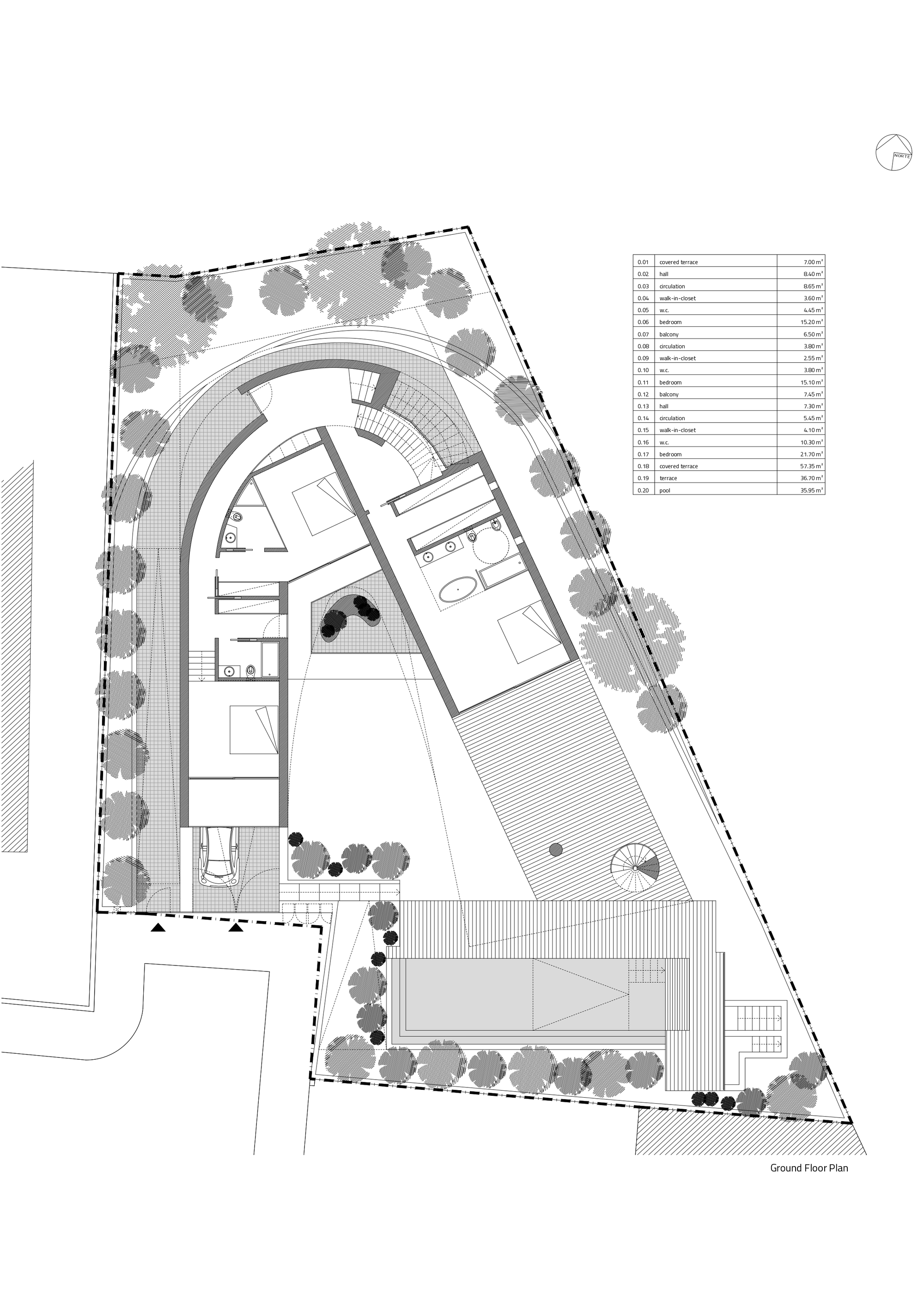
最温馨而私密的空间位于一层,也是入口,卧室和浴室的所在。此外,一处户外露台与建筑直接对话,使其成为白色突出体量的绿色基地。建筑南侧提供了游泳池的入口通道,有遮顶的室外露台可确保不被过度日晒。二层包括公共空间,如客厅、餐厅和厨房。连接一层的室外楼梯舒适地连接了公共区和一层户外空间。
地下一层是最具技术性的项目,车库,技术服务空间,储藏室和洗衣房,这些尽管是更隐秘的空间,但具有一个室内天井,以保证地下室的自然采光。
房子室内的自然采光是优先考虑的因素,宽敞的空间的窗户经过精心布局,随葡萄牙南部日照时间的不同而产生了不同的阴影。
△ 地下一层平面图
△一层平面图
△二层平面图
△屋顶平面图
△南立面图
△北立面图
△东立面图
△西立面图
△剖面图
△剖面图
△剖面图
项目信息
项目类型:独立住宅
项目地点:拉各斯,葡萄牙
设计方:Vitor Vilhena Architects
面积:600m²
项目年份:2020
制造商:AutoDesk,Focus,Agape,Living ceramics,Binova,Bosch,PARANORAMAH
摄影师:Fernando Guerra | FG+SG

BIM建筑网



























