为了促进加利西亚自治区数个城镇中凋敝的历史中心的复原工作,当地公共管理机构推动了这栋位于加利西亚自治区历史中心的废弃楼宇的修复工程。这项工程被分为两步:首先是获取产权,其次是修复房屋,使之成为能租赁给公众的房源。
该项目作为被复原的建筑之一,位于Ourense历史中心中最老旧和凋敝的地区
在项目伊始,我们首先对需要修复的现存建筑进行了研究,内容涉及对周边环境、建筑类型学和建造体系等的分析;尔后又研究了建筑的保存现状和其他损害问题;最终提出了最合适的建筑修复方案。
整栋建筑坐落于Ourense的Rúa do Vilar街道,有一侧立面面向街道。在改造之前,它有三层楼,首层为商用,上面的两层每层是一套住宅。
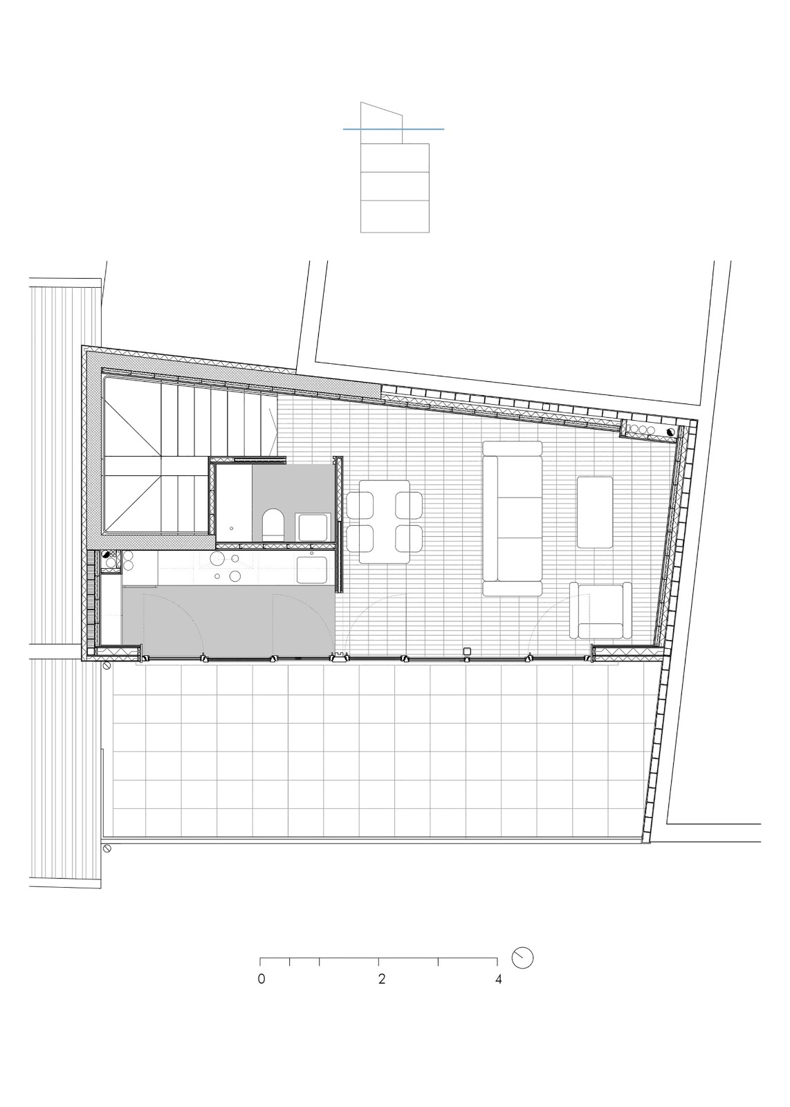
在对可能使用的房间分布进行初步研究后,我们决定在现有三层建筑中设计两套公寓,并在原有三层基础上增加顶层空间。根据当地城规条例设计要求中应保持原有立面的规定,加建的顶层空间了较原有立面后退3m。
在技术解决方案的选择中,我们选择加入可调节室内冷暖的系统,试图通过改造建筑为主,加入高效主动能源系统为辅的方法达到对建筑能耗的精准控制。
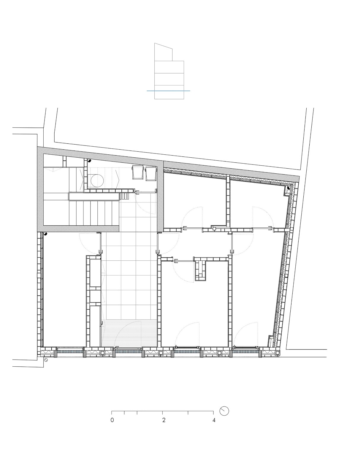
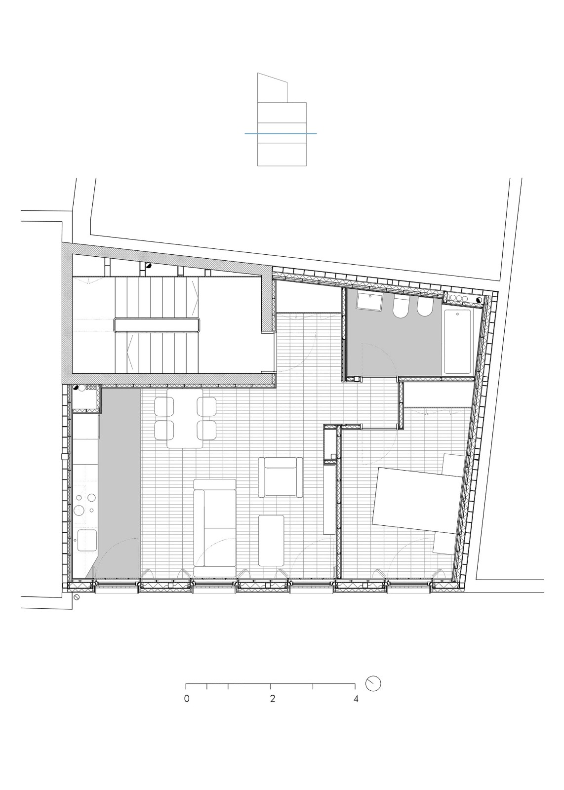
首层设置了通道、公共服务空间和两栋公寓的附属用房(储藏室、洗衣房及晾衣间)。二层则是一套拥有一间卧室的公寓,三层和四层是一套拥有三间卧室的公寓。
建造方案的一大特色是采用了传统的本土材料,比如主结构和轻质框架外壳中用到的松木,以及铺地用的栗木;同时建筑还拥有极高的热工性能和气密性,包含了低消耗空气热能和地热采暖的热工装置,以及受控机械通风系统。
因为这是用来租住的公共住宅,我们在项目伊始就认为节约尽可能多的与设备相关的能耗消费是必要的,因为这些都将由未来的租客承担。所以我们的最终目标是建造一栋在任何时候都开销合理的低耗能建筑,这栋建筑对能源的需求极少,远优于相关规范中设立的标准。
项目图纸
△首层平面图
△二层平面图
△三层平面图
△顶层(加建层)平面图
△建筑剖面图
项目信息
建筑师:Müller.Feijoo
面积:285m²
项目年份:2020
摄影师:Luis Díaz Díaz
厂家:Knauf,LIVOS,ROCKWOOL,Sika
主创建筑师:Estefanía Vázquez Müller. Roi Feijoo
客户:Instituto Galego de Vivenda e Solo. Xunta de Galicia
合作方:Xoán Carlos Malvárez, Roi Fdez. de la Gala
City:Orense
Country:西班牙

BIM建筑网























