在建筑师阿尔贝托·坎波·贝扎(Alberto Campo Baeza)获得2020年国家建筑奖之际,我们公布了他最著名、最具象征意义的项目之一,即格拉纳达储蓄银行(Granada)总部。该项目建成于近20年前。
这家储蓄银行是该地区最重要的银行,其总部位于城市郊区,由阿尔贝托·坎波(Alberto Campo)在赢得1992年的投标后,于2001年建成。
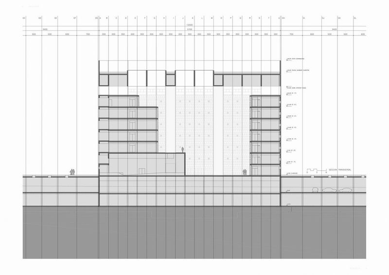
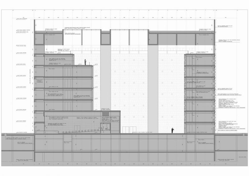
该项目是一个巨大的半立方体量,它被认为是解决城市区域紧张的参考案例。为了解决场地的坡度和底层的水平问题,建筑师选择在与场地相邻的两条道路之间建立了一个大的平台,立方体部分就坐落在这一平台上。建筑两侧设有两个庭院。
停车场、庭院和银行主体都在一个平台上。在平台中央的建筑立方体中,设有七层办公室。
两个朝南的立面就像遮阳板一样,照亮了开放的办公区域,为这种强烈的光线增添了色彩。北面的两个立面,通过一面水平条带的石头和玻璃分隔,从玻璃透进来的均匀而连续的光照耀着各个办公室,这是这个方位的特色。
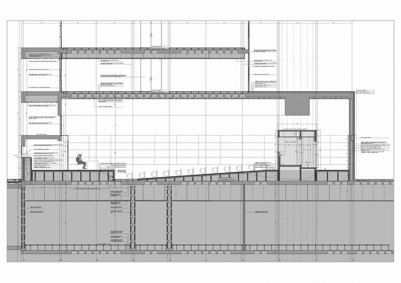
内部的中央庭院,真正的“光的场所”,通过天窗收集坚实的阳光,并将其反射到向南开放的雪花石膏墙壁上,提升了向北开放的办公室的照明亮度。屋顶由四根粗大的混凝土柱支撑。该建筑在功能设计上十分简单、紧凑。
简而言之,它是一个由混凝土和石头制成的盒子,将阳光纳入内部,以映照“光的场所”这一主题。
项目模型
项目图纸
项目手绘图纸
项目信息
建筑师:Alberto Campo Baeza(阿尔贝托·坎波·贝扎)
设计团队:Felipe Samarán Saló(费利佩·萨马兰·萨罗);Ignacio Aguirre López(伊格纳西奥·阿吉雷·洛佩斯);Gonzalo Torcal(贡萨洛·托卡尔)
业主:Caja General de Ahorros de Granada.
工程:OHL (A. Padilla), LKS (F. Varela).
建筑面积:40.000 m².
设计及建造日期:1992年7月21日获得竞赛一等奖;1998年7月建造完成
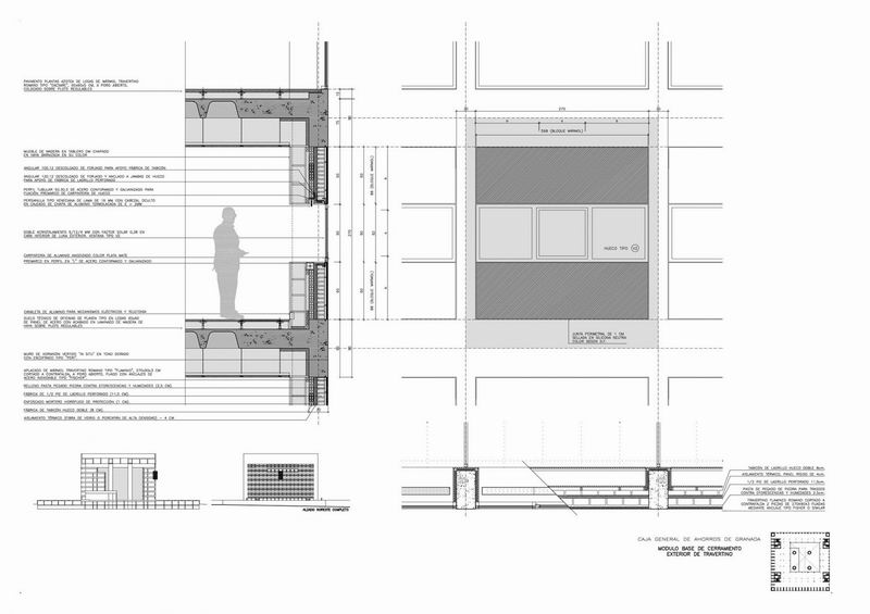
材料:Hormigón, Hierro, Vidrio, Piedra, Alabastro. Marco.- Rejilla de hormigón armado (caja estereotómica), rejilla de hierro (caja tectónica).
项目地址:Carretera de Armilla s/n Granada, España.
摄影:Hisao Suzuki,Fernando Alda,Duccio Malagamba,Alberto Piovano,Roland Halbe.

BIM建筑网






































































