契机
2016年12月2号,世界工业设计大会在良渚工业设计小镇顺利开幕,国务院副总理马凯的亲临反映出中国社会对设计之于经济的价值有了更加深刻的认识。由于中方的重视和充足的资源投入,使得工业设计小镇被确定为该项国际交流会议的永久会址。同时运营部门需要为各国工业设计协会的常驻机构配套办公和展陈设施。本着就近选址、形成集合效应的原则,项目的基地被最终确定在工业设计小镇近旁的邱家坞村。
最初的直觉——山下村庄
豕山脚下,邱家坞是一座随着城市化进程日渐空巢化的城郊村庄。寺庙是村庄的核心,站在庙前的广场可以俯瞰村前的水塘稻田。琉璃瓦、瓷砖、白色塑钢窗,东西方混用的装饰、水泥小路,这是典型的90年代营建的浙东村庄的面貌。在那个年代田园炊烟是落后的印记,小砖楼才能代表美好的生活。
场地由南侧的水面向北侧的山体逐渐升高,建筑上下错落的落座其上。设计应该顺应地势并将这种变化演绎得更加清晰可识别,通过建筑屋面不同的朝向进行组合,使得单体上可以辨识出一种自发的意识,整体上具有秩序的谐性,这是山下村庄应有的印象,是第一次来到时我们对这块场地最初的直觉,也应该是项目最终完成时的状态。设计所谓的“招式”和“力道”都要一次次回到这个源头被检验,摒弃“非分的想法”,留下“对土地的忠诚”。
营园造馆——拥有27座博物馆的无界园林
建筑的砌体结构,在那个年代是不会考虑构造柱和圈梁的,再加上没有施工图纸的留档,保留改造已经不再现实。但是原有的自发性的布局状态却有极大的借鉴价值。在原始建筑布局的基础上,梳理出足够的空隙,依照层层抬高的场地标高,放置成组的建筑,原有的道路结构依照地形的高差起伏,具有充分的实用性,参考道路骨架和原始图底提示,整理出27个入住机构的独立院落,成组的建筑围合出各自的内部小庭院,这样的空隙调和疏密关系,在有限的空间资源中有的放矢地构建内与外、庭院与巷道、中心与均质群组的关系。
基于安全运营的考虑,业主希望每个机构的院落都有自己独立的围墙和出入口。这固然是担心价值不菲的展品和工作人员的安全,但是闭合的围墙岂不是将每个院子变成了古代了的里坊,在项目客观需要的密度下,带来死寂的气氛。所以我们极力说服业主放弃这种基于安全的单维管理观念,进而采取更加公共性方式,打破每个机构独立运营的思路,将27个院子当成一个完整的工业设计博物馆来思考。
墙的形态和意义得到发展。围墙一方面是形成基础性的有界院落单元标识。另一方面彻底打破连接地面和自身水平方向上的闭合性。围墙被打破闭合后,虽然还位于四边经纬垂直,却可以成为或疏导,或遮罩,或框景的引线,牵引人们的脚步和视线穿过一座座院子,畅游在无界的园境中。每一座小玻璃博物馆不在彼此孤立,融合成拥有27做座博物馆的开放园林。
空间原型——封闭与开放的极限二分
功能是以界定最主要的一组二元关系——封闭与开放来进行组织的。场地的客观密度与村落形态的图底关系使得每组院落最适合放入两座房子。由此,封闭与开放性的空间可以实现极限的分离。开放性的展示功能,由核心筒式的高层建筑范式赋形,伞装结构悬挑出无柱的连续空间。分离出的封闭性的辅助功能,由民居宅形范式赋形,保障办公和临时居住的私密性。这样戏剧性的并置为原本规模有限的院落单元带来了空间张力,纯粹的无柱玻璃盒子与民居在一开一合之间实现了展览与非展览功能的效率安置。
伞状的核心筒单元可以进行水平和垂直组合,民居形态的建筑通过坡屋面的组合实现了两种标准的面积类型,这种模数化的思路便于灵活的调整展示功能的单层面积大小和层数,以适应不同规模机构的使用需求。
建构转译——形的意义与当代营造
建筑形式元素经过漫长的发展,可以脱离原初的建造实用性而注入文化审美的惯性。这些符号可以轻而易举的将设计所要营造的气质精确的生发出来。谈到承载着江南、乡土、村庄这些意义集合的建筑语言,坡屋面、山墙、屋檐、院墙就会脱口而出。但是直接抄写式的引用它们会与现在的建造方式相矛盾。“原汁原味”的土法在当下更是代价高昂的,带来的结果也与工业设计的主题格格不入。为此设计明确了一个重要原则:用历史原型的意义来传达,用当时当下的体系来营造。
坡屋面:通过坡屋面的组合设大小两种面积的“老房子”。金属型材架空在屋面上,可以起到很好的遮阳效果,与隔热层配合有效的降低了屋面的热负荷。通长的金属型材取代瓦的肌理,带来了精致的笔挺感,型材向外悬挑,屋面更加轻盈飘飞。
山墙:半空悬挂的山墙简化了风火山墙的顶部变化,使用长达2.1m板幅的聚碳酸酯版拼接,中间空有间隙。板材乳白微反射的质感,轻盈朦胧地映射周边的建筑和草木,调解紧凑的外部空间,带来白与影的节奏。模仿砖作的肌理借助砌筑的意向在端头由疏到密镂空。
披檐:一反以往的传统建筑披檐为了遮挡所带来的厚重、不透光的特点,重新设计的披檐采用U型直立锁边聚碳酸酯版作为底面。铝筒瓦从平铺到扬起依次向下排开,通过金属檩条上的垫块调整角度。阳光穿过金属瓦与檩条的间隙,透过透明的披檐板,在墙面撒下影影绰绰的斑驳,进一步让室外空间气息通透。
相对较小的“老房子”没有舒展的立面,多层的披檐为此简化为几片飘板飞檐的组合,与阳台立面连为一体。仰望时仿佛是层叠错落的屋宇,远观时仿佛是竹竿撑起的木窗,耐候钢板的质感则让飞檐更加古朴。
院墙:院墙与地面脱开,用宽幅白色铝板编织出肌理,背面是镀塑金属网以便日后植物攀爬。缝隙肌理类似砖墙的砌筑感,虽然纯白,却也多了几分手工的温度。
材料书写的时空线索
邱家坞村距离5000年良渚遗址核心区只有7公里,这些关联于远古历史的隐含信息需要得到表达。项目的功能内核是展示,工业设计则体现了现代社会条件下的生产方式。原始的造物机制与现代的造物机制,这两条时空线索需要以材料的方式在建筑上呈现。居住的私密功能延伸的民居宅形粉刷以夯土涂料面层,展示的玻璃橱窗用清水混凝土一体浇筑的变截面伞装结构支撑。远古的遗迹、乡村民房、现代建筑都借由夯土与清水混凝土的对比,实现了穿越时空的对话。良渚文明玉器的意向隐喻为聚碳酸酯板山墙和白色铝板编织院墙,透明檐板、金属檩条、铝质筒瓦采取取形替材额方式,在当下的工艺条件下呈现出传承的美感。形的理式由历史创造,构造他们血肉的质料被用来在现代材料建构体系下书写场地历史变迁和营造系统演化的时空线索。结构与空间关系也材料统一,最终附载于夯土所代表的剪力墙和清水混凝土所代表的的核心筒上。邱家坞依然是忠诚于这片土地的山下村庄,让进驻的外国设计机构工作人员感受当代性的东方语言。
设计图纸
△ 总平面图
△ A2型平面图
△ A2型立面、剖面图
△ A3型平面图
△ A3型立面、剖面图
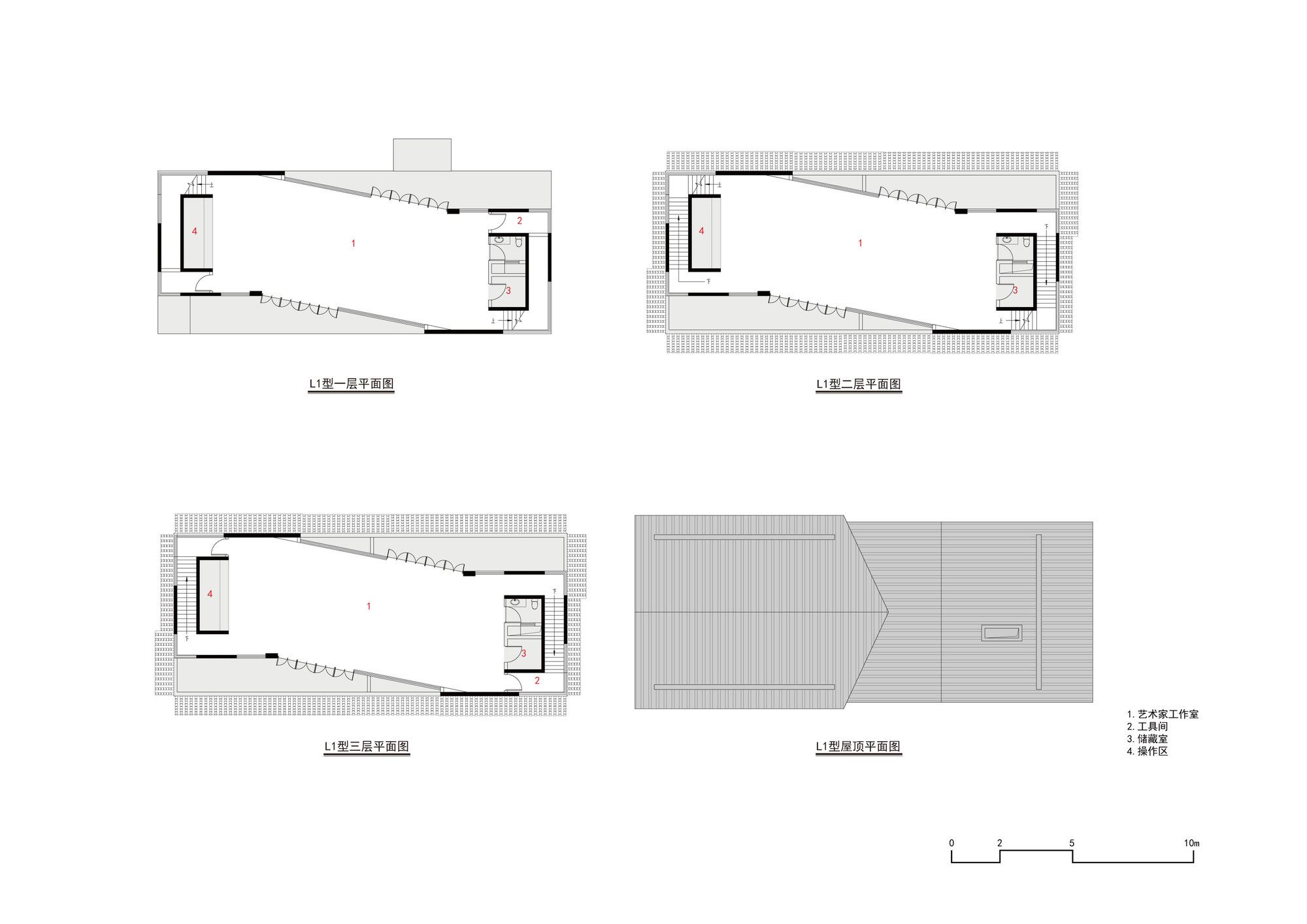
△ L1型平面图
△ L1型立面、剖面图
△ L2型平面图
△ L2型立面、剖面图
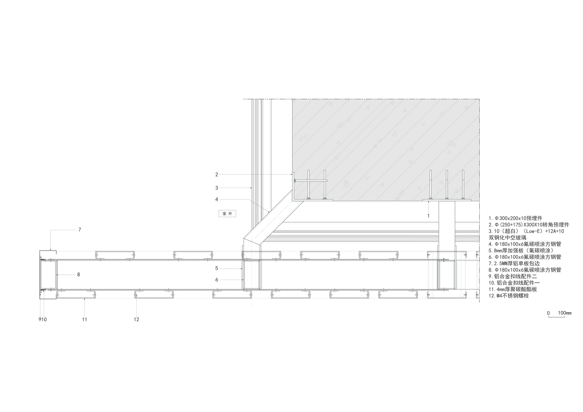
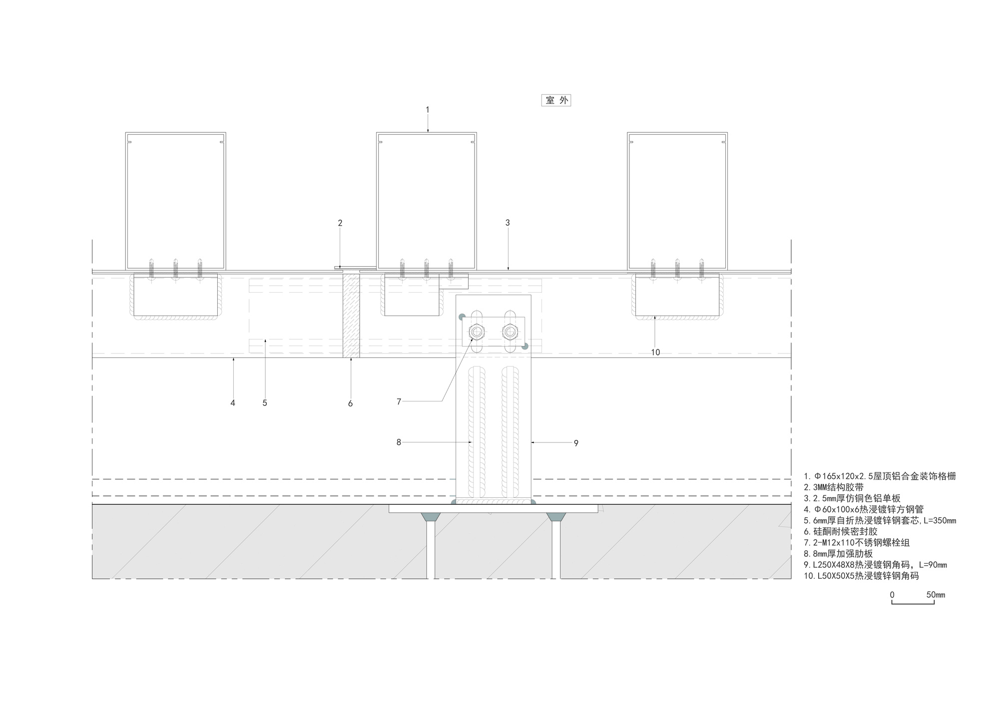
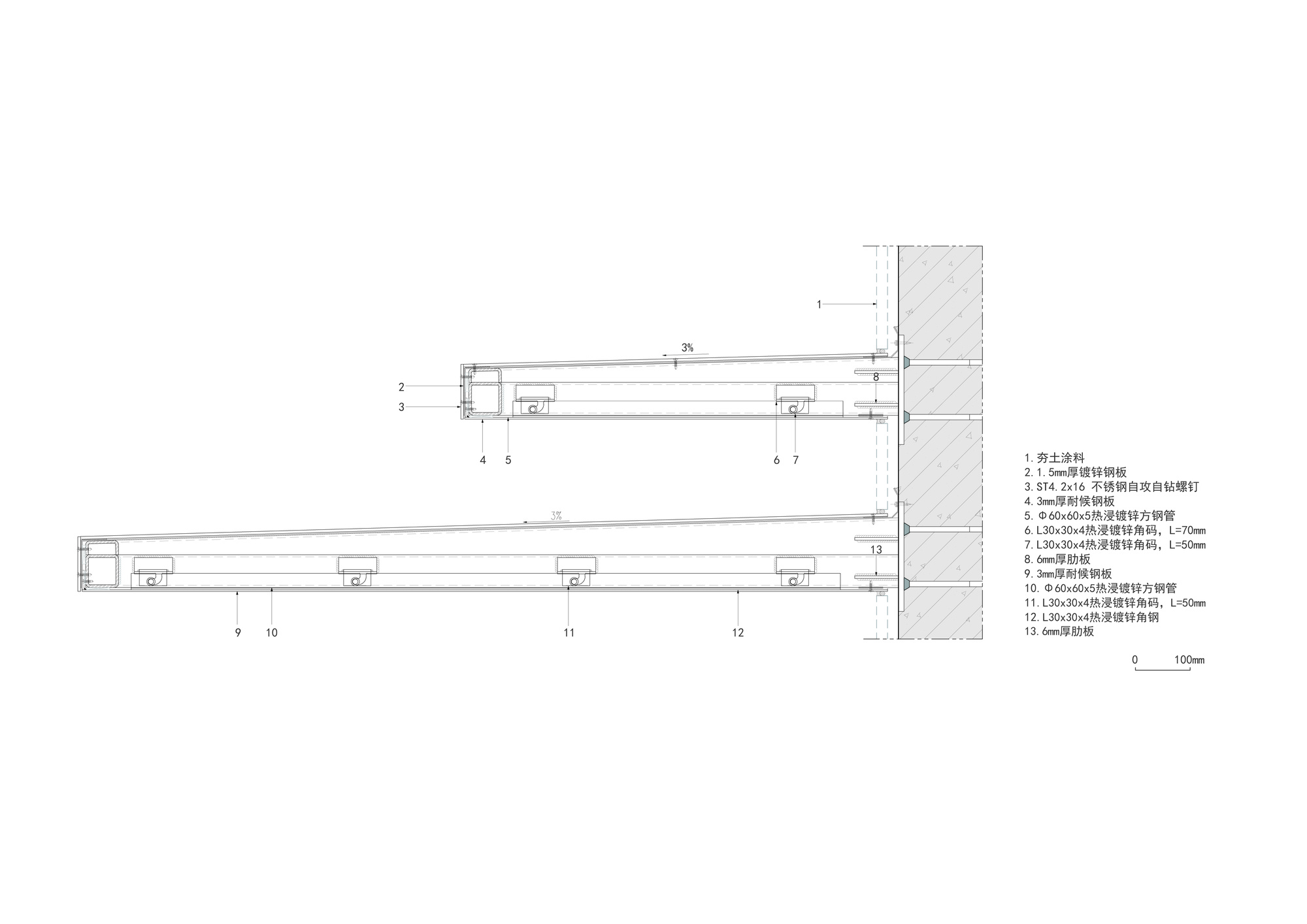
△ 节点1
△ 节点2
△ 节点3
△ 节点4
△ 节点5
△ 节点6
△ 节点7
△ 节点8
项目信息
项目类型:更新项目
项目地点:杭州,中国
设计方:中联·左右建筑
面积:20298m²
项目年份:2019
摄影师:章鱼见筑
主创建筑师:方晔
设计团队:王任、郦波、李盈、徐涛
委托方:良渚街道管理委员会
室内:段晓东
幕墙:吴卫
景观:朱靖

BIM建筑网
















































