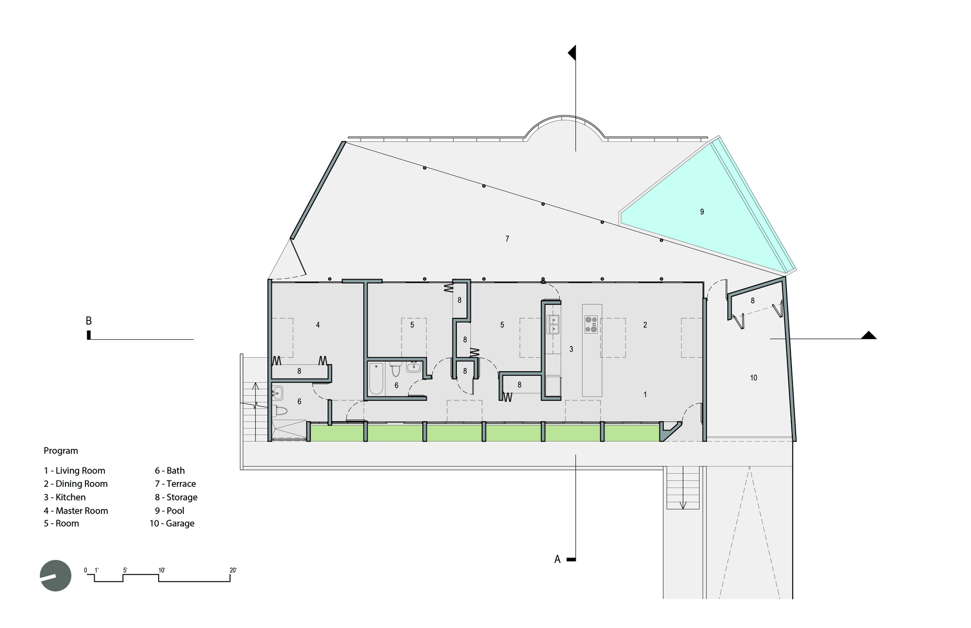
住宅位于波多黎各东南海岸郊区,其设计主要基于以下理念:房屋在远离郊区街道的一侧是内向的,而在东边面向大海的一侧是外向的。因此,建筑结构呈现出不同层次,从定义立面的白墙到由细长钢柱支撑屋顶定义的开放空间。房屋下沉半层,以进一步实现该目标并适应场地高差。
住宅采用被动通风和照明方式。为了实现这一目标,正立面也以“热气烟囱”为特征,同时可兼作天窗。这些元素与盛行风向相反,以产生使空气连续循环的吸气效果,同时照亮室内空间。
住宅位于飓风玛利亚在波多黎各的登陆地附近。为了免受此类破坏性气候事件的影响,在窗户外侧和部分露台上安装了像窗帘一样易收缩耐飓风的帆布状材料。在某种程度上,当它们关闭时,仿佛是艺术家Christo的作品,完全封闭并定义空间和形式。
这种材料也使光线温和渗透进室内。通常,飓风百叶窗在许多建筑中是不受欢迎的构件。该解决方案将此元素作为主要建筑空间表现的组成部分。
住宅采用绝缘混凝土系统(GCT)建造,具有较高的热阻,这使建筑制冷设备极为高效。在波多黎各的热带环境中,大多数混凝土结构都不设保温措施,因此极高热量可由此传递。房屋所用石膏是一种结构砂浆,在墙内包含连续的保温层。地板由抛光裸露混凝土制成,由于在此气候下无需保温,是唯一不设保温层的结构元素。住宅布局紧凑,但仍感觉宽敞,部分原因是因为空间向露台开放,鼓励户外生活,并将住宅与外部连接起来。露台上的小型无边泳池将远景与地平线相连,将海洋连接进房屋内部,另外还可兼作蓄水池。
△ 平面图
△ 平面图
△ 立面图
△ 剖面图A
△ 剖面图B
项目信息
项目类型:独立住宅
项目地点:NAGUABO,波多黎各
设计方:FUSTER + Architects
面积:2915m²
项目年份:2020
摄影师:Jaime Navarro
厂家:AutoDesk,Ecológica Carmelo
主创建筑师:Nataniel Fúster
设计团队:Heather Crichfield, Luis R. Albaladejo, José Pagán
客户:Carlos Flores
工程师:José Green
顾问:Rafael Parés, Taller 34, Inc & Redcon Construction

BIM建筑网




















