△ 综合楼西北角 ©苏圣亮
唯一布局
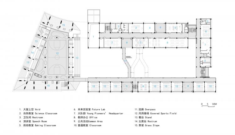
高安路第一小学华展校区位于上海市徐汇区龙吴路和华展东路交叉口,是一座40班规模的新建小学。用地紧凑,容积率达1.4。在这块东西狭长的场地上,200米田径场只适合放在西部,也正好可以阻隔龙吴路干道的交通噪声,再结合退界、消防、日照和噪音间距等技术规范,主要教学用房只能在东部布置为前后两排体量,综合楼则位居操场和教学区之间,容纳多功能厅、风雨操场、体育馆等活动空间。
△ 总平面图
面积指标、场地局限与技术规范的叠加,使建筑的总体布局被固化,几无变化腾挪的余地。操场规模和绿化活动场地的缩减,使日常教育活动越来越局限在标准化的教室之内,走廊、楼梯往往只能解决单一的交通需求——这些现实使建筑师从一开始就对此可能导致的僵化充满忧虑。于是,如何在这几乎“唯一解”的布局中营造生动活泼的育人空间,就成为设计上最困难、也最有意义的挑战。
△ 南侧鸟瞰 ©苏圣亮
围合与通透
在紧凑的总体布局中,四、五层高的建筑组合很容易形成封闭的围合空间,需要通过局部的开放来改善校园的整体环境。我们将建筑体分为东南西北四个部分,在它们之间设置通道和楼梯,让师生在经过时能够看到校园内外不同空间的景致;综合楼隔断了操场和中心庭院,我们就将体育馆上抬,将小剧场下沉,四边放坡做为绿化和面向操场的看台,以地景的方式缓解综合楼体量的压力,并在二层形成了风雨操场。
△ 设计概念
△ 西侧鸟瞰 ©苏圣亮
这个架空的半户外空间在垂直方向上和体育馆中庭联通,在水平方向上与操场和中心庭院贯连;中心庭院的狭长会产生逼仄感,我们增加了通透的连桥,在加强南北联系之余改变了庭院的比例,给这片树林绿地增添了空间的层次——藉由这些通透化的设计策略,我们在中心庭院与周边空间以及校外环境之间建立了层次分明的联系,扩大了校园环境的尺度感受。
△ 庭院与桁架桥 ©苏圣亮
△ 庭院与桁架桥 ©苏圣亮
△ 桁架桥 ©苏圣亮
预制结构与空间秩序
综合楼的体育馆和风雨操场均为大跨空间,为满足预制率和减少结构高度,主体采用钢框架结构,二层采用钢骨剪力墙来实现架空。倒梯形的剪力墙在底部内收,帮助打开操场看台的视野,并凸显了上部建筑的悬浮感。
△ 综合楼西立面 ©苏圣亮
△ 风雨操场 ©苏圣亮
剪力墙上不断变化的“光圈”洞口化解了墙体的沉闷,增添了穿透对视的乐趣。
△ 综合楼中庭 ©苏圣亮
△ 综合楼剪力墙洞口 ©苏圣亮
高安路一小是姚明的母校,校方对三层的室内体育馆十分关注,我们没有采用通常的桁架或网架结构,而是用钢柱上部的斜撑辅助800mm高的钢梁完成了23米的跨度,再进一步运用斜撑形成的三角区域,营造了通风采光的半透空间,给这座结构骨骼露明的体育馆注入了精神的光辉。
△ 体育馆内景 ©苏圣亮
为控制整体造价,教学楼和办公楼的混凝土框架结构采用了预制和现浇结合的方式。与普通的预制体系相比,我们进行了三处新的尝试。
△ 教学楼外走廊立面 ©苏圣亮
一是用悬挑支撑南侧单排教室的外廊,以获得走廊空间与庭院之间的自由界面,其导致的单跨问题通过在进深跨中增加剪力片墙予以解决。
△ 教学楼外走廊 ©苏圣亮
二是通过采用预制钢筋混凝土槽型板,取消了次梁和大部分吊顶,电管线和大堂的喷淋支管都得以在槽型板中行走,使7.5m x 9m的教室单元获得了最大的净高和空间的完整性。
△ 未来实验室 ©苏圣亮
三是在进深方向放大了预制钢筋混凝土梁柱的结合部,在改善梁柱交接点配筋和现浇条件的同时,用半拱形的放大柱头形成了塑造空间秩序的基本骨架,拱门框架的结构要素在校门、大堂、走廊、教室、小木屋、图书馆和体育馆中不断再现,成为空间赋形的母题。
△ 大堂 ©苏圣亮
通过对结构体系和预制单元的精心处理,我们获得了简洁、规则又富有层次的空间秩序,这些秩序一方面满足了各种教学空间的规范性要求,一方面又增加了单元空间的弹性,让我们能够为这所小学注入更多的灵性。
身心与触发
在与校方的深入交流中,我们深切感受到学校对教学空间和交流空间多元化、差异化的需求,这与我们探求教育空间精神的愿景不谋而合。为了鼓励多元化的教育方式和社交生态,我们从结构秩序出发,用建筑的手段激发这两种习惯的养成,并对新的空间类型进行探索,为素质教育提供更多的空间支撑。
在教室单元里,用半拱形柱头相连的梁柱框架强调了教室的方向性,给老师和智能黑板提供了“景框”,帮助学生养成专注前方的习惯。无次梁槽型楼板形成的整体天花、南北两侧对称设置的窗扇、以及前后门与空调机的对位布置,一起协助结构赋予空间安定的秩序,并给教室带来了均匀温润的光线。
△ 普通教室 ©苏圣亮
在有限的建筑面积里,交通空间的独特体验和多义化能够帮助我们激活固化的秩序,综合楼的绳索楼梯、变形缝楼梯的色彩区分、以及南北楼之间用曲折连廊构成的立体庭院,都是这一手法的体现。
△ 综合楼楼梯 ©苏圣亮
△ 变形缝楼梯 ©周延
△ 教学楼北楼灰空间 ©苏圣亮
△ 走廊与桁架桥 ©苏圣亮
在走廊空间,半拱形悬挑结构给外立面留下了自由的空间,我们用钢龙骨、金属网和胶合木在走廊外侧编织了一道半通透的墙体,不仅容纳了防护网和消火栓,还整合了座凳和阅读栏板,同走廊内侧的书包柜和长椅一起成为走廊空间里的固定家具,用触发的方式鼓励师生并接触庭院里的自然,并使用这些家具进行休憩、阅读、交谈、玩乐的活动,给走廊赋予了更多的空间内涵。
△ 教学楼外走廊 ©苏圣亮
△ 教学楼外走廊 ©苏圣亮
我们还在每个教学楼层置入了多功能的半户外“小木屋”,并配备了饮水机、操作台和智能书架等设施。“小木屋”不仅为课间休息提供了本层就近的玩耍场地,还可以成为半户外的选修课堂和聚会空间。这一新的空间类型既非固定教室,也非交通空间,而更像是植入建筑中的半户外庭院,为校园增添了多元化教育和社交的可能,在未来等待着学校的进一步策划和装点。
△ 教学楼外走廊 ©苏圣亮
△ 顶层小木屋空间 ©苏圣亮
秩序的启迪
教育体制、规划用地和技术规范共同形成了学校建筑的社会秩序。通过深入解读,我们尝试把这些约束性秩序转化为建筑本体的力量,给这所小学校园注入更多身心的关怀、专注的精神和交流的活力。希望藉由各方的共同努力,留在学生记忆里的校园不仅是教室里的专心致志和操场上的整齐队列,还有体育馆里移动的阳光、小木屋里的自由演说、和在走廊里拿起书本面向树林的那一刻。
△ 教学楼外走廊 ©祝晓峰
△ 北侧沿河外观 ©苏圣亮
△ 北侧沿路外观 ©苏圣亮
△ 北侧外立面 ©苏圣亮
△ 教学楼北楼中走廊 ©苏圣亮
△ 校园主入口 ©苏圣亮
△ 轴测图
△ 一层平面图
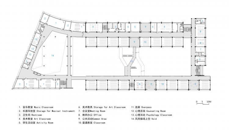
△ 二层平面图
△ 三层平面图
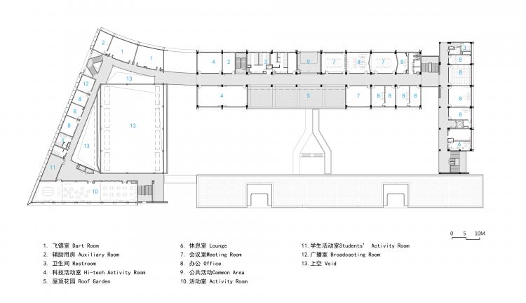
△ 四层平面图
△ 五层平面图
△ 剖面图1
△ 剖面图2
△ 剖面图3
△ 综合楼结构
△ 教学楼结构
△ 教室外墙详图
△ 外走廊节点详图
△ 剖透视
项目信息
设计单位:山水秀建筑事务所
设计团队:祝晓峰、李启同、周延、张璇、张国浩、胡仙梅、许林峰
赫然(实习生)、黄春铃(实习生)
项目地点:上海市徐汇区
项目功能:小学
设计/建成时间:2017/2020
基地面积:17645平米
建筑面积:30406平米(地上24392平米,地下6014平米)
合作设计单位:同济大学建筑设计研究院集团有限公司
施工总包:上海徐房建筑实业公司
监理单位:上海上咨建设工程咨询有限公司
业主:上海市徐汇区教育局/上海徐汇城市更新工程咨询有限公司
结构形式:教学楼和办公楼:预制混凝土框架结构;综合楼:混凝土剪力墙支撑钢框架结构
建筑材料:素混凝土保护剂、质感涂料、木色、彩色及灰色铝板、彩色、白色及深灰色穿孔铝板、木纹水泥纤维板、超白中空LOW-E玻璃、半透明及彩色玻璃砖、木色及深灰色铝合金窗框、铝方通吊顶、白色扩张铝板吊顶、浅灰色水磨石地砖、木纹地砖、木色扁钢栏杆、实木及木色铝合金扶手、芝麻灰花岗石板、不锈钢网帘、胶合实木座椅及阅读架
摄影:苏圣亮

BIM建筑网


















































