受到如何在后现代城市扩张中适应热带气候这一问题的启发,来自RAD+ar的建筑师着眼于基本自然采光手段的非常规设计,并用自然采光实验室住宅项目作为试验田展开实践和讨论。
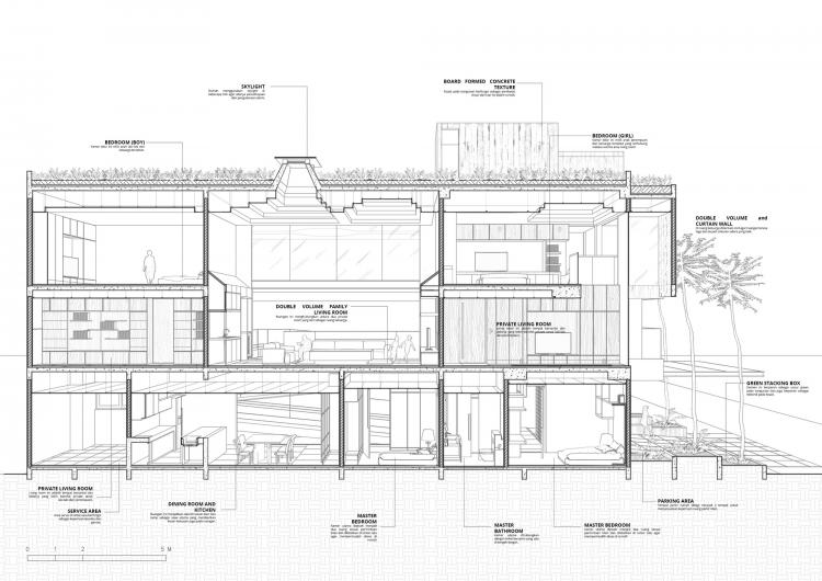
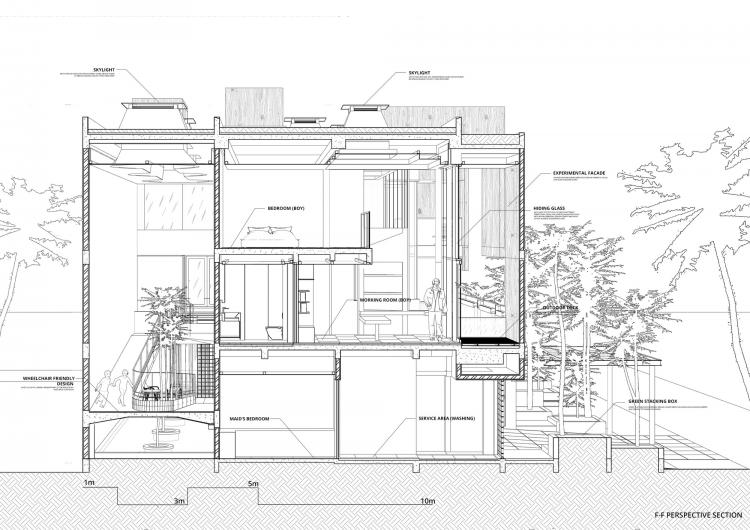
自然采光实验室住宅可以看作一个空间原型,它体现了设计师对环境问题的基本想法,同时也简述建筑的空间布置。设计目标是在不依赖人工设备的前提下,降低室内微气候4摄氏度,同时在所有窗户关闭的情况下保持室内空气湿度和空气流速。
项目中多个相互交叠的间隔空间保证了自然通风的顺利进行。平缓的坡道被用于竖向交通和室内自然通风。坡道底部的倒映池与顶部三角形铝制天窗为空气流动提供了条件,因此该区域也被用做一个通风井,自然气流保证了热空气24小时连续不断地放出水汽并通过顶部的天窗排出。
在室内外表皮的设计过程中,设计师采用了一系列极端手段,不仅使每年直射入室内的阳光降到最少,同时也通过对开窗角度的控制,最大程度地确保了空间的隐私性与窗外景观的可观赏性。建筑四周的表皮可被看作是太阳热辐射双层缓冲层的第一层,阳光进入任何窗口之前都会先经过这个表面,它阻隔了阳光,减少了进入居住空间的热量。建筑表皮由混凝土构成,表面留有木质模版的纹理。
粗野主义的建筑表面像一块画布,阴影与肆意生长的植物之间的游戏在这块画布上创造出了不断变化的建筑表皮。
室内剪力墙为各种尺度的过渡空间提供了缓冲。过渡空间被植物分隔成一个从半私密到私密的空间序列。
阳台和游泳池被嵌入建筑主体而不是向外突出。这种空间减法使建筑物在入口处投下一片阴影,并为使用者提供了一个全景视角去欣赏郁郁葱葱的花园,同时考虑了隐私性,巧妙地规避了从室外投来的视线。
绿色屋顶最大限度地收集了雨水并将其用于灌溉,同时也减少了由混凝土释放到房间内的热量。屋顶和天窗相结合,每两个房间有3个30×30厘米的天窗开口,开口呈锥形。天窗使每个房间的日间平均光照达到300lux,确保了白天室内不需要添加人工采光。
房屋入口向坡道开放。太阳东升西落带来的光影效果在坡道上得到体现,创造出全年24小时不断变化的空间体验,坡道在被用作家庭画廊的同时也指向一个非正式起居空间。它直接通向游泳池,并将对面花园的景色引入室内。起居室也被作为两个主卧之间的空间屏障,起到缓冲中和的作用。
这些手法突出了设计师打破传统住宅空间分布的设计意图。室内空间的构建得益于正对面花园提供的双重自然光源以及墙中段的水平狭长开口,这样的设计赋予了室内空间庇护所的气质特征。来自RAD + ar的建筑师启发了对环境问题的思考,在自然采光实验室住宅项目中,空气没有被束缚在室内,而是自由地在各处流动。
自然采光实验室住宅旨在成为一个简单的空间原型,探讨如何在不过分依赖人工采光的情况下,通过自然采光创造出具有可行性的、舒适宜人的室内环境。在当下无序的城市化进程中,城市住宅的活力仿佛被抑制了,并逐渐被孤立,从与周围环境的友好共生的关系中脱离出来。为了唤醒城市面对现有的种种问题,RAD + ar 将该项目最为其提出的解决方案。它为大多数人创造一个可供居住的安全的避风港,同时从与环境和谐共生的角度,引导人们接纳与自然共存的生活方式,并适应热工学技术手段在现代建筑中的应用。
设计图纸
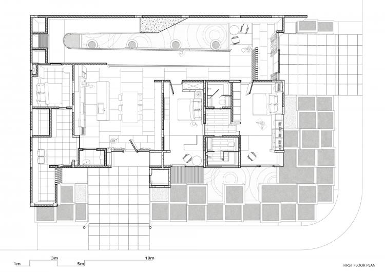
△ 一层平面图
△ 二层平面图
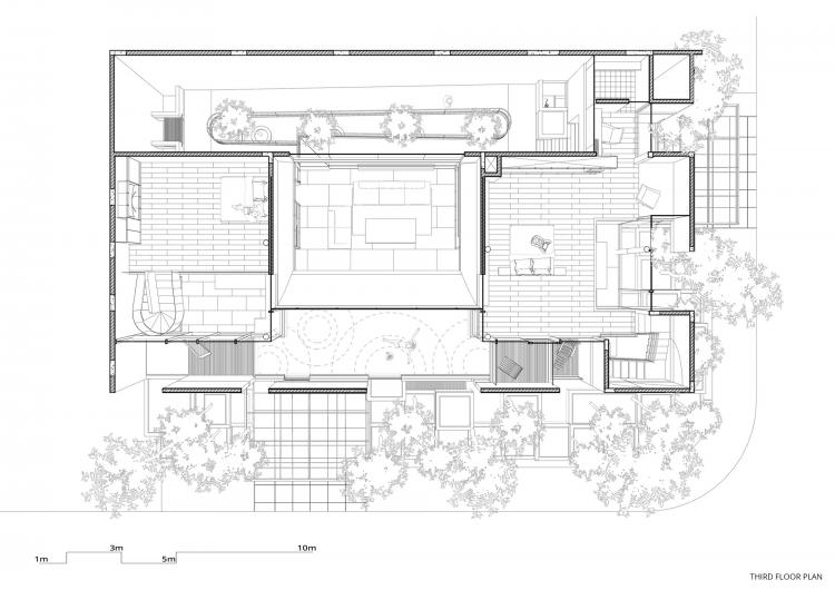
△ 三层平面图
△ 剖面图a
△ 剖面图b
△ 剖面图c
△ 剖面图d
△ 剖面图e
△ 分析图
△ 剖面分析
△ 模型分析
项目信息
项目类型:独立住宅
项目类型:KECAMATAN SERPONG UTARA,印度尼西亚
设计方:RAD+ar (Research Artistic Design + architecture)
面积:550m²
项目年份:2020
摄影师:William Sutanto
厂家:Toto,Technal,mulia glass,venuz mozaic
主创建筑师:Antonius Richard
设计团队:RAD+ar (Research Artistic Design + architecture)
高级建筑师:Leviandri
创始合伙人:Partogi Pandiangan
建筑设计师:Felda Zakri

BIM建筑网





































