Risch住宅位于一个进出受管制的住宅区内的角落地段。这是一个五口之家的房子。这个房子在尊重住宅小区准则的同时,整合了未来居民的大部分期望。同时,我们提出了一个控制建筑成本和时间的策略。
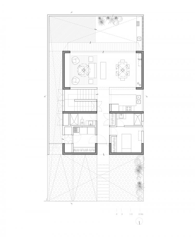
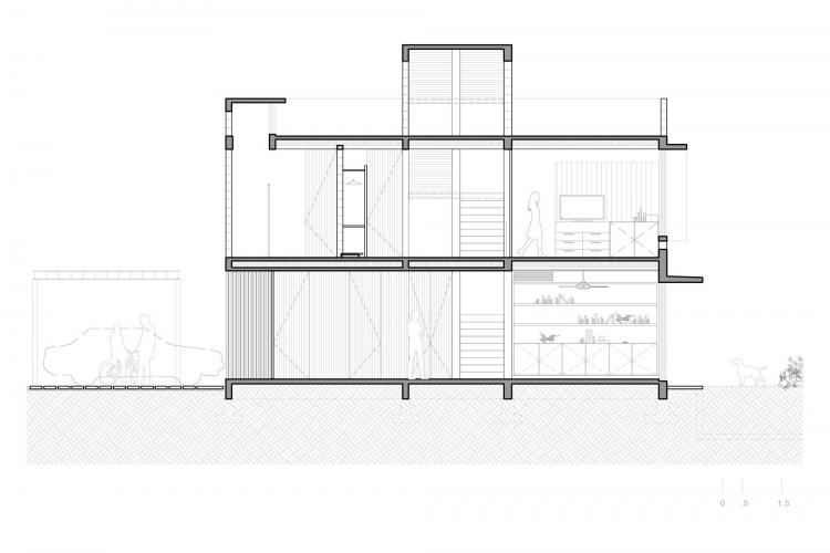
为了避免温和的环境和保护其免受雨水和阳光的影响,房子是对外是封闭的,但决定将其开放给地块内部,从而为所有区域提供自然光和照明。
由于其简单的结构,该房屋允许通过贯穿地块宽边的滑动板将花园与起居/餐厅融为一体,这样做提供了空间上的连续性,从而消除了房屋与花园之间的界限。
紧凑的家居理念,整合了简单的材料、高效的建造技术和简便的维护能力,造就了一个集实用、低调、朴实为一体的建筑对象。
△ 一层平面图
△ 二层平面图
△ 三层平面图
△ 立面图1
△ 立面图2
△ 立面图3
△ 剖面图1
△ 剖面图2
△ 剖面图3
项目信息
项目类型:独立住宅
项目地点:CANCÚN,墨西哥
设计方:Kiltro Polaris Arquitectura
面积:180m²
项目年份:2020
摄影师:Cesar Bejar,Santiago Hayser
厂家:AutoDesk,BTicino,Cemex,Corev,Grupo Tenerife,RICASA,RICCETTI
Arquitectos A Cargo:Victor Ebergenyi Kelly
设计团队:Noe Urquijo, Valeria Villanueva, Yissel Alanis, Jimena Robles, Daniel Schondube
结构设计:PORDIMEX. Ing. Alfredo de la Cruz
微信公众号:xuebim
关注建筑行业BIM发展、研究建筑新技术,汇集建筑前沿信息!
← 微信扫一扫,关注我们+

BIM建筑网


























