2008年,由石上纯也设计的神奈川工科大学KAIT工坊落成。同年,其工作室被邀请毗邻KAIT工坊设计一座“通用型的”半户外广场,作为KAIT工坊的辅助空间。于是石上纯也开始思考“通用”的定义,基于校园的整体环境,探索半户外空间的概念。
由于KAIT校区内缺乏供学生度过闲暇时光的场所,石上纯也选择设计一个通用型的空间,以提供不同的使用方式。例如,学生可以坐在广场地面聊天、吃饭甚至躺下小睡一会儿。该空间也可以在体育赛事前作为运动员的舒展活动空间,甚至成为大学在各种节日活动期间的物品展览空间。小货摊也可以进驻,将广场转变为一处活跃的市场。
广场空间重点关注学生在这里该如何度过闲暇时光,而不是指定性的空间,尤其在关于该如何使用空间上。石上纯也解释道,当设计重点放在如何使用设定的空间时,那么设计的重点就只是要实现某种目的。但是当设计重点放在如何度过时光上时,空间设计的重点就转变成了身体的体验——尽管某种松弛的目的性依然存在。
场地周围是高大的教学楼,缺乏多样化的景观。因此,石上纯也将场地周边的环境特点与广场元素结合起来:与建筑结合,创造一处给予人灵感的“soto”。在日本,“soto”意为“外部”或“其它”,与“uchi”相反,“uchi”意为“内部”。
广场被设想为一处随着季节和天气变化而微膨胀的广阔的景观。空间被渗透进一种开放感,让使用者不会有建筑的禁闭感,而是沉浸于一种宁静、放松的环境之中。石上纯也将广场建筑景观化,建筑巨大的弯曲屋面构成形式就像大地与天空之间的界限——地平线。
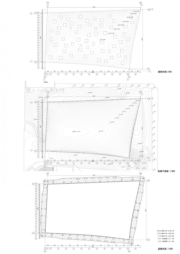
尽管屋顶占据了整个场地,但建筑利用了地块与校园其它部分之间的2米(6英尺)高差的优势。广场屋面天花的高度保持尽可能低,使建筑消隐于场地之中。巨大的铁质屋顶下未设柱子,而是依靠广场周边的四面墙支撑。弯曲的屋面与深入墙体凹陷处的地面平行。这两种元素在远处融为一体,形成空间内部的地平线。
与云层在地面的效果相似,低矮的天花为广场四周引入了自然光线,而其它区域的采光则较少。空间光影随着一天之中时间的推移和特殊天气而变化。屋顶共有59处开口,所有的开口都保持完全开放的状态。在雨天,雨水通过天花上的孔洞进入室内,形成雨柱,创造一种雾气朦胧的气氛。雨滴声在室内回响,落雨的场景进一步说明广场是一处不断变化的景观。
83根桩和54个地锚作为钢筋混凝土的一部分共同支撑起广场屋顶。该结构被描述为类似于悬索桥结构。屋顶的最大跨度约90米(295英尺),由于铁板的热胀冷缩,天花高度有约30厘米(1英尺)的变化幅度。尽管建筑的尺度很大、结构复杂,但它仍然有着人的尺度。天花的高度等同于住宅的高度,屋顶的厚度与家用家具的厚度相似。
为了减轻四面墙的荷载,屋顶外边缘进行了额外加固。地面采用了铺路用的具有渗透性的沥青。这种地表可以不断地吸收雨水,使其流入广场地下,保持地面干燥以舒适就坐。此外,此沥青地面可采用压力清洗,以彻底清除油漆。
身体与其所处环境的联系,而广场设计的起点则是人就坐的姿态。使用者来到广场,会脱掉他们的鞋子,自由地坐在地上,或躺在一处和缓的斜坡上。这样,身体和环境就产生了直接的联系,融入整体景观之中。
由于广场向环境开放,学生们能够坐下来感受微风轻拂,听雨滴落,放松身心,打发时光。石上纯也解释称,将地面和天花板融合到一起创造地平线的方式可带来空间细分和扩展的双重效应。在广场内部,人可以聚在一起感受凝聚感,或者找一处安静的隐秘角落,感受私密感。在神奈川工科大学广场项目中,石上纯也创造了一处新的“soto”景观,校园中的所有人被吸引至此,在开放的空间中聚会,放松身心。
△ 项目视频
△ 平面图
△平面图
△平面图
△剖面图
项目信息:
名称:神奈川工科大学广场
地点:神奈川,日本
建筑师:石上纯也建筑设计事务所
主创建筑师:石上纯也
项目团队:taeko abe, shuma tei, motosuke mandai, sachie morita, toru yamada, masayuki asami, federico lepredesign and construction years:2008-2020
业主:ikutoku gakuen/kanagawa institute of technology
结构设计:jun sato structural engineers
施工方:kajima corporation
总面积:4,109.78 sqm
摄影版权:junya.ishigami+associates

BIM建筑网

















