长江·和集
「和集」是方所集团针对城市街区中心的试验型文化品牌空间。由LAD(里德)设计机构改造设计的长江 ·和集今年8月已经开始试营业。
长江·和集位于合肥市长江中路17号,原安徽省省委大院东侧,由一幢三层的独立建筑构成。目前仅开放的两层空间,经营囊括简体中文、外文以及台版图书、杂志、咖啡、美学生活产品和服饰等多种业态。
而「和集」融合协调的精神注入,使得这里不仅是一家书店,而且是公共的文化空间、商业的美学空间以及当代城市生活方式的实验空间。
与其它一些被时间风化的记忆不同,不少人对长江中路——「安徽第一路」至今还有响亮的回忆:
嘉庆八年的这一条羊肠路,从被车轮轧出的深沟,到毛泽东乘敞篷车与10万市民挥手,再到早上还没开门营业门口的百米购物队伍⋯⋯
200多年的时间,长江中路由5米拓宽至25米,它的身背碾出庸碌、荣耀、诗酒或者渔樵。
这些由时间所产生的片段不会被我们抛弃,转而珍视为设计材料重叠媾和。
驯化空间的同时也是我们对时间的驯化,陌生而似曾相识的恍惚感最终创造了一个属于长江·和集的时间观。
然后,抚慰现时世界中如坐针毡扫视分秒所滋生的纷扰与焦虑,成为安放身心的一个去处。
闹市造梦
没有草木也可为园林
介入旧建筑空间时我们发现空间整体沉闷无趣,又存在多处的错落高差。
另一方面,书本或者商品终究是小的物件,我们需要空间对它们进行托举,重新构建「游览」的方式。
△ 旧建筑空间
在中国,园林是在闹市造一方自我天地。园林内的互动关系,就是人、建筑、光影、植物之间相互触动的情境。童寯道出了园林另一维度的诗意剧本:没有草木也可是园林。
同时,园林多为局部呈现,但环环咬合。游园的过程主动性并不固定在游园者,人们很有可能被景致所引诱而拾步,游园者与景物之间主动性的互换,有些游戏的意味。
△ 五峰仙馆用屏风分隔空间,类似深斋的空间体验,然气息流动,空间并不封闭
△ 《宋人十八学士图》,屏风置入庭院以作分割
于是我们临摹园林的逻辑,将大空间用园林的语法分隔成迂回曲折的小空间。
在这里你可以体会到被引导「游园」的路径,又可以自己作为主导,用眼睛牵引步伐移动,感受应接不暇的游走过程。
花园中的游客不仅是参与观察的人,而且是空间真正的创造者。这是一个相互作用的过程,在这个过程中,人与处所之间存在着一种流畅的情感对话。
《花园里的哲学》
「园林是三维的山水画」,园林的游走过程并非平面行为。
我们参考着游园时身体的起伏体验,放弃促的地方,汲取缓的部分,处理成呼吸平和的步径坡度。
人们在购物时,也会驻足形成不同的视点,而书墙、展示台、装置、洞口拥有着园林中建筑与山水之间的象征意义。
长江·和集彷彿是
通往知识之光的隧道
亚里士多德认为视觉是「人类最高贵的感觉」,观看被视为个体认识世界的重要方式。古希腊哲人经常会将清晰的视野与知识联系起来,而将真理比喻成光明。
对于光,我们在项目之始也做了预设,借鉴园林的「虽由人作,宛自天开」的造园观。
△ 自然灯光概念图
光是人们对美好事物总和的探求,而长江·和集彷彿是通往它的隧道。
帕拉斯玛说「一个好建筑必然能够通过材质、光影等形式激发人的多重感官,使我们感受到与这个世界的精神联系,感受到更完整的自我存在。」
于是这段缓慢而并不悠长的隧道,是人类思考自身与周遭世界的哲思之路,是知识本身。
△ 自然灯光概念图
我们由于施工周期的原因未能实施并不感到遗憾,畅想可以是现实,而无法成为现实亦获得纯粹畅想的珍贵。
用眼睛触摸
建筑便是可视的温暖
长江·和集是个不涉及立面的室内项目,整个暴露在外的建筑立面因为街道的统一性被要求不可改动。
△ 旧体建筑位于原安徽省省委大院东侧
而在此之前我们展开过对立面的设想:
硬质穿孔钢板消解了建筑体积,带来温和的包裹,质如宣纸。柔软的光线同时散布在旧建筑与新立面之中,形成新旧间的流动,而无可厚非,它们又是独立的。
从而我们把历史镶嵌起来并拥抱,眼睛用以触摸,建筑在这个时候彷彿是可视的温暖。
让我们能体验缓慢的时间流动
让城市看到并理解历史的径流
当造园者选中了一处宅地,挖池叠山辟径题咏,然后用围墙把它与外界隔绝,将自我世界与物质世界隔绝,然后构成自成一体的「微型宇宙」。
无疑,这方空间与时间都可以不必遵循客观法则。
LAD认为长江·和集的精神也体现在把时间的暧昧开放与不确定性揉杂,给许多不同含义留下开放的空间。
把我们从时间维度的束缚解放出来,我们便能体验缓慢的时间流动,让城市看到并理解历史的径流,超越个体的时间周期。
让长江·和集成为一直变化又未曾改变的时间诗歌。
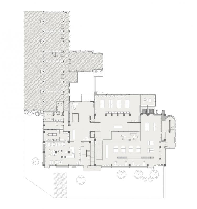
△ 一层平面图
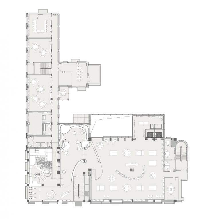
△ 二层平面图
项目信息
项目名称:长江·和集
设计方:LAD(里德)设计事务所
设计总监:李京烨
室内设计总监:曾莹
室内设计团队:李志华、梁敏珊、叶尉雄、黎建波
景观设计团队:叶原源
地点:安徽,合肥
面积:2591㎡
建成时间:2020年8月
摄影:WYAP文耀影像

BIM建筑网







































