△ 阳光下的树屋 ©刘晓俐
巢居
杭州开元森泊度假酒店位于萧山湘湖度假区,“树屋”属于其中的度假屋版块。树屋可能源于回归“巢居”的愿望。据《韩非子》记载,“上古之世,人民少而禽兽众,人民不胜禽兽虫蛇,有圣人作,构木为巢,以避群害”。原始的巢居后来成了一种避世隐居的隐喻,明代造园家计成在《园冶》中写道,“足征市隐,犹胜巢居。”拿到“树屋”这个命题作文以后,在推敲中我们形成了一个判断:最能强化巢居特征的并非独居,而是在树上的群居状态——“树梢之间的一堆小房子”作为最初的意象浮现出来。
△ 总体鸟瞰 ©刘晓俐
几何与自然之间
将抽象化的居住建筑原型进行堆叠的设计,无论在欧洲还是日本都有先例,但更偏于几何形体操作,空间体验也常局限于室内。基于这个项目的商业性质以及所处的山野环境,我们把设计的重点放在了抽象与形象、室内与室外、几何与自然之间的均衡状态。
因此“对偶与平衡”的手法贯穿于设计的各个方面。仿真的枯树干直接唤起了自然中的巢居意象,但避免枝繁叶茂的过度写实;坡屋顶基本不出檐,保持简洁的几何体特征,但每间都有阳台凸凹,原初的方案立面也呼应周围的林木葱茏;单体房间与自然树木相偎依,而形体的穿插关系又保留了一定的人工化状态。
△ 树屋手工模型渲染 ©WH studio
△ 山野间的树屋 ©刘晓俐
△ 树屋外观 ©刘晓俐
三种元素的交织:径、台、屋
树屋的体验是从“爬树”开始的,因此我们对室外路径和室外体验格外重视——迴转登高的路径犹如“攀爬”,不同高度的室外露台犹如可以停歇的“树杈”,而居室相当于树上的“果子”。
△ 攀登路径 ©刘晓俐
△ 攀登路径 ©刘晓俐
△ 树屋平台 ©刘晓俐
路径有斗折蛇行、忽明忽暗的空间体验,露台是舒适的室外活动空间。虽然每幢树屋都包含好几棵具有结构作用的仿真树,但在概念上它是由“路径-平台-房子”三种元素组成的“一棵大树”。
△ 路径与空间 ©刘晓俐
△ 路径与空间 ©刘晓俐
△ 路径与空间 ©刘晓俐
童话
考虑树屋的受众多为亲子家庭和年轻人群体,六个房间采用了两种造型:带凹阳台的双坡顶和带凸阳台的切角四坡顶,后者强化了一定的童话效果。
△ 树屋单体鸟瞰 ©刘晓俐
△ 树屋外观 ©刘晓俐
△ 树屋平台 ©刘晓俐
原方案中还有从平台到地面的滑梯增加童趣。当夜晚的灯光在树梢间亮起,“七个小矮人”的故事似乎即将登场。
△ 树屋夜景 ©刘晓俐
未完成
最终建成的6幢树屋受到了市场的热烈追捧,成了网红打卡点,树屋甚至被用在王菲拍摄的2021年新版广告的片头。然而对主创人员来说,仍有不少完成度方面的遗憾。施工中对单体立面的过度简化、窗的形态改变、滑梯取消等等,都让它的效果有所折损。
△ 树屋室内 ©CC
树屋的立意并不高深,它之所以吸引了各地慕名而来的游客,也许是因为它在抽象的同时仍然保持了贴近自然的形式,满足了人们返璞归真的心理需求。就像雷姆·库哈斯在《Content》一书中写的那句话,“How old what was modern looks. How fresh what is ancient”(现代是多么陈旧,原始是多么新鲜)。
△ 树屋平台 ©刘晓俐
△ 树屋近景 ©刘晓俐
△ 树屋近景 ©刘晓俐
△ 树屋施工过程 ©WCTG
△ 总体鸟瞰 ©刘晓俐
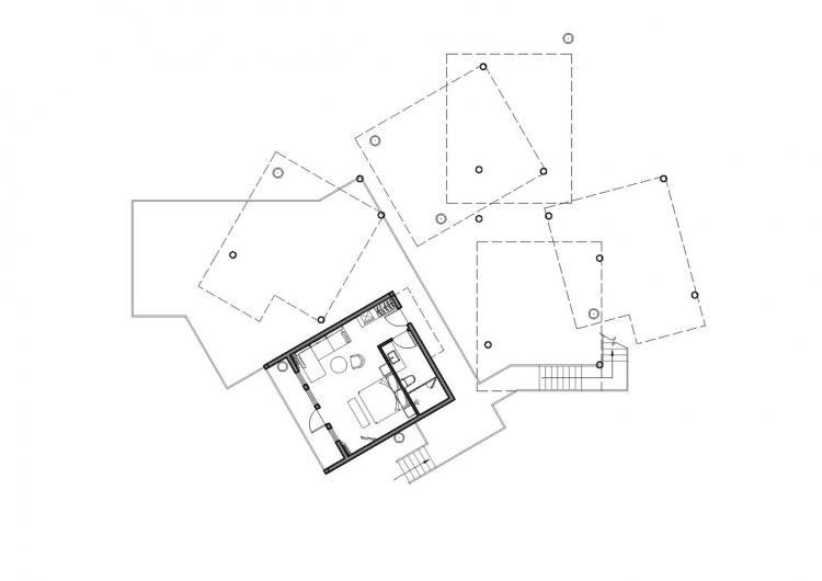
△ 平面图1
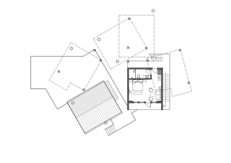
△ 平面图2
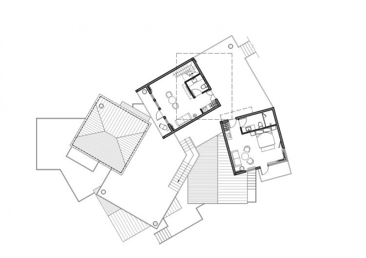
△ 平面图3
△ 平面图4
△ 平面图5
△ 立面图
△ 剖面图
项目信息
项目类型:酒店
项目地点:杭州,中国
设计方:王晖建筑工作室
面积:1750m²
项目年份:2019
摄影师:CC,WCTG
设计团队:Hui Wang, Rongrong Wang, Tianyi Qin
施工图团队:Wanzhang Cultural Tourism Group, Jianbo Guan, Min Huang, Xinfeng Xu, Huaqiang He
业主:Senbo Resort

BIM建筑网






























