上海芙睿文化传播PURE的设计部分支Metaphysical by Pure,为时尚生活方式品牌FiSN(Future iS Now)设计打造了沉浸式的零售体验,探索未来零售空间的新方向。
敬畏自然,是FiSN品牌理念的根基。PURE 决意用自然的能量,以可持续的方式探索室内与室外、自然生机和城市工业的新平衡。
整个空间以木质结构为主。交错的木结构在室内蔓延开来,在一方空间中创造新的天地,向自然借一缕阳光,顷刻间室内绿植光影浮动,生机流转。
归于自然天地,也意味着更人本的设计理念。空间除了陈列商品,更承担了人们聚会交流的职能。集合了果汁吧和花店的“16 Juice Bar and Flowers”,鼓励更多人参与社交互动,令这里成为更有人情味的交流社区。
“我们很高兴能和FiSN这样前瞻的品牌合作,一起探索可持续的新设计,共同思考我们能为下一代零售空间做些什么。”Metaphysical by Pure的创意总监Gary Tan表示。
概念店已于1月29日在年轻人的聚集地上海TX淮海正式开放。
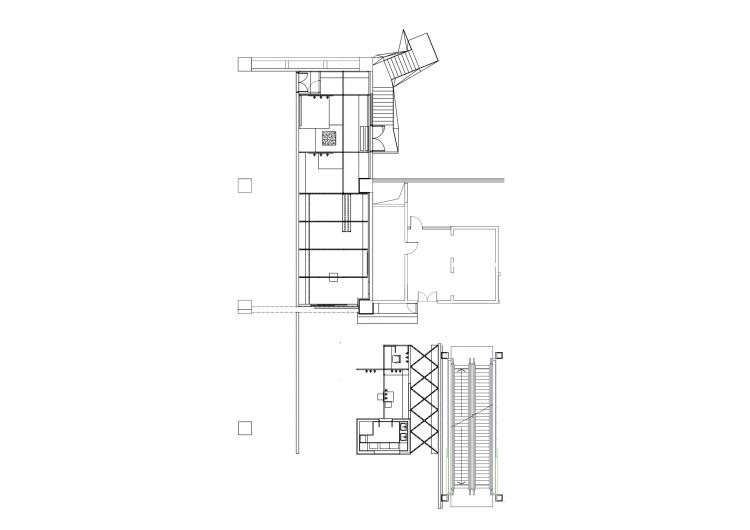
△ 平面图
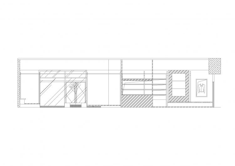
△ 入口立面
△ 内部立面
△ 内部立面
△ 局部结构
△ 局部结构
项目信息
客户:FiSN (Future is Now)
设计公司:Metaphysical by Pure
创意总监:Gary Tan
设计总监:George Jiang
项目经理:Zery Zhang
建筑面积:140 平发米
微信公众号:xuebim
关注建筑行业BIM发展、研究建筑新技术,汇集建筑前沿信息!
← 微信扫一扫,关注我们+

BIM建筑网















