1. 建筑室内外如何与城市环境沟通;
2. 如何以人的视觉、行为感受为线索构建建筑室内空间;
3. 折板屋顶的设计与运用。
– 竞赛主题
以“旅行”和“住宿”为核心,通过对旅行需求和居住行为的深入研究,结合场地关系的分析梳理,把自然环境、文化体验和人文交流融入其中,实现居住空间与使用对象的锚固,并在此背景下探讨人居环境语境下旅馆类公共建筑核心居住空间的营造与公共交往空间构建。
– 获奖作品及作者
–设计任务
方案完成于大三下疫情学期。主题是历史街区“美术馆+”设计,该设计任务在天大本科三年级已设置了很多年。课程主要训练目标有两点:一是强化从设计概念到空间操作的过程,在空间设计的基础上掌握美术馆建筑的设计特点,处理更为复杂的功能分区与流线;二是要处理城市复杂环境中的建筑,学习从物质空间、社会生活两个层面处理建筑与城市环境(包括历史街区)密不可分的关系,理解城市空间。
场地基本情况:五大道地区坐落在天津市和平区成都道以南,马场道以北,西康路以东,马场道与南京路交口以西的一片长方型地区,总面积1.28平方公里,其中拥有上世纪二、三十年代建成的具有不同国家建筑风格的花园式房屋2000多所。
基地位于五大道历史文化街区河北道与湖南道之间,其北侧先农大院整体为里弄式,已历经88个春秋,保持仍然完好;而场地西北角的马占山故居建于1930年代,为一般保护等级历史风貌建筑。其周边散布大量居民区与名人故居,具有深厚的历史文化底蕴。
设计任务书中要求建筑总面积为3500㎡(±5%),限高12m,建筑密度不大于40%,并于场地河北道一侧满足≥60%的贴线率,建筑西侧不做贴线率要求,但不能超出马占山旧居。主要功能包括公共部分、展厅、办公、辅助用房以及自拟部分等。最终要求可以清晰表达出功能与空间的组织与营造,建筑与城市密切的关联,以合适的结构、材料与技术去完善设计内容。
– 设计过程
01 场地认知与设计意图
虽然疫情期间没办法去场地进行调研,但之前在学校不忙的时候常去五大道走走看看过好多次,凭借对整个历史街区的印象和老师给的场地资料,尽可能为自己搭建一个对场地的认知框架。
△场地周边现状照片
如果对场地现状进行理性的分析,街区浓厚的历史氛围与每日高峰时期街道上的人来人往,是形成当地居民与游客这两大人群矛盾与冲突的主要原因;拥挤的社区与幼儿园、小学等教育节点的大量存在使居民们缺少一个可以休憩活动的公共空间。
△节点分析图
因此我希望创造一个更具有亲和力的“城市客厅”,以谦卑的姿态融入现有的场地环境中,在城市层面使建筑不仅成为对周边城市功能空间的补充,并采用特别的形式语言赋予场所趣味性。
但是我还是比较感性,认为建筑本体与城市空间的关系实现的过程不仅局限于理性的分析。
所以我开始的时候并不太注重建筑的边界和形式,以及本体构成与城市界面的关系,我认为对于美术馆这种展陈类公建需要以体验为导向,更想思考的是人与空间的关联,人在场所中的感知与体验是我认为更重要的事情。
所以在确定空间意向的时候,我想把自己还原为在五大道中散步的人,想到街区中的人们愿意带着自己的孩子们在这优美的历史街区中漫步、追逐、探索、发现,历史遗留下来的时间的印记与生活的气息,总会使久居繁华都市的人们在行进的过程中慢下自己的步子,甚至自己也对五大道中每一个窄小的巷子充满了兴趣。
△五大道街区内部窄巷
因此,设计的意向立足于人们漫步、游戏于历史街区时喜爱探索,发现与躲藏的行为特征,并以这些行为特征作为形体塑造的基本依据。
02 空间意向与形体生成
为实现设计意图,我想让设计聚焦于屋顶界面,将屋面塑造成可以实现多种交流的特别界面,并将其作为美术馆展厅内部自然光引入的媒介,由此首先生成方案的空间意向图。
我希望通过它,让人们无论在这一界面的内部还是外部,可以实现和蓝天,树影,云朵,飞鸟还有其他匆匆走过的人玩一场捉迷藏游戏,在这个环境与建筑本体共同融合而成的环境里,人们可以在历史街区慢下自己的脚步,感知场所中历史的记忆。
△空间意向图
同时,希望结合屋顶界面上天窗、洞口的设计,外部活动的人们可以在不经意间发现美术馆的展陈空间与作品,以此实现城市空间与美术馆空间的紧密联系。
形式确定的过程我想也应该是尊重并理性的回应场地的过程,北侧的先农大院与东西两侧的道路在场地周边形成的人群密度与流线对形体塑造有着直接的影响。想了一些常用的逻辑来实现空间意向,于是重新建了8个概念模型(在一草评图一个很自我的方案被毙之后)……
考虑到意向的诠释要简洁并清晰,所以整体形式采取平面网格拉伸的逻辑。
首先基于对城市现有界面的回应确定基本平面,并对基本平面进行网格划分,通过对网格周边人群流线的分析划分区块,对区块进行抬升或降落以回应人群,并形成美术馆屋面的基本形态与主次入口的位置;
在此基础上进一步根据区块与屋面的关系,确定屋面上的人群动线,沿着动线将其相邻的网格进行抬升,使屋面成为可以进行内外交流的界面,以形成美术馆的整体形态。
△形式生成示意图
为进一步完成对城市界面的回应,对马占山一侧的场地进行了相同手法的设计,将起伏的网格向场地西侧延伸,一方面使建筑本体的趋势得以向周边延续,形成形体向西侧缓缓降落的态势,使美术馆连同西侧场地成为人们活动的广场,形成历史街区中的“地景”,并与马占山故居形成视线上的关联;另一方面,这一“地景”实现了针对先农大院一侧视觉上的积极意义,使先农大院一侧的活力可以延伸到基地,并渗透到基地周边。
△总平面图
△北立面图(建筑本体在先农大院一侧的视觉效果)
整体形式通过对场地要素的感知与现存问题的分析,以外向界面的处理使建筑本体与街区环境联系在一起,美术馆本体西侧体量缓缓降落融入城市街区,模糊了建筑与环境的界限,不仅表达了对现存遗址马占山故居的尊重,同时表达了对街区公共活动空间渗透与延续的思考。下一步在组织内部空间时则注重对外部环境的回应,最终实现内部与街区空间的有机对话与相互融合。
03 内部空间的塑造
内部空间的塑造以屋面分区与整体形态为依据,同时也是实现内部空间与外部形成紧密联系的关键,美术馆功能区块的划分同样依照形体所创造的空间可能性展开。
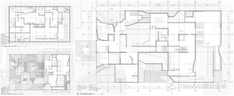
△负一层平面图
△首层平面图
△二层平面图
办公空间与辅助空间集中于建筑西南角,其余部分为展厅与公区。次入口设置于主入口对角处西北侧的屋面上,以此实现屋面流线的畅通与自由。
△功能示意图
观展动线的设置基于形体控制下功能分区的划分,展厅作为美术馆中独立的封闭系统,以形体中心的交通体系将各层展览空间相连接(如下图剖面所示),沿着动线将两侧墙面进行开合错动与收放处理,并围绕形体确定时形成的天井与天窗,核心交通南北两侧的展厅气氛互相渗透,最终实现观展流线上尺度与光影的变化,进而影响人们的心理体验,并以此为“探索、发现、躲藏”的概念意向提供空间依据。
△剖透视
通过简洁而统一的操作手法,来制造空间体验,去影响人的心理感受的过程是完善自己设计意图的过程。
其中进行了相对理性的视线分析:
入口门厅的屋面及墙体顺应网格拉伸的手法视线墙体的开合与错动
人们通过开合呈现的缝隙与室外元素进行视线交流,特定形式针对室外框景成为展览第一步。
侧墙开洞与大台阶相结合,打破传统观展方式。展厅中的作品不再是美术馆中的主角,将人在特定空间中的活动行为作为展览的一部分,使人们在看展过程中进行角色变换。
基本展厅内部采用墙体错动实现流线收放、小型展台,以及狭窄坡道等形式要素。
使人在美术馆中对于展品具有主动性,并在过渡空间以微弱光线增强探索发现的好奇心。
人通过主交通楼梯到达夹层时,不由自主成为身后与侧边行人窥视的内容。
侧边行人与空间形态构成的画面又成为展览的一部分,以此实现上梯过程中的多场景变化,增强单一空间的层次感。
倾斜屋面开窗实现光影流动及室内外视线的碰撞与躲藏。
展厅部分的天窗设置双层聚碳酸酯面板,以其半透明的特性在保持视线贯通的前提下柔化光线。
美术馆外的人可通过美术馆立面看到人在特定形式下丰富的看展活动。同一展品同时存在于两个基本展厅中,通高的设置使展品在不同视角上为人呈现不同内容。
不过新人赛best16答辩的时候,这些视线分析图我并没放进去…选择了对着自己仅有的几张渲的挺菜的内部效果图和为数不多的模型照片,顺着他们在观展路线上出现得顺序,(并不生动的)描述了一段从进入到走出美术馆的我希望实现的空间体验。
那段尴尬的稿子如下——
“所以我想,这是一条探索神秘与未知的旅程。进入主入口一段狭长阴暗的坡道与不远处侧窗倾洒的光线形成的明暗对比让我有了强烈的好奇心。
走下一段长长的直梯,瞥见高墙上大小不一的窗洞微微发亮,也许那里面蕴藏了无尽的秘密。
随着又一段阴沉的坡道,人们进入了第一个展厅,那里有墙体错动而形成的缝隙背后,瞬间掠过的人影和走进才能窥见全貌的文化展品。
回过头,我看到高处双层屋顶夹缝中跳舞的光斑与那角落里窥视着我的陌生人。
于是我匆匆逃离,迂迂回回,准备走上二层的展厅。随着上行的过程,前后左右发生了许多趣闻轶事,它关于光、关于人,也许我会被身后架空层小窗中向我打招呼的人吓了一跳,但此时此刻我会更加想要走过你曾走过的故事。
我探索到了小小天井间的那一方蓝天,光线从天井间渗透而下,照亮内部的混凝土墙面时形成了古朴宁静的质感。这个时候,这方天只属于我自己一个人。
就这样,展陈的一段段历史,与下一个转角处的未知吸引着我不断去探索,去发现下一秒的惊喜。
回头可以看到身后的小孩子指着天窗外的白云与飞鸟,展示给他的父母自己对窗外世界的解读。 我想,这些曲折的天窗也许在每个人心里呈现了千变万化的世界。
走到二层的窗前,惊觉自己已经成为刚进美术馆时那高墙窗洞中无尽神秘的主人,我知道,我的来来回回,走走停停其实也在被别人窥视着,解读着。
昏暗墙角的一抹留白,我开始了对外面的幻想,于是我走了出去,也想通过那一扇扇天窗,去窥一窥陌生人在起起伏伏间发生的故事。
展陈的一段段历史,与下一个转角处的不确定性让美术馆的存在,为人群提供了与具象元素与自然质感进行捉迷藏游戏的空间。”——END
内部空间的处理其实我比较注重内外部空间的关联性,更在乎人在场所中的情感与体验,使活动、意象与形态相互联系起来。展品通过内部墙体、洞口与屋面天窗的界定,使内部观展过程富有探索未知的神秘感;而外部活动的人们也会在屋面上穿梭的过程中看到天窗限定下,展陈的作品与独特的空间,以及匆匆掠过的人,起伏的折板屋顶使空间呈现连续的状态,光线从缝隙中倾斜于建筑内部,使得空间光影随时间变化而愈发动态,丰富展陈空间的体验。
△轴测分析图
04 材料与构造
为保证美术馆室内空间光线的合理性,交通部分及互动体验空间上部的天窗,使光在空间中以折射与反射光为主。展厅部分希望以自然光来进行展陈设计,其中采用半透明聚碳酸酯面板柔化光线,形成柔和的漫射光照亮展品,并绘制了一张节点大样,其中下部空间采用钢筋混凝土结构,屋面采用钢结构的构造做法,屋面结构梁与玻璃交接部分以弯曲镀锌钢板作压顶。
05 表达与反思
设计最终选择用黑白线稿来表达方案的全部内容,在表达内外部空间关联性与动线关系的过程中,绘制了一张剖面路径与屋面视角相结合的抽象图解,该图解将屋顶平面图进行拆分与重组,在不变的分区与动线逻辑的控制下,将室内透视图置于其中,来表达对概念的思考。
作为历史文化街区中,一个立足于人们日常生活的美术馆,为了将美术馆空间氛围的需求,与公共活动场所开放性之间的矛盾,转化为空间塑造的有利条件,设计将这些日常的行为限定于特定的空间,那些不经意中捕捉到的独特瞬间,将形成美术馆神秘感与未知氛围的基本要求。
十分感谢辛善超老师的指导以及方案瓶颈时期的鼓励,(其实我大三4个设计都跟的辛老师,虽然很严格,强度比较大但是非常开心!),本次设计的切入点和以往不相同,且注重将活动、意象与形态相互关联起来,并尝试了一次线稿风的图纸表达。最开心的是可以借新人赛的机会在假期把这个方案的模型补做出来,很感谢帮我做了整整一周模型的lhm同学,弥补了大三下疫情学期在家我俩都没能做实体模型的遗憾。
△模型照片
设计中有很多不足之处,非常感激在学校终期评图老师以及新人赛最后答辩时评委老师们的批评与指导,它的观展流线在二层是有问题的,比如在个别小型交通节点上会出现流线的杂糅,使人不得不在狭小空间做出动线选择;以及天津四季与太阳高度角对光线介入的影响没有过多的思考,太阳照射的方向其实可以使展厅空间光影的塑造更具体,更有明确的依据。让我可以感受到这个设计背后包含的更多我需要注意的问题以及看待设计的更多不同视角。
这个美术馆+几乎贯穿了我大三下学期,甚至一直延续到了大四,虽然有很多不足,但可以说是求学阶段的一个礼物,希望得到大家的批评指正。
– 更多优质作品解读,敬请移步专题-优质学生作品(点击文字跳转)-
建筑学院( Archcollege )长期招募作者
稿费300-1000/篇,年度最佳作品1w奖金
了解更多,请网站后台留言,或添加微信 JZXY-YZ

BIM建筑网





















































