武汉只有一个1890
武汉汉阳铁厂,1890年由晚清重臣张之洞创办。是中国近代乃至亚洲第一家大型钢铁联合企业。它的诞生标志着中国钢铁工业的起步,被西方视为中国觉醒的标志。1938年日军入侵武汉,当时的汉阳铁厂搬至重庆大渡口,而留下来的厂房全部被炸毁。新中国成立后,在原汉阳火药厂的遗址上重建汉阳铁厂。2007年武汉汉阳铁厂搬迁,如今汉阳铁厂旧址已经停止生产。经过一系列的城市更新,最终整个铁厂南片区内上个世纪的厂房遗址和机器遗存被完整的保留下来。
这一中国近代史上最早的官办钢铁企业,经历了风风雨雨,起起落落,辉煌荣耀与衰落败退交织在一起。不同时代在这片厂区土地上留下了不可磨灭的痕迹,这些历史遗迹,折射出近代民族企业的艰难与曲折,谱写中国近代企业的史诗与悲歌。
△ 厂区旧照(图片来源:业主提供)
厂区位于琴台大道以南,汉丹铁路以北,月湖西南部,面积40公顷,板块形似军舰。由世界著名设计师里伯斯金操刀设计的张之洞博物馆位于地块的舰尾。2018年已建成对外开放。汉阳铁厂工业遗址是武汉市民族工业发展、近代产业文化重要的空间载体,也是武汉市沿江工业地带“十里工业长廊”的重要组成部分。2017 年,工业和信息化部公布汉阳铁厂为第一批国家工业遗产,并确定了需要保护的核心物项。汉阳铁厂是目前武汉唯一上榜的工业遗址,也是目前武汉最大规模的工业遗址群落。
△ 厂区总图
△ 厂区整体鸟瞰
保护还是拆除?
20世纪80年代以来,中国大城市的快速发展是“翻新热”的诱因之一。许多缺乏质量的过时建筑需要更换。建于80年代和90年代的建筑无法赶上城市快速增长的经济发展,因此需要大量的改造以满足新的功能的需求。此外,随着中国摆脱重工业,大量工业用地被放弃;国际上重视利用工业用地的新趋势,中国政府和开发商也正在看到这个细分市场的潜力。
厂房建筑因其独特的体量与时代特色,寄托着上一代职工与周边居民的深刻回忆。在新的时代中重新改造更新这些老旧的厂房建筑,使其成为连接新旧时代的纽带,重塑着周边的场所精神,是开发商与建筑师需要担负的这个时代对历史与乡土的责任。
而先导区的前身,正是与张之洞博物馆相望的两座厂房。一座一层厂房,80年代后建设的氧气装站。工厂停工后,内部临时装了羽毛球运动场地,被列为三级工业遗产。南侧为一座2层的厂房,制氧车间,建于1968年,主要为转炉炼钢提供生产用氧和压缩空气。被列为二级工业遗产。该建筑保存情况较为良好,外墙为红砖,生长了几十年的爬山虎爬满整个外墙。内部空间也更为高大完整。
△ 先导区选址
通过多次现场调研,实际测绘老厂房和保留树木的定位。设计将2000年以后建造的不具有遗产身份的建筑拆除,场地内直径超过50cm的树木原地保留,未超过50cm的树木则就近移植,场地内的烟囱也被完整的保留下来。
△ 先导区现状总图(北侧为三级工业遗产厂房、南侧为二级工业遗产厂房,东侧为张之洞博物馆)
武汉市汉阳区规划部门也对该片区的工业遗址进行了录入和归类。对工业遗产建筑物改造提出了详细的分级管控总则。三级、二级工业遗产的保护利用原则稍有差异。在实地勘察后,我们采取将三级工业遗产厂房,结构加固,外墙面重新设计,增加幕墙和钢结构具有工业风格的材质。而二级工业遗产则重在保护。对风貌完好的外墙进行修缮,内部空间重新划分利用。
△ 二级工业遗产厂房改造前
△ 二级工业遗产厂房改造前内部(图片来源网络)
历史与现代的对话
△ 方案生成图
设计保留了原有的建筑结构和场地关系,尊重遗留厂房的体量,加入挑空的横向体量链接两栋厂房,形成全新的功能和流线。建筑围合出尺度适宜的内向性广场,与东侧张之洞博物馆完全开放的入口广场相互独立又彼此联系。新的屋顶体系从原有厂房上生长而出,注入历史厂房以新的时代活力。
△ 改造后总图
通过对不同级别的厂房采用不同层级的保留和更新,两幢厂房形成一种新的建筑群落关系。全新而张扬的建筑形态矗立与琴台大道一侧,开阔的前场提供了良好的展示面。
△ 改造后实景
从与原有建筑空间和结构的对话开始,挖掘置入的新功能空间的主题特征,在自身合理组织的同时也时刻跟原有结构体系产生碰撞与磨合。两座保留建筑之间增加的矩形结构,使它们在空中伸展直至交汇,最终形成一个公共庭院。这种介入方式不仅构建了一个新的楼层,还为建筑赋予了一个具有凝聚力的中央区域,人们可以在这里散步、停歇或举办集市和表演活动。
△ 轴侧分析图
重塑与追溯
汉阳铁厂的本体价值极高,但由于原物质实体在战争中被炸毁,现存的工业遗址为建国后一五时期建筑遗产。因此如何重塑和传承汉阳铁厂的文化精神内核是设计的终极目标。
三级保护建筑氧气装站,靠近琴台大道,但其外立面特征不明确,保护级别较低,设计采用外立面重塑,而内部结构有选择的保留下来。局部删除和新增同样结构模数框架,组织新的平面功能与空间。
建筑立面采用陶砖幕墙和玻璃幕墙重新塑造,异型的钛锌板金属屋面,带来了丰富的第五立面,与张之洞博物馆张扬的体量相得益彰。
△ 主入口©Qiwen Images
项目创新设计了十字花纹的砖花图案。十字花纹来源于厂区内部唯一一座一级保护建筑、转炉车间的外立面砖墙图案。转炉车间具有较高的建筑美学价值,由我国著名建筑学家张良皋设计。原砖墙图案为菱形,且为砖墙砌筑而成。而本项目为陶砖干挂幕墙系统,通过长短不一内部龙骨布置,最终形成特殊的十字花纹。为呼应东侧张之洞博物馆张扬的造型,砖墙也如帷幕一样,轻挂悬起……10万砖只采用了4种基本模数,组织成三种不同的图案,随着第五立面起伏,形成全新的建筑语汇。
△ 四种模数定制陶砖
△ 十字转幕墙大样示意
△ 陶砖幕墙墙身大样
在三级保护建筑内部,设计置入一些开敞庭院:完全内置型庭院,改善内部环境的采光通风环境;靠外侧半开敞型,则通过陶砖幕墙的围挡形成较私密的共享空间。这些庭院的置入,不仅让前期展览功能的参观流线带来了空间丰富性,也会将来共享办公的功能提供更好的空间特色。
△ 三级保护建筑采光庭院(业主提供)
二级保护建筑制氧车间为二层砖混结构建筑,北面带有局部两层耳房,耳房高低不一。外立面以红砖为主,开有方形窗,圈梁及柱子水泥砂浆抹平压光,外立面保存良好。设计上采用整理保留的措施,对红砖外墙破损部位进行修缮。
△ 内部庭院
进入内部庭院,就能感受到二级保护建筑的立面完整的被保留下来,原本高矮不一的耳房,通过技术修缮形成完整的屋顶,与空中连廊相连形成一处休憩的屋顶露台。站在庭院中央,一侧是反应新时代特征的建筑,一侧是承载着情感与使命的“旧厂房”,生长了50年的树木依然陪伴在侧。
△ 空中平台
业主笑谈修缮一栋建筑比新建十栋建筑更难。建筑内操作空间有限,一次只能进一台车来清除陈年工业流水线设备基础;通过一系列的基础重建工程,完善建筑防水保温;对老旧结构、墙体进行加固来承接新的功能;新建的结构与主体结构脱开,增加新的楼层,最后实现传统厂房转变成现代公建;为满足新的使用功能的消防、排烟、节能灯要求,原屋顶被拆除,更换成全新的金属屋面。
△ 施工现场
△ 屋顶拆除施工现场
△ 改造后的图书阅读区
为修缮二级保护建筑的外立面,在施工过程中采用了6种立面修复策略:
1:现有墙面清洗勾缝,刷无色透明渗透性防水保护液
2:补洞墙体,外饰面颜色修复同周边墙体
3:新砌墙体现场抹灰,预留10mm厚度,外涂艺术砂浆,颜色同周边墙体
4:门窗洞口更新
5:室外架空的管道及外立面管道修复;管道外表除锈,外涂深灰色防锈涂料
6:线条基座修复重涂
△ 二级保护建筑外立面修缮
△ 二级保护建筑外墙修缮前后对比
△ 二级保护建筑门墙修缮前后对比
用自己的方式向历史致敬
如今修旧如旧似乎有了特殊的商业价值,人们对古建筑里的时髦店铺有莫名的好感。但这种表面上的“留存”做法存在很大争议。关于建筑遗产的保护思想在西方已经经历了二三百年的争论和演变,也经历过19世纪中后期如火如荼的风格性修复实践和之后对风格性修复的否定等阶段。“真实性”、“完整性”、“可逆性”、“可识别性”已被纳入新的国际准则。修缮应该“延年益寿”而要避免“返老还童”。对于现状已无法满足现代生活需要的建筑,我们的方式是修旧如旧不如破陈出新。
△ 改造前后对比
新与旧的对比体现了建筑的时代性属性,新建筑终究也将成为历史的一部分,那么他就应该体现其所处的历史时期的特征。尽管与老建筑相邻,也许在形式、材料或细部上与老建筑有所呼应更能体现当代的技术与材料特征。
△ 实景照片
运用更容易被人理解的当代建筑语汇,使老建筑焕发新的生机。打造当代人更熟悉的空间形式,使现代人对老建筑也多了一份亲近感。从中感受历史的变迁的同时,新建筑也运用自己的方式向老建筑致敬。
△ 实景照片
目前本项目已被收录于《全国工业遗产名录-湖北卷》。
技术图纸
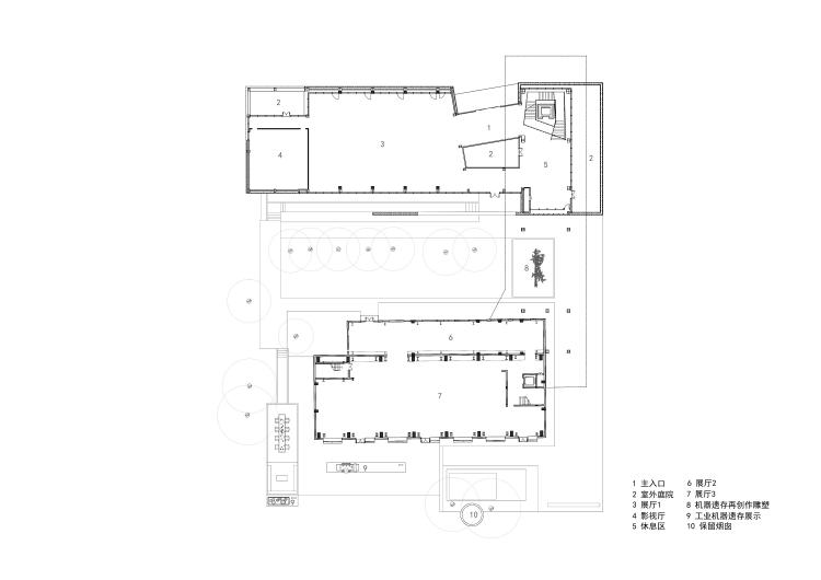
△ 一层平面图
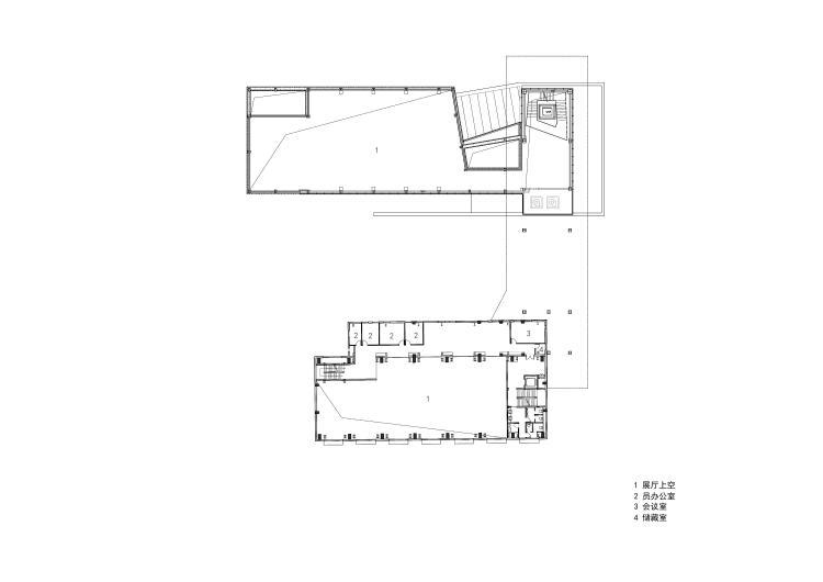
△ 二层平面图
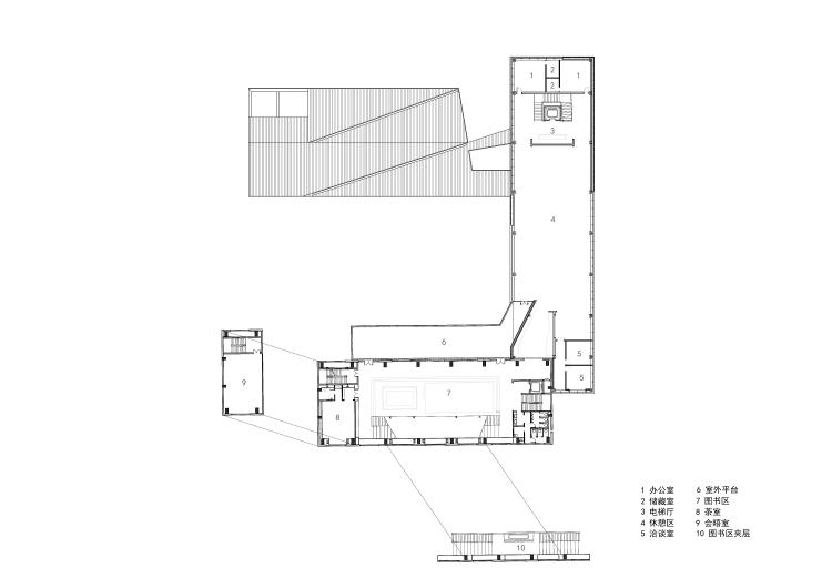
△ 三层平面图
△ 立面图1
△ 立面图2
△ 剖面图
项目信息
项目名称:融创1890
建设地点:武汉市琴台大道170号
项目功能:厂房改造
建筑面积:4112.97㎡
设计/建成时间:2019.06/2020.06
设计单位:上海日清建筑设计有限公司
业主单位:武汉融景臻远房地产开发有限公司
施工图设计:中国轻工业武汉设计工程有限责任公司
幕墙顾问:上海安询外墙工程设计有限公司
室内设计:赵牧桓室内设计研究室
景观设计:深圳市壹安设计咨询有限公司
软装设计:LSD软装事业部
灯光设计:BPI
景观施工单位:浙江恒春市政园林工程有限公司
施工单位:中建七局
幕墙施工单位:中建幕墙
材料和设备供应商信息:
钛锌板金属屋面:瓦敢当建筑装饰工程技术有限公司
陶砖幕墙:富陶科陶瓷有限公司
总建筑师:宋照青
设计团队:魏文渊、李圣、单悠、张涛
业主团队:罗黎勇 葛淮京 黄庭、张晓亮、陈丝雨、黄晓荷、林慧敏、喻翔
专业摄影:山间影像

BIM建筑网






































