精彩大图开场
▼
请将手机旋转90度感受美到炸裂的画卷
▼
请将手机旋转90度感受美到炸裂的画卷
▼
嗨喽大家好呀!本期为大家带来的是2020年同济建筑系本科生毕业设计之——上海金山水泥厂区更新设计。首先整个课题组以气势恢宏的长卷吸引大家的目光,他们极强的整体性中又能凸显出各个单体设计的亮点。历史、生态、文化、社区、产业等等全方位的系统性城市设计为单体建筑改造打下了坚实的基础。“灰暗”的厂区在更融入城市文脉的基础上,变得鲜艳起来。而这些更新改造又是十分地立足于实际,这得益于课题“真题假做”的特点。
面对突如其来的全程网上教学的转变,不得不说这样一个需要大量现场调研的课题确实面临着巨大的挑战,所幸课题组的同学们克服了这个难题,还充分利用了线上展览的优势,在视频中展露了许多巧思~ (每个方案都附上了精美视频,欢迎点击播放!) 接下来请欣赏各式各样的筒仓、联合仓储厂房、预热塔回转炉、冷却机房们的“变形记”!
上海金山水泥厂区更新设计
指导老师:陈强 陈泳
甲方老师:胡红林褚银菲
助教:周逸文曾文靖
设计成员:
A组 – 柏樱 傅哲远 李佳臻 俞婕 张萍萍 赵梓含
B组 – 戴晓宁 顾家豪 刘蕾 薛思源 徐文豪 许易豪
(按拼音排序)
下文主要为A组同学作品介绍——
GROWING FACTORY 生长工厂
(感谢赵梓含同学撰稿)
Ch. 0
疫情期间开展的特殊课题
毕设选题结束的时候是2019年的最后几天,大家都兴冲冲地规划起了大学时代最后一个寒假的度假计划,毕竟这可能是大学五年的同学最后的一起长假旅行的机会。金山水泥厂改造选题的两位陈老师把我们拉到一个微信群里,老师布置了一下寒假的调研和阅读任务,大家寒暄了几句就开始了寒假漫长的潜水,等待开学到来。
然后1月末疫情突如其来。随着武汉封城的消息传来,我们不得不取消了原定的出行计划减少外出隔离在家。开学时间临近,群里收到疫情期间全程网上教学完成毕设的消息。一时间大家都有些错愕,一直以来都比较依赖近距离改图和小组讨论的设计课要更换成一种全新的形式,而对疫情未来发展情况的未知使我们不得不快速熟悉网上教学的节奏。
于是2020年寂静的春天,这场最特别的毕业设计拉开了帷幕。
△ 课题共12位同学,指导老师为陈强和陈泳两位老师,这是我们的课间截图
金山水泥厂位于上海市金山区朱泾镇。朱泾镇位于金山区“一城一带一圈”亭枫发展带的中间节点,位于落照湾北部核心区的万安水泥厂原名金山水泥厂,占地16.1公顷,西临朱平公路和花开海上生态园区,北临落照湾河湾景色,建厂已60余年,是上海城市发展变迁的见证者与参与者。但是随着我国的经济发展,金山水泥厂已经卸任了原有的生产任务,为了适应存量规划需求,已然作为城市工业遗产的金山水泥厂需要迎来自己的置换再利用。
△ 本案场地与镇区、金山区关系
这次的毕设课题以上海市金山水泥厂为基地,延续工业厂区的生成语境与发展轨迹,植入公共文化活动,引入新兴创意产业,探索空间、文化、经济和生态转型互动关联的再生运作机制。设计充分考虑水泥厂建筑的独特空间特征和结构类型,因地制宜地提出不同产业建筑及设施装置的创新活用方案,再续工业遗产的文化活力,让寂寥的水泥厂重新焕发生机,成为复合功能街区,并编织于朱泾老镇活力再造的历史进程之中。
△ 工厂遗址公园区改造后俯瞰全貌
在毕设题目开始之前,我们12位同学都没有在以往的设计课里接触过过多的工业建筑设计或者改造内容。对于工厂建筑的印象,大多只有繁复阵列的钢架,锈迹斑斑的金属表皮,笨重的混凝土烟囱,塔吊下堆叠的各色集装箱和随时随地让一切建筑物轮廓显得朦胧的烟尘……总之,相较于大家熟悉的繁华城市环境,位于市郊的工厂区域建筑和城市肌理特征在初期调研阶段都给我们带来了不小的新颖感和挑战性。停止生产的旧工厂仿佛一个废弃的城市秘境,废土上是粗野又不失秩序的美感。
无疑,疫情袭来让本就对工厂建筑不甚熟悉的我们的基地调研工作雪上加霜。在设计初期所有同学都是在完全脱离实地基地考察的状态下尽可能了解着这片我们并不熟悉的地块。课题中少数居住在上海的同学,在疫情稍微得到控制之后,尝试着去到现场调研,并通过了网络平台直播的方式给我们大概展示了现状。自始至终,线上通讯平台的利用给我们带来了远程工作的便利,在期间也发生了不少趣事。
△ 疫情期间的线上课堂与小组线上讨论,为设计课提供了独特的氛围
课题的分工按三个月时间总体分为两个阶段:
● 期中评图之前是城市设计阶段,分为AB两组为地块提出初步的城市设计策略,在期中之前将整个厂区做一个较为详尽的细化城市设计;
● 期中评图之后,六人小组将拆分成个人工作单位,每人负责一个较大的保留工厂建筑,在承接自己小组城市设计策略的基础上,对它进行建筑改造设计。
这个毕设选题在尺度上自城市大区规划至建筑细部构造,在合作上自12人整体到六人再到单人,非常考验我们的综合能力,放在这个为本科建筑学画上句号的阶段好像又十分应景。此外,本次毕设课题还有“真题假做”的特点,因为现实中的金山水泥厂区也是一个待改造园区。故而在课程过程中,来自甲方上海房地集团规划设计部的老师们也会参加每次的课程小结评图,并会同时为我们提供一些现有的调研资料。
围绕着这个选题的一切都显得那样的特殊,于是在这间小小的线上会议室里,金山水泥厂改造小组的工作坊正式运行了起来。
Ch.1
3周12人:4*3人小组的前期调研
在寒假期间,我们已经以12人单位开始了基地的基本信息调研。感谢助教学姐提供的POI数据、大众点评数据和上海OSM路网设计,让我们得以有机会第一次尝试利用GIS的方式做基地分析,更加有依据更精确地锁定基地现存的功能缺失,为后期的城市设计功能分布做出了足够的铺垫。甲方老师们还详尽地为我们提供了现状部分照片以及周边状况照片;金山县的历史资料(甚至追述到清朝期间的历史);落照湾北部核心区功能定位综合报告等资料,让我们脱离实地的前期工作变得顺畅了不少。对题目的整体方向把控也逐渐变得清晰。
因为课题的地域研究范围大至落照湾北部片区,小至厂区内部各建筑运作系统,我们分为了4个三人小组,主要就大致四类问题展开分工调研(顺序由尺度大到小排列):
●以落照湾北部片区为范围研究基地周边公共资源环境体系;
●镇区-厂区历史文脉与文化;
●工业建筑价值评价体系;
●工业建筑特色空间与结构体系。
通过小组分工,这些复杂的基地基本资料被高效地组织并呈现出来。
01 基地存留问题发掘
碎片-连接
△ 在镇区尺度下的周边资源调研
△ 基地周边碎片化的公共绿地资源、自然水系资源、绿地资源
△ 基地周边带有拼贴感、魔幻感的自然资源与文化状态
从镇区的及基地周边的视角看金山水泥厂,不仅在自然环境条件上,我们的水泥厂面临着南北迥异的生态环境,就连在人文环境与文化资源上,基地周边也显示出各方向强烈的碎片化拼贴感,这些碎片化问题主要来源于城镇风貌历史底蕴丰厚,但是文化个性模糊;而公园类景区各自独立且封闭,缺少联系镇区的开放空间;生态绿地缺乏整合联通,水网体系断裂且没有文化共鸣。
这些问题均昭示着我们需要在设计阶段,作为断裂体系的连接体,成为沟通镇区碎片化功能的桥梁。
废弃-再生
△ 结合数据资料进行周边功能分析(图源B组许易豪同学)
结合GIS数据分析得出,老镇区存在公共设施陈旧,就业支撑不足,文化特征模糊等问题,办公设施在分布上也比较零散,不够集中。产业结构较为落后,就业吸引力偏弱,居民外出就业率较大,职住不平衡。
但是结合餐饮等点评热度数据发现,当地仍具有一定的消费水平。由此可见,金山水泥厂区经过合理的改造,引入了适当的集中型办公及商业功能后,吸引大部分城中的游客到当地消费,能激发一定的当地消费潜力。
△ 保留体系+引进功能+景观塑造:打造工厂遗址公园景观
上述基地调研,我们基本整理出了城市设计阶段的基地功能定位策划。结合办公、商业、文旅等复合型功能,兼顾居民与访客双方的需求,增加区域级公共服务设施,引入文化产业,实现生态、生活、生产的融合。
△ 工厂+的功能定位
在金山水泥厂完成改造之后,在未来将以“工厂+”的模式运营,化解镇区的疏离感与碎片化,整合利用周边的各种资源。
由此,我们总结出基地现有状况及周边建筑状况如下图。
△ 秀州塘、基地与周边镇区、绿化等的区位关系以及原基地内部功能分区
02保留建筑评定
对于基地内部原有工厂建筑以及居住用及其他辅助功能建筑,在改造过程中我们不会选择将它们全部暴力移除,尤其是厂区具有工业建筑特征的,结构保留状况仍然完好的工厂建筑,以及对厂区历史有见证作用的文化建筑。于是,对厂区内部的现存每一栋原有建筑,我们都进行了经济、文化、环保、文娱四大方面下共计16种指标下的评定,从这个评定表中严格挑选需要保留的原有工厂建筑,以便后期对他们进行系统的改造。
下表为我们针对基地内建筑群按功能分类进行价值评定的表格,我们评定的建筑为:五号筒仓、预热塔、成品仓储、回转窑、熟料库、联合仓储、循环水池、堆场、调度筒仓、总理旧居、生活功能建筑群和服务功能设施共计12种待评定建筑群。而针对它们的评定标准有就业机会、河岸空间、安全性能、公共走廊、娱乐活动设施、历史文化延续、水质提升、新居空间营造等共计12种评定指标。
△ 对保留后的基地建筑各方面评定数据的复盘表格
△ 此图反映了所有被保留建筑、道路、绿化的位置、体量以及现状照片的信息
前期调研资料一切就绪,我们随即步入了六人小组的城市应对改造策略的讨论中。
Ch.2
5.5周:2组*6人的城市设计阶段
12人的课题组分为了A/B两个6人小组,各自就不同的主要城市设计策略向下开展了城市设计细化工作,我加入了A小组的研究中。在三月中旬到4月期中答辩之前,我们先是共同探讨了主要策略,再各自承包一个需要打造的功能区块。于是接下来的课程中我们总是在不停地将基地分割再重组的设计过程中工作着。
我们的逻辑最初很简单,简单到我们初期在思考它的时候都不免提出质疑:这个做法会不会太粗暴了一点?但是有时候,最简单直观的解决方式,就是城市改造问题中最有力的策略:
既然体系是断裂的,我们就为他们牵线;
既然文脉是碎片的,我们就把他们粘贴。
对于怎么使基地周边断裂的体系连接起来这个核心问题,经过前期草图阶段我们有了两个大致的方向。
方案一
“轴线-路径”:网格置入
第一个方向是在基地内部置入网格状的格线路径,结合原有的保留路径,形成一套全新的游览路线网格,使由南到北自入口到河岸边,由东到西自镇区到花开海上公园都得到有机结合。这个方案核心逻辑建立于“轴线-路径”,明显的优势在于南北向以及东西向轴线清晰,将“连接”这一抽象的概念有条理地排布在场地中。此外,新增的中部轴线“文化游览轴”以及“滨河景观轴”有机地结合了工厂遗址公园景观以及滨河水岸的自然景观。
△ 新轴线置入
△ 方案一大致新功能分区
△ 新旧道路体系结合后主要游览路径
△ 新的水景及绿化游览体系
方案二
“路径-轴线”:建筑群兴趣打卡点串联的体系
在我们的案例调研阶段,老师们曾提出过厂区更新后,会为金山区提供一个新的游览打卡地这样一个愿景。于是第二个方向我们就用了一个自“兴趣点”到“游览轴线”的逻辑,试图先通过打造场地内保留建筑中较为有特色的景观带,再将它们有机串联起来,形成新的游览路径。这一方案的优势在于充分考虑了重点景观驻留点的选址,考量了对水岸、工厂自身来说最具特色的游览方式,不至于使原本有趣的“打卡点”因人为轴线的置入而丧失活力。
△ 方案二逻辑:先打造重点景观再做路径串联
△ 工厂建筑原型与兴趣点的结合决定重点景观区域的选址及打造方向
方案二补足了方案一在系统性方面的缺失,方案一为方案二裨补了重点景观的缺漏。
方案三
方案二与方案一相辅相成
草图期间,我们的六人小组分为两个三人小组进行具体城市设计策略的探讨,探索出了两条推导方向正好相反的逻辑。而这两个方案的部分策略均得到了两位老师和组员们的肯定,于是在六人小组合并之后,我们将两个方案种最明显的优势结合起来,形成了最后的城市设计策略。至此,期中之前的六人分队正式从三人小组合并,开始了齐心协力的城市设计细化。
一条自东向西的文化轴线和一条自南向北的主入口轴线从基地正中心蔓延开来,这就是最早的策略。这个新植入的“十字轴”,和被保留的轴线形成了拆分基地为不同功能区的网格体系。而被新置入的河岸景观商业区与遗址公园区,被轴线串联起来。
△ 新增的十字轴线
新增的网格状轴线中,最为吸睛的是两条十字交叉的轴线,它们既是串联入口到江边、东岸至西岸的主要路径,也是串联所有保留建筑形成完整“遗址公园”与“水岸游廊”的重要轴线。
△ 保留体系整合
△ 组织道路系统
△ 整合体系之后形成的新园区建筑肌理
于是,改造后的功能区被排布出来,由西到东有星级酒店、集中总部办公楼、工厂遗址公园、滨河商业街、商业综合体、剧场、展览馆等等多样的、丰富的功能,其间穿插着两条自东向西的游览轴线供访客游憩。
△ 改造后的功能分区与文化轴线位置
在基本策略确定之后,我们将工作重心放在三个主要部分:
A. 两条主要轴线(滨河景观轴,中部文化轴)的游览氛围营造;
B. 西面集中办公区、酒店区,东面商业街区和综合体的深化设计;
C. 工厂保留建筑片区的外观及景观塑造。
在进行这三个部分细化的过程中,我们会在每周的工作进度里小组内合并总平面和总模型两次,以防止分工工作脱离最开始集体制定的总体城市更新策略。这个6人合作方法是我们第一次尝试这样的协同工作模式,两位老师在整个城市设计过程中也在每个课堂节点认真地提出细节优化策略。于是在每位小组成员的共同努力下,我们并没有那么急迫地完成了中期评图前的完整城市设计成果。
自地面游览散步的打卡游客的视角,我们既重点打造了地景剖面上的起伏节奏感,增加游览的趣味性和景观的韵律感,增加游客不同层次的游览体验。在工厂遗址公园片区景观设计具有柔性的边界,增加了游客步行工厂建筑其间的探索乐趣;在基地东面的商业街区景观轴线的边界则较为利落,方便游客寻找兴趣点目的地。由遗留工业传送带和回转窑组成的二层游览系统增加了新的行走体验。
△ 总平面图、代表性剖面轴线以及细部的景观节点氛围塑造
在垂直景观上,由东面摩天轮、水塔,西面烟囱、龙门吊、冷却塔等较高的构筑物组成了丰富的工厂文化天际线,也增加了游客登高揽景的好去处。
△ 中期之前,新的金山厂区俯视:以入口轴线为界,西面的工厂建筑群拥有更自然柔性的路径,东面的商业与文化区排布逻辑清晰,沿秀州塘水岸的游览路径连续且具有层次感
滨河景观轴和文化游览轴两条轴线几乎衔接编织了场地内所有的建筑群功能区,主要负责这两条轴线塑造的同学在每次“合图”小组会议之前都要把自己部分的模型和图纸与各功能区负责的同学进行沟通,这也是十分考验我们的合作能力的一件事。最终,以“工厂遗址公园”为塑造目标的我们,为金山水泥厂也塑造了同样一座具有工业与自然美感的城市公园。在游客漫步其中的时候,不仅能欣赏秀州塘水岸的自然风光,了解上海工业历史文化发展文脉,更能在工业建筑改造的文化建筑中自得其乐。
△ 滨河游览轴:自东向西分为滨河景观段、滨水乐园段和遗址公园三段进行景观塑造
文化游览轴——我们在东西向打通被保留的联合仓储中段,使其形成一个贯通的东西向游览轴线,并对其中的历史建筑节点进行景观塑造,下图介绍了具体改造方向细则:
最东边小型商业区呼应了东岸镇区的小型建筑肌理,结合景观形成精致的景观商业区;
对于朱总理故居,修缮之后改造为文化展览馆;
前实验室办公楼修缮立面后将其用玻璃廊道连接形成景观节点;
在文化轴线中适当增加公共服务设施,诸如运动场馆;
将联合仓储改造为社区文体中心,将中段打通以便轴线的连续;
西面的基地内部水景,我们将其打造为艺术水廊,打造结合水景的公共装置艺术展示场地。
对于新的金山水泥厂——“生长工厂”园区间值得驻足欣赏的景观角,我们将它们的文化艺术人文氛围融合自然景观一并表现出来。
首先是步入“生长工厂”所见:南部主入口场景,左面是改造为社区文化体育中心的联合仓储,右边是新增的剧院文化设施,中轴上我们保留了结构完整的筒仓作为纪念式景观。
滨河景观轴东段,我们设计了可供游客休憩观景的大草坡,南面与商业街以景观台阶的方式连接,在草坡上可以欣赏到滨河乐园中被保留的龙门吊景观塔和集装箱商业区,工业建筑的趣味景观和滨河自然景观和谐相融。
秀州塘上的游船缓缓驶过金山水泥厂遗址公园,船上的游客会看到我们在剖面上分为两层的滨水步道。这样的步道设计丰富了滨水景观层次,也丰富了游客的亲水活动体验。
在场地西侧,我们将原有的一条由秀州塘引入的内部水道拓宽成为景观河流,将两岸塑造成颇具活力的艺术、商业景观廊,在河岸散步,可以看到东面被保留的远方的钢结构塔楼。
自此,毕业设计的期中评图圆满在线上落下了帷幕,我们也开始步入了后面6周左右的建筑改造设计工作进程中。
Ch.3
6周-2*6*1人:单人的建筑改造设计阶段
面对中期完成的城市设计阶段的总平面,我们开始了单人建筑改造设计。首先要做的就是对“工业遗址建筑区域”进行空间特征研究,让保存下来的工业建筑特征与改造后功能有一定的适配度,以便之后的单人设计分工进行顺利。
于是我们第一步工作是对工业建筑空间特征进行建筑原型研究。对于工业建筑,我们首先将它们分为四种空间原型——棚屋(SHED),塔楼(TOWER),筒体(CYLINDER),廊道(CORRIDOR),然后将工业建筑中不同功能的建筑或构筑物,如筒仓、联合仓储、龙门吊等一一对应到一种或多种原型特征上。
在评价体系上,对于建筑空间原型,我们采用了纪念性,公共性以及人员驻留感三种指标评定;对于建筑和构筑物,我们的评定指标为它们的空间特征与公共空间、观演空间、展览空间、居住空间及运动空间的适配度,在图纸上用面积图表将他们直观表现在图上。
主要的改造策略有:1.景观重塑;2.功能置换与景观重塑并存。由此,对于我们基地中的“遗址公园”区域,我们依据他们的空间特征精准功能定位了它们的改造方向。
小组六个人各自认领了自己感兴趣的改造建筑空间。这对于这个区域,自东至西原本分别为东部4号大筒仓和循环水池、联合仓储、预热塔回转炉和冷却机房、包装筒仓、五号筒仓。对他们的空间特征进行研究之后,它们即将被改造为筒仓艺术展览馆、文化体育中心、水泥博物馆、城市礼堂以及筒仓特色酒店。由于联合仓储体量较大,我们将它南北部分交给两位同学一起改造。
分工完成,接下来的组内分工如下图:
(对于联合仓储,柏樱同学负责文化中心,李佳臻同学负责体育中心)
下面是我们的建筑单体改造策略介绍:(顺序自东至西)
筒仓艺术展览中心
赵梓含
视频欣赏
▼
该建筑原有筒仓处在改造区最东面,改造后作为美术展览馆,它需要在承担一定的展览功能之外,组织筒仓与蓄水池,还要在入口中轴线上有所呼应处理。轴线的察觉与展览需求,使我首先意识到需要一个新的建筑体量介入,一个新的、处理轴线关系,又能与原有筒仓形式和谐呼应的形式语言。
筒仓是纵向的筒体序列,而蓄水池又是扁平的原型空间,于是我将筒仓放倒过来,找到了“拱”。
以排列的拱形成的美术馆展览流线,让我立马联想到了康的金贝尔美术馆,而新旧承接的处理和展览馆轴线的处理又让我想到伦佐·皮亚诺的金贝尔美术馆新馆方案。于是在新馆的单体形式确定之后,我先进行了一段时间金贝尔美术馆新旧馆的案例学习,试图找到我的新馆方案灵感。
前期的一些案例研究和自己的方案思考,记录了自的方案初期的一些策略思考。
于是,美术馆“三件套”——筒仓改造的展览馆,新馆季度画廊和蓄水池改造的会堂格局就此形成,接下来就是三个建筑空间氛围的塑造和平剖面细节。
氛围塑造根据展览功能不同以及游览方式不同,运用了不同的自然光和人工光线。
筒仓展览馆,季度画廊和会堂各地相对独立又在一二层有所连接呼应,在公共区域根据筒体工业建筑空间的特征设置了颇具特色的书吧、接待处、商店等功能,在展厅的设计上也充分考虑了游客在看展时对筒体空间的探索欲与游览体验。
△ 各层平面,在表现上我们小组内统一了将保留下来的原有建筑结构用棕红色区分的方法
△ 筒仓展览馆一层的书吧,可以看到天花板保留的筒仓底部倒斗
△ 季度展廊一层的室内空间,其选材、光线氛围塑造与筒仓形成一定对比
△ 会堂入口空间
有关空间的内部氛围,大部分是通过对光的塑造达成的,此处以会堂空间为例。
△ 会堂空间的光随一天日光变化而变化
会堂空间内部设计具有强烈的向心性,当游客自南方主要入口步入会堂空间时,视线会立即被中心的水池与中心轴线上的天窗光线吸引。在会堂静坐冥想或是进行会议讲座时,观众会直观地通过天窗光线的缓缓变化体会到时间的流逝。天窗投射下来的光好似一个随日光晃动的钟摆。
△ 新馆季度画廊的内部光线
△ 由入口步入季度画廊,路过通透的门厅,左边是筒仓展览馆,右边是新馆画廊
△ 从主要剖面剖透视中可以感受到,游客不同的展览空间对光线的不同感知
筒仓艺术展览馆最终展板如下:
联合仓储文体中心
柏樱 李佳臻
视频欣赏
▼
联合仓储是整个遗址公园部分体量最大的建筑,而且就城市设计的角度来看,它还扮演了衔接整个场地东西双向的桥梁的重要角色,故而最开始两位同学就分工为南北两个部分,合作塑造联合仓储两个部分——南部为文化中心,里面有书吧、社区图书馆、小型剧院等综合文化设施;北部为体育中心,里面有乒乓球、击剑、攀岩、篮球等各种丰富的体育功能场馆。中段为通透的交通庭院,丰富的空间体验把整个联合仓储的空间氛围活跃起来。
△ 功能体块构成分析
原有的联合仓储结构较为完整,所以两位同学对它们进行了保留,在确定了文化和体育部分大致的功能空间之后,需要将他们按照结构逻辑进行剖面设计。对文化中心,剧场空间是其间结构处理较为复杂的部分;而对于体育中心,顶部的篮球场则是重点。另外,在结构上还结合需要新增的纵向外挂交通空间。在对保留的钢结构进行研究之后,将新旧结构体系有条理地交织成为了工作重心。
△ 新增交通空间与结构的关系
然后,开始对文体中心内部空间活力感的塑造,剧院、书吧、天光篮球场、中间的休憩庭院……一个极富社区生活活力的大型综合功能建筑逐渐被清晰地构成。回溯一下我们小组在城市设计阶段的功能定位,联合仓储的改造,成功地将外来游客与镇区居民的生活有机地结合起来,激活整个遗址公园的核心区域。
△ 文体中心在不同标高的平面,在不同的高度,文化和体育中心在南北向的互动均有不同
东西向开放的联合仓储中段,是一个视野通透景观良好的休闲大厅,置身其中可以感受到北面体育中心和南方文化中心的活跃氛围。
文化中心的剧院可以每周安排不同场次的中小型演出,丰富镇区居民的日常生活。
体育中心顶层的天光篮球场,为社区休闲生活提供了一个新的好去处。
剧院的结构为改造过程中的新增部分,与原有结构有所区分的同时合理置入。
体育中心不同的活动室处于不同的标高下平台,在满足运动功能的同时又创造了不同的观看关系。
自与户外联通的入口公共空间进入文化中心,剧场置入的新结构被漆成较明艳的色彩,与原有联合仓储保留结构相互映衬。
在二层自文化中心路过通透的中庭连廊走向体育中心,可以感受到对岸活跃的运动氛围。
联合仓储·文体中心展板:
水泥博物馆
傅哲远
视频欣赏
▼
水泥博物馆在所有的待改造工业建筑中显得尤为特殊,因为与其说它是一栋待改造建筑,不如说它是一座由不同的工业构筑物组成的工业丛林。于是,对于这片“工业丛林”的改造,傅哲远同学选择用观赏路径置入的方式,将不同的、组织零散无序工业构筑物以游览路径的方式组织起来,形成一个完整的“博物馆”游览路径。置身步道之中,不仅可以感受到工业构筑物独有的构造美感,还能了解到金山水泥厂这一在上海城市发展变迁之中重要的历史角色曾经的故事和风采。
为了将造型各异的工业构筑物有机结合,新增和改造出来的部分展示空间和交通空间。
原来的筒体回转窑变为了博物馆内最具有游览特色的交通空间——“时空隧道”。
以下为水泥博物馆代表性平面图,在东西方向廊道连接了联合仓储和城市礼堂,以便引入不同方向的游客。
桁架、管道、梁柱,丰富的构造在同一座工业博物馆中,成为吸引游客的工业景观。
游览于水泥博物馆的“工业丛林”中,不同的展馆有不同的材料和结构特征。
园内游览:
由回转窑改造的“时空隧道”,记录了金山水泥厂的历史故事。
水泥博物馆建筑群展板:
筒仓婚纱摄影工作室+城市礼堂
张萍萍
视频欣赏
▼
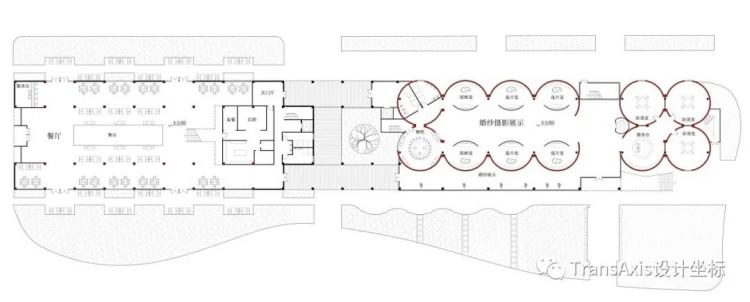
筒仓空间除了其弧形的墙面令人充满探索欲,其筒体重复的序列感也带有强烈的仪式感与纪念性。所以,筒仓建筑与婚礼教堂、摄影工作室、大型景观餐厅等充满仪式感的功能场景适配度也非常高。所以这个原用于包装产品的筒仓和北部厂房让人联想到了与婚礼相关的改造方向。
为了将婚礼的婚纱摄影、举办、用餐等功能按婚礼仪式的进行顺序结合起来,首先将北部的工厂棚屋与南部筒仓做了连接。接下来的主要设计中心就放在了教堂场景、景观餐厅这些故事性和氛围感极强的空间中。
在塑造教堂空间时,天光是首先被考虑的元素。用切割的方法在筒仓中挖出一个能看到完整的八个筒体的中心空间,颇具韵律感的弧形墙面和天光投影,创造了一个独一无二的婚礼殿堂,也为金山水泥厂提供了一种意想不到的新商业模式。
△ 这是婚礼教堂空间场景,站在中心能看到天光与婚礼主持舞台形成的仪式感画面,宾客可以从不同高度的看台见证神圣的婚礼仪式
从平面可以清晰地看到北部餐厅与南部筒仓礼堂之间的连接关系。
剖面:反映出创造天光时的处理手法的结构。
二层的婚纱摄影展示层,不同筒仓单元可以接待不同批次的消费人群。
三层的筒仓教堂,筒仓的弧形墙面空间形成了独特的教堂天光及室内氛围。
婚纱摄影馆展板:
筒仓特色酒店
俞婕
视频欣赏
▼
近几年,民宿作为一种全新的旅游居住模式,因为其颇具地方特色的建筑风格和小众品味成为了游客“打卡”的新目标。民宿作为一种特色居住空间也成为了建筑改造的一个新的主流方向。而传统的酒店行业也受到“民宿风”影响,在建筑外观和内部居住空间特色上也开始疯狂发力。作为整个工业遗址公园最西面的五号筒仓,因为单独的同体之间间距较远,适合连接之后作为整体使用,俞婕同学选择将这一景观良好且颇具特色的筒体建筑改造为特色筒仓酒店。
首先是创造视野和景观良好的筒体建筑之间的连接平台,其中部的空间也可以作为酒店大堂和交通空间使用。
在不同房型的处理上,因为筒体一共有三种尺寸,从大到小就变成了大型套房、小型标间和交通空间三种功能空间。
△ 在标准平面上能看到不同的房型布置和中间交通空间的关系
对筒体建筑的不同利用,创造了筒仓酒店里不同的空间氛围,而向东面挑出的房间内窗口,可以使住客俯瞰东面的所有工厂建筑改造后的遗址公园全貌。
通透的玻璃连廊衔接大型筒仓与中型筒仓两种不同的房型。
自东面的筒仓宾馆景观窗可以欣赏东面具有工业建筑美感的“遗址公园”全貌风景。
筒仓酒店展板:
“回到未来”的工厂
“六人六色”的改造
建筑长卷 -改造后的水泥厂区
请翻转屏幕观看~
▼
从美术馆到博物馆,从体育中心到文化中心,展览、商业、居住、娱乐……在建筑单体改造阶段,我们小组六人一起在两位老师的细心指导下将原本废弃的工业建筑改造成了一座供镇区居民和城市游客共同游玩使用的大型遗址公园。
△ 上:本次工业建筑改造的精神策略核心“遗址公园;下:”贝歇夫妇与他们的《无名建筑》系列摄影作品节选
在过去的百多年间,工业建筑并不被主流建筑学所认可,它们被漠视甚至遗弃,而贝歇夫妇通过他们四十余年的努力的摄影成果逐步的改变了西方建筑学领域对于工业建筑的看法,使得它们逐渐被接纳为社会文化遗产。
工业建筑的记忆在城市工业发展历史中的地位至关重要。这种记忆一旦遗失了,将和建筑的拆除以及工业分支的消失一样不可逆转。作为建筑师,对于工业建筑进行历史的保存的同时让它们具有更多新时代面向未来的意义,使得这些工业建筑成为集体记忆中的重要组成部分,被传承下去。
Ch.4
在毕业设计评图之后
6月初我们匆匆迎来了线上评图。今年环境是如此的特殊,被沿用多年的同济大学本科毕业设计海报在今年也被设计成了“赛博风”。
在“赛博评图元年”毕业的我们,直到同城市打卡十四天资格已满,来到学校举行线下毕业典礼的同时,才见到一直以来共同工作、共同讨论方案的小组成员,见到一直以来活跃在线上会议室视窗的陈强和陈泳老师,我想这种感觉应该是2020毕业生绝无前例的独一份感受了吧。但当我们线下相聚的时候,一同合作奋斗三个月的回忆还是立即拉近了我们的距离。
△“赛博化”的毕业设计线上公开答辩海报,因为没有了报告厅容量控制,最高的时候同时在线千人观看,线上时代带来了意想不到的收获
△ 最终线下见面的老师同学
由于线上网课不便于实体模型制作,没有回溯过一遍手工模型制作应该变成了我们线上毕业设计的另一种“遗憾”了吧(笑)。于是今年的毕业设计我们全体选择了视频制作这一新的形式展示建筑内部的空间氛围。有的同学在视频里致敬了喜爱的电影的剪辑和配乐手法,有的同学在剪辑中穿插了自己去年建筑学习生涯中图纸和模型等的“小彩蛋”,也算是2020毕业对自己最后一次本科作品的献礼了吧。
△ 对于我来说是首次接触视频剪辑软件的乐趣
△ 今年的毕设展板失去了C楼-1层展厅线下展览的机会,但我们仍然将六人小组的展板做成了连接的一体
Ch.5
后记:写给2021
赵梓含
同济大学2020级毕业生
成长于重庆,所以性格里带着些朋克之都的基因。高密度城市生活空间与后工业时代遗址建筑对我仿佛有原生吸引力,所以毫不犹豫地首选了此次毕设主题团队。很高兴能和两位陈老师以及一群各有所长的同学们一起画上了我建筑本科生涯的句点。疫情彻底改变了我2020的计划,但也给了我更多意外的机会。
柏樱
同济大学2020级毕业生
我们每个人正在旋涡中下沉,托起我们的身体使我们浮出水面的,是希望,是对生活的价值和我们努力的信念。
李佳臻
同济大学2020级毕业生
不会摆pose的摄影师不是好的建筑师。
张萍萍
同济大学2020级毕业生
电视剧十级爱好者,现在是一枚职场小白。毕设对我来说是一次宝贵的经历,在没有结婚经验的情况下,做了一个婚纱摄影馆,老师指导的时候也经常拿这个打趣。有突破,也有很多不足。无论未来在哪个领域,都会记得建筑曾带给我的感动。
傅哲远
同济大学2020级毕业生
技术宅,古早动漫爱好者。象牙塔居住权即将到期,来不及道别便要被推向花花世界的小白。疫情将一切计划与对世界的看法改变,期间宅家和老师、伙伴们完成了毕业设计,也算是一次难忘的经历吧。
俞婕
同济大学2020级毕业生
作为一名极其不务正业的建筑狗,很荣幸参与到了金山水泥厂这个课题并且拿到了唯一的筒仓酒店这个部分。
2020年,对于大多数人来说都是不平凡的一年。我在这一年里,因为不同的机会,复盘了多次这个特殊的毕业设计。而这个水泥厂改造方案也因为我们的复盘而日渐深化,每次重新梳理方案逻辑都会有新的研究发现。也感谢这次的公众号约稿,使我们又有机会重新研究这个让我们“分分合合”协同工作的方案。
毕业设计刚开始时的种种困难和遗憾,在最终都用不同的方式得以化解。因为各种不可抗原因断联的我们也终有一天会相见。
这篇文章的末尾写于2020年年底。最后,希望大家没有遗憾地挥别特殊的2020年,向2021勇敢而轻松地走去。
作者:赵梓含
编辑:侯苗苗
关注 TransAxis设计坐标

BIM建筑网



















































































































