“CASA GABRIELA”是坐落于墨西哥梅里达市的南部城市发展地带的独栋住宅。这个住宅不仅仅是个栖息地,更是一个宁静的避风港。
于此同时,设计时还对安全性、热舒适性、节能方面甚至低成本和低维护费用进行了全方位的考虑。
该建筑隐匿于街道中,并与其相邻建筑的墙形成了一个具有公共属性的“小广场”,这也是设计师传承传统尤卡坦建筑的特色。
在住宅前面有一个L形的环建筑水池,水中含有抑制蚊虫的药物,并且这个空间通风良好能进行一些休闲活动。
房子里所有的公共区域都能看这块空间,与入口大厅有着特别的关系。
进入住宅,首先到达的是公共空间,厨房、起居室、餐厅被聚合在一起。
然后卧室与公共空间之间是浴室和衣帽间。
卧室与公共空间都有半室外阳台。
由于墨西哥炎热的气候,建筑为了避开阳光而设置了小开窗墙面,墙上的洞口能够支持自然通风,且双层高的天窗开口能有效疏散热空气,因此这个建筑可以自然的保持舒适的内部温度。
建筑采用当地常见的混凝土砌块墙建造。
室内层高达到双层,采用聚苯乙烯板隔热。
△材料使用示意图
混凝土镂空格墙能有效避免受到日晒、雨淋、以及飓风的影响。
建筑以混凝土为基本材料,且都是直接暴露在外的。
家具采用预制模块,现场装配。
所有的墙壁和低天花板用防水水泥粉刷。
采用本地植物对庭院进行美化,这些植物还能吸引野生鸟类;且也可为业主食用(果树、蔬菜、药草)。
此外,建筑的色彩非常有南美–墨西哥的特色。
建筑的门,家具还有饰品的色彩选择都与当地的文化工艺息息相关,并与庭院植物达到和谐。
前门和后门都有着耀眼的色彩,同样家具和家居饰品的颜色也是多彩的。这些色彩的调配与当地文化特征息息相关,这些色彩与庭院内的花卉形成一种和谐的气氛。
技术图纸
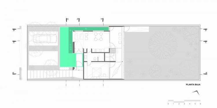
△一层平面图
△二层平面图
项目信息
建筑师:TACO taller de arquitectura contextual
面积:85m²
摄影师:Leo Espinosa,Carlos Patrón
厂家:CASTEL,Cemex,Comex,Helvex,MITZA,Sherwin-Williams
项目团队:Carlos Patrón Ibarra, Alejandro Patrón Sansor, Ana Patrón Ibarra, Estefanía Rivero Jansen.
场地面积:300m2
City:梅里达
Country:墨西哥

BIM建筑网


































