编者按:前几周本网站集中转载了一些墨西哥事务所的作品,但是为了使收录的案例更加丰富,我们决定穿插转载一些韩国事务所的作品。韩国与墨西哥是在文化、地理和社会生活中截然不同的两个国家。我们希望在对比学习这两个国家的建筑案例中,读者能受到新的启发。
我们首先想介绍的是IROJE KHM Architects(金孝晚建筑事务所),其设计以大胆复杂的结构和与景观的和谐著称。
装载自然的飞艇着陆
这所房子的主人是一位年轻的飞行员和他的家人,这是为他们未来的家庭空间,房子好像是轻轻降落在仁川机场附近的新开发地区上。
建筑之“飞行”
我们将韩国传统建筑的一些形式上的特征与飞行员的飞行日常联系起来,并试图象征性地构筑房屋的文化特性。
在庭院顶部宛如正在飞行的屋顶和静止的家园的动感象征着航空公司的飞行任务。
另外,为了抵消飞行屋顶的不稳定性,我们设计了一种韩国传统建筑结构(客厅与地面接触)的坐式加热石系统。用这种方式,我们试图通过考虑天地之间的环境平衡来赋予住宅常规化的稳定性。
建筑之“自然”
我们将韩国传统建筑师的院子、花园和观景台等空间和景观元素转化为当代住宅的设计思路。应用房屋的外部空间、绿化屋顶,因此当您从庭院走到屋顶时,它的斜坡形成独特的景观,
该景观能够允许屋顶花园上流畅的步行。这也使这座住宅能与自然共存,形成一处景观山。
低预算建筑
我们不得不克服低建设成本预算所带来的困难。为了实现设计概念,如大体计划和空间关系,我们必须建立一个经济而简单的预算计划。这意味着隔热材料要有高性能的表现,外墙材料需要能够低成本地运转,没有柱子、台阶和其他设备。
我们需要暴露混凝土框架面和混凝土砌块墙面,使结构材料直接成为饰面材料,使总建筑费用最小化,并创造一个简单的室内空间。
技术图纸
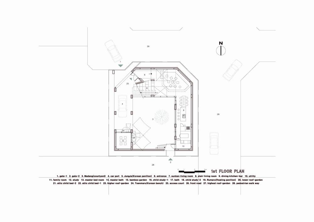
△一层平面图
△二层平面图
△阁楼平面图
△屋顶平面图
△南侧立面图
△东侧立面图
△北侧立面图
△西侧立面图
△剖面图
△剖面图
△剖面图
项目信息
建筑设计:IROJE KHM Architects(金孝晚建筑事务所)
面积:195m²
年份:2017
摄影:Sergio Pirrone
制造商:LG Electronics,posco,MOUN
施工方:Moun construction
客户:Sungwon Seo
主创设计师:HyoMan Kim
设计团队:Jiyeon Kim, Mihwa Oh
城市: 仁川
国家: 韩国

BIM建筑网





























