“一百”是一座俯瞰圣路易斯森林公园的住宅塔楼,它因位于圣路易斯国王大道100号而得名。
该栋建筑是 Studio Gang 在这座城市的第一个项目,超过 380 英尺(116米),塔楼内有316 个单元,面积为 520,000 平方英尺(48, 310 平方米)。
楼内功能包括零售、便利设施、停车场和可以欣赏西面的公园和东面的大拱门住宅公寓。
每间公寓都设有一个在角落的起居室,客厅设有双层玻璃窗,让室内充满光线。
每四层楼被堆叠成一组。立面是倾斜的,以在每一组的顶部创造宽敞的户外空间,为四分之一的公寓提供露台,并在绿色屋顶平台上为居民社区提供共享的便利空间。
“这座建筑反射出了森林公园不断变化的光线和天气,为树叶和雪提供了动态背景。”
—-Gang Studio
该建筑的叶形平面和分层体量最大限度地提高了其环保性能,以利用朝向和环境带来的机会,减少整体能源负荷并提高了居住者的舒适度。
△日照、气流、视线示意图
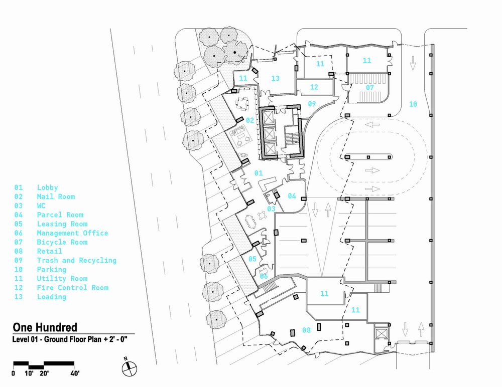
技术图纸
△底层平面图
△7层平面图(便利设施)
△14层平面图(标准公寓层)
△材料结构
项目信息
建筑设计: Studio Gang
面积:520000ft²
年份:2020
摄影:Tom Harris,Sam Fentress
结构工程:Magnusson Klemencic Associates
机械工程:Charles E. Jarrell Contracting Co
电力工程:Sachs Electric Company,DeLuca Plumbing
土木工程:Stock & Associates Consulting Engineers
景观设计:Arbolope Studio
照明顾问:MorLights

BIM建筑网




















