本项目坐落在溧阳天目山景区,由独栋的别墅改造而成。除了具备传统轰趴的聚会和娱乐功能之外,场所更将自然引入其中。委托目心设计的业主是一位热爱自然、享受社交的生活家,他希望打破城市社交的冷漠,实现社交与自然空间的互动,轰趴馆的设计灵感也正来源于此。
△空间与自然的交互关系
目心设计提出空间的交流性分为人与空间,空间与空间,空间与自然。人们在不同的空间交流中消除交往中的距离感,化弱关系为强关系。强关系不是靠强制性互动实现,而是靠自由选择中的舒适社交来建立的。建筑师以项目二楼高高的坡屋顶为原型引入“HOUSE IN HOUSE”的树屋概念。这样不仅能打破传统住宅布局、创造丰富的层次,还能通过嵌套空间之间的联系性和复杂性,为人们提供更多的“关系”选择。
△设计概念
“HOUSE IN THE HOUSE”是一种直接的建筑逻辑,再加上室外空间,自然而然形成三层嵌套结构,内部又是外部,反之亦然。所谓理想的建筑可以说是类似内部一样的外部空间,和类似外部的内部空间,建筑并不是修建内部空间或外部空间,而是在内外之间修建丰富的场所。
嵌套结构带来不同层次的空间体验,提供了不同私密度的空间体验,以及内部与外部的有趣置换。同时引导人们消除交往的距离感,由空间的改变带来人际关系的改变,注重人际交往中的“边界感”。但强调空间的“可选择性”,放弃建筑强加于人们的“距离限定”,使得用户在空间场所内各得其所。
在建筑的内层空间里,还隐藏着一个2.5层。嵌套空间内的嵌套空间,让人不由地思考:城市、建筑、楼层和房间的相似性。它们是相同物质的不同表现,是类似关系的不同剖面。与书柜相结合的胶囊睡眠仓、沉静深灰的标准客房、可观影的懒人沙发区被布局于此。
△多层立体的空间体验
设计通过多层立体、灵活、界面封闭程度不同的空间设计,内外两层建筑将释放灰空间的潜力、建立空间场景多样的联系。这种联系打破三层私密度空间之间的壁垒。在空间的不同领域进行私密度设置限定,可选择开放交流的空间,也可选择无需被动社交的空间。多种的空间类型,解决不同用户的需求,丰富空间开放性梯度。建筑师将不同私密度融入层层嵌套空间,打造出私密性梯度递增的多重渐层边界。
△最大化地引入自然景观
这个相对自由的白色空间,连结着窗外的自然环境和黑色的内层空间,带有过渡性质和半户外庭院似的轻松氛围,可以看作是类似内部一样的外部空间,和类似外部一样的内部空间。而内层空间完整的房屋形态和延伸出来的楼梯,更加强了这种“模糊室内外”的用意。
△通往影音室的楼梯
设计师更加关注人们在空间中如何体验,如何与自然对话,借模糊室内外空间界线的方法,将建筑与景观融为一体。建筑一二楼宽阔的户外庭院空间,有着放松人们心情,建立人与自然的联系的功能。三层私密层次结构体现出设计师对轰趴馆用户私密度、舒适度的关怀。
△二层布局空间
由功能分布可见,黑色的内层空间集合了复杂而密集的功能,释放出大量体积让渡给外层空间。宽敞、开发的公共空间与紧凑、安静的私密空间之间既有路径和墙面的物理区隔,又有不同的窗洞沟通产生的场所浓淡关系。这种大与小、白与黑、疏与密、放与收的对比,形成了独特的空间节奏。
△大尺度的活动空间
外层空间显然适宜较为外向开朗的人群,大家一起进行公共活动:可以选择在餐桌上与大家举杯或者交换会议意见,可以在沙发与同伴窃窃私语或小组分享,甚至可以在空地上跳起舞来。但与一楼的对外营业酒吧相比,这里的“公共”与“集体”又是内向而安全的。
△多功能娱乐空间
拥有双面连续落地窗的外层空间,核心位置由两个曲线长沙发围合出休闲聚会的氛围。几何分割的壁炉墙上方可以投影,用以进行游戏、观影、唱歌等集体活动。侧面的长条桌可兼用作群体聚餐或团队会议,桌子一边配备有独立岛台的厨房。
△会议&餐饮空间
无论轰趴、团建还是度假,能够自由选择自己感到舒适的空间才是最重要的。不必被动社交,也无须尴尬拒绝,建筑师贴心地将不同私密度融入层层嵌套空间,打造出私密性梯度递增的多重渐层边界,为不同性格、不同需要的人量身定制社交边界感,在这里也可以进行中西餐、火锅餐食、会议讨论等不同活动。
私密性是个人与他人或外界环境交换信息的一种控制机制,也是人们基本的行为心理需求之一。三层嵌套结构将私密度分为三个等级。理想的建筑可以说是类似内部一样的外部空间,和类似外部的内部空间,建筑并不是修建内部空间或外部空间,而是在内外之间修建丰富的场所。
△会议&餐饮空间
内层空间的一侧“外立面”呈现为密集方格,象征着区隔与距离,同时也是外侧空间的长廊“书架”;内侧立面则是统一的原木色,显得亲切而温暖。而在“书架”的另一面,层层嵌套空间的概念在此到达高潮——低层胶囊睡眠舱又被划分为双层,被压缩至极致的睡眠空间就是床本身。在小小的内层空间中,居住的空间概念被质疑、颠覆和重组。
△温润舒适的休息区
休息区的设计是希望人们体验一种返璞归真亲近自然的生活状态。让在喧嚣的城市里每天面对快节奏,极大压力的人能够得到一种放松和休息,给他们提供心灵庇护的港湾,愉悦身心。
△客房细部
在二楼“HOUSE IN HOUSE”的空间哲思之外,热闹喧嚣、昏暗暧昧的一楼布局着酒吧、迷你舞台、桌球游戏和网咖等娱乐设施。
△充满序列感的酒柜
追求整体效果的建筑师用色和造型都相当克制:排列整齐、序列感极强的酒柜沿着弯曲墙面一直延伸到天花,围合出酒吧卡座区的吊坠灯线圈层干净利落,带有怀旧的未来感。
△曲线吊灯
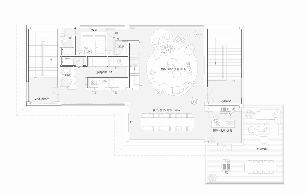
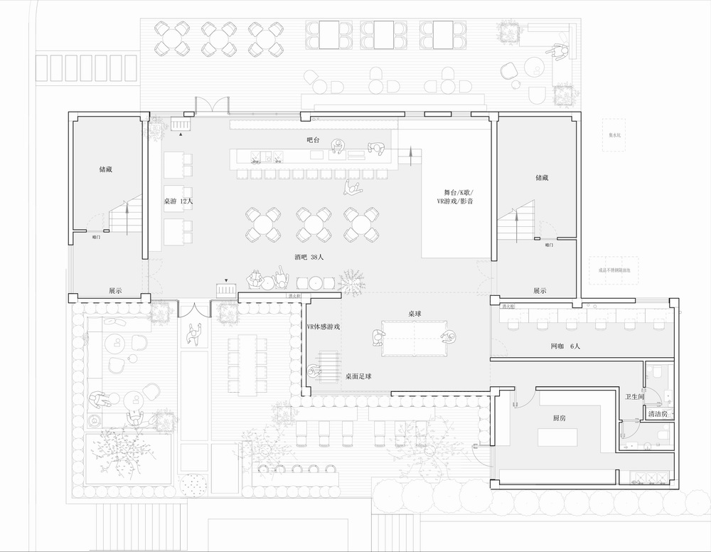
技术图纸
项目信息
项目地址:溧阳市,天目湖景区
项目类型:轰趴民宿
设计内容:室内设计
建筑面积:650平米
设计时间:2019.09—2019.11
施工时间:2019.11—2020.3
设计团队:目心设计研究室
设计团队:张雷、孙浩晨、李璇、张丹丹
摄影师:浚文

BIM建筑网























