项目位于深圳市南山后海中心区,中心路南段西侧。企业总部总是希望能够成为企业的象征,但是企业理念、文化过于抽象难以视觉化,我们希望用企业品牌带给人们的第一印象作为建筑形象的切入点,这样简单直接而且印象深刻。
喜之郎带给人们的第一印象是果冻布丁,果冻往往给人一种亲切、快乐、青春活力、晶莹剔透的感觉,设计以果冻为原型,外观晶莹剔透,内部含着诱人的“果肉颗粒”的果冻大厦。
企业总部也往往需要强烈的纪念性,体现百年基业的雄心。在建筑学上,从古至今最具有纪念性的莫过于“独石建筑”——Monolithic architecture,即以单一纯粹的几何体获得永恒雄浑的印象,宛若独石。
本项目的规模不大,更宜采用独石的手法,而非多个体量的组合。这也使喜之郎大厦与周边建筑的造型语言拉开距离,彰显自身。
整个建筑的外立面由四种不同尺寸的网格窗构成,塔楼形体方正简洁,但富于变化的网格窗则给整个建筑带来了意想不到的自然肌理,如同生物细胞一样的繁衍变化,透过网格内部有一连串精心布置的空中花园,使得人们在城市里的各个角度和距离都会感受到建筑物的变化。网格既是建筑的外表皮,也是建筑结构的受力主体,建筑内部除核心筒之外 不再需要柱子支撑,因此室内空间获得了极大的灵活性。
整个建筑的外立面由四种不同尺寸的网格窗构成,塔楼形体方正简洁,但富于变化的网格窗则给整个建筑带来了意想不到的自然肌理,如同生物细胞一样的繁衍变化,透过网格内部有一连串精心布置的空中花园,使得人们在城市里的各个角度和距离都会感受到建筑物的变化。网格既是建筑的外表皮,也是建筑结构的受力主体,建筑内部除核心筒之外 不再需要柱子支撑,因此室内空间获得了极大的灵活性。
喜之郎总部大厦采用端正的形体、如同生物细胞一般的外立面,突显企业稳重、大气、活力、蓬勃发展的形象。从一个最基本的四边形网格开始,如同一枚携带着中国传统文化基因的细胞生长为一座大型都市景观。干净、利落、挺拔、端庄的姿态体现出一个企业总部所应具备的特征,它能为城市带来了一种氛围,让工作在其中的人们能感受建筑所具有的生命力。
技术图纸
△总平面图
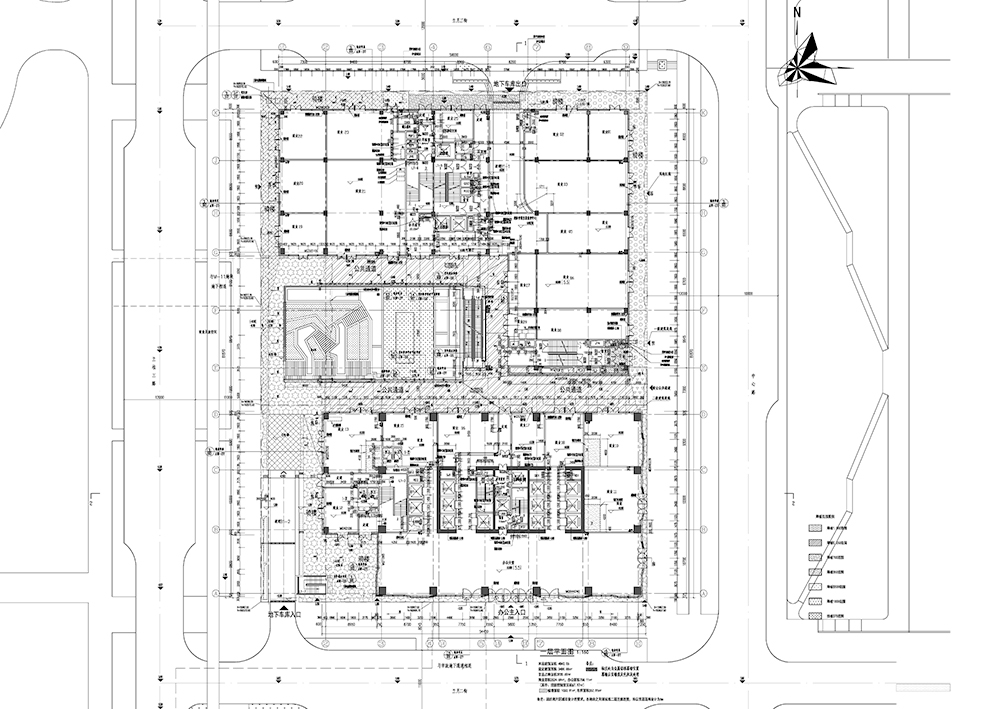
△首层平面图
△二层平面图
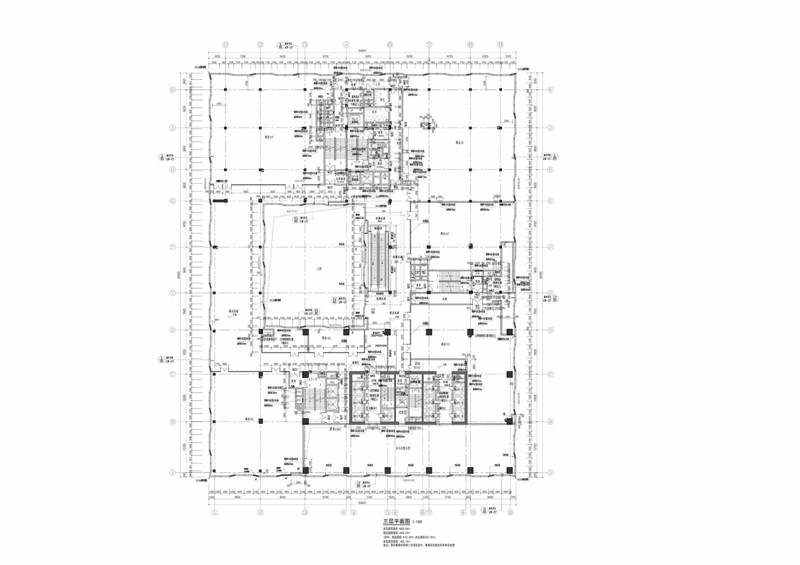
△三层平面图
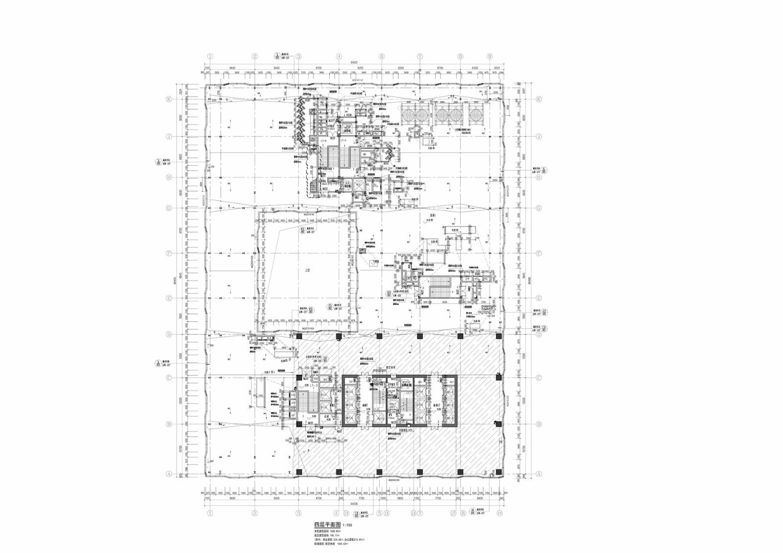
△四层平面图
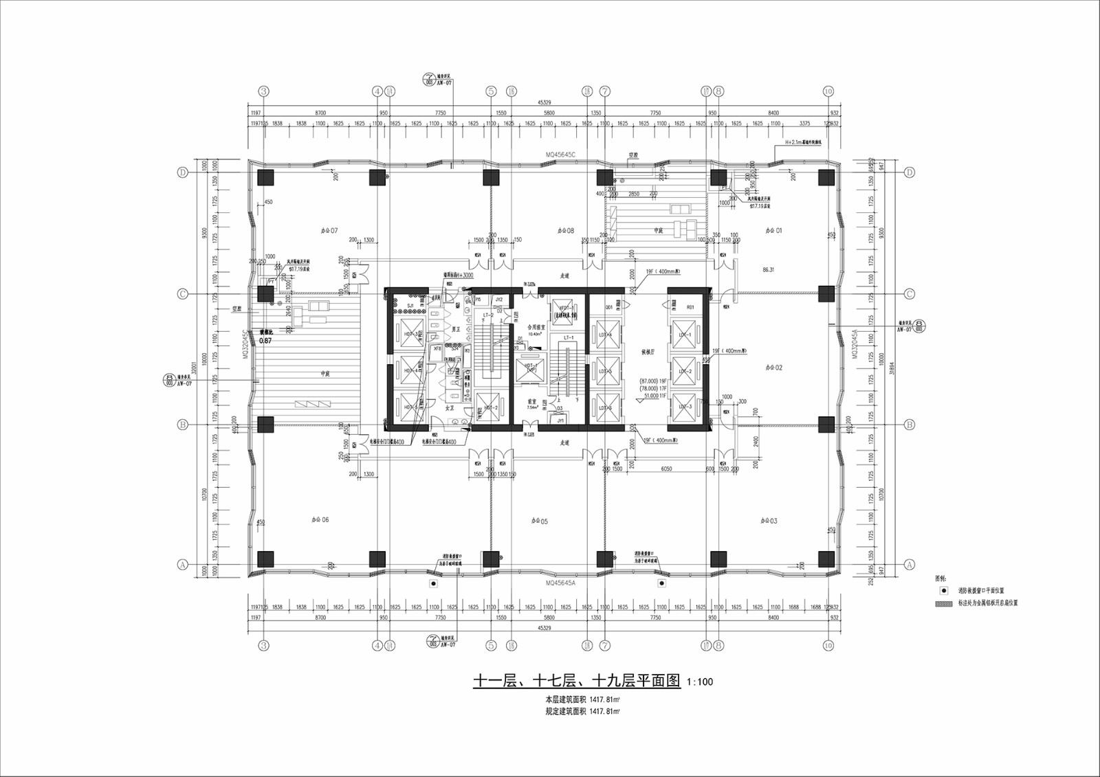
△标准层平面图
项目信息
项目名称: 喜之郎总部大厦
建筑事务所/公司/机构/单位: 筑博设计股份有限公司
事务所/公司/机构/单位网站: www.zhubo.com
联络邮箱: branding@zhubo.com
公司所在地: 深圳市福田区泰然六路雪松大厦B座5楼
项目完成年份: 2019
建筑面积: 7.35万平方米
项目地址: 深圳市南山区
主创建筑师: 冯果川、熊林龙
主创建筑师邮箱: branding@zhubo.com
摄影师: 青橙影像
建筑设计:何文彬、张异响、胡馨言、马凯、林庄、陈拱潮、沈地河、黄雨明、高晶晶
总图设计:王延枝
结构设计:汤凯峰、何海进、蔡锦晨
机电设计:丁瑞星、侯连建、周青山、密进平、杨莉莉、吕少峰、李涛、杨坤炎
委托方: 广东喜之郎集团有限公司
绿色建筑设计合作单位:深圳市越众绿色建筑科技发展有限公司
BIM合作设计单位:中铁建设集团有限公司

BIM建筑网





















